龙光天曜售楼处官方预约热线:400-1189-515(欢迎致电)

点击输入图片描述(最多30字)
⛩项目名称:「龙光天曜」
👑项目简介:临港品质住宅
🗣最新动态:正在热销中
📍区域板块:临港102片区
🏠产品介绍:建面约89-128㎡三房四房&120-137㎡叠加
🛍️商业配套:港城新天地、百联临港生活中心、宜浩晶萃、碧云商业街
🏫周边学校:建平学校、明珠学校、冰厂田
龙光天曜售楼处官方预约热线:400-1189-515(欢迎致电)
1地段
纵观临港几大片区,102的配套可谓是最成熟的。
有港城新天地、百联临港生活中心、宜浩晶萃、碧云商业街等成熟商圈;轨交有16号线;教育方面有21所学校环绕,包括建平、明珠、冰厂田在内的众多知名学府,配套成熟碾压其他几大片区。
而「龙光天曜」位于临港102片区的核心地带,他周边的配套更是毋庸置疑。
更何况,还有已经在规划中的两港快线和南枫线。并且南枫线很可能与两港快线二期并线!距离龙光天曜&蓝鲸世界非常之近!

点击输入图片描述(最多30字)
示意图
2产品
「龙光天曜」在户型设计方面也是下了很大的功夫,在保证户型方正的基础上,通过对住宅内部功能空间结构的科学设计,尽可能创造更多南向空间。

点击输入图片描述(最多30字)
「龙光天曜」效果图

点击输入图片描述(最多30字)
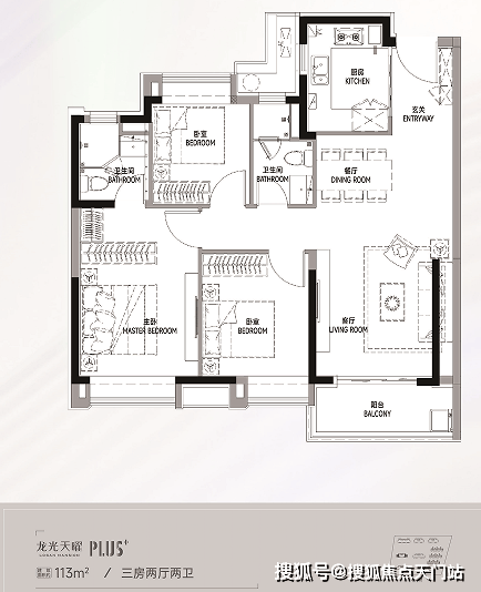
高层户型图▼

点击输入图片描述(最多30字)

点击输入图片描述(最多30字)

点击输入图片描述(最多30字)

点击输入图片描述(最多30字)
样板间实景图▼

点击输入图片描述(最多30字)

点击输入图片描述(最多30字)

点击输入图片描述(最多30字)

点击输入图片描述(最多30字)

点击输入图片描述(最多30字)
别墅户型图▼

点击输入图片描述(最多30字)

点击输入图片描述(最多30字)

点击输入图片描述(最多30字)

点击输入图片描述(最多30字)

点击输入图片描述(最多30字)

点击输入图片描述(最多30字)
龙光天曜售楼处官方预约热线:400-1189-515(欢迎致电)

点击输入图片描述(最多30字)