泰禾海上院子售楼处官方预约热线:400-1189-515(欢迎致电)

点击输入图片描述(最多30字)
⛩项目名称:「泰禾海上院子」二期
👑项目简介:奉贤海湾 中式合院
🗣最新动态:已过会,即将认购
📍区域板块:奉贤海湾
🏠产品介绍:建面约99-210㎡院墅,约49899元/㎡
🛍️商业配套:佳源梦想广场、易乐惠海湾菜市场、乐汇购物广场 、莘度美食街 维也纳国际酒店
🚴交通配套:海湾快线、S3高速主线、市域铁路奉贤线
🏥医疗配套:奉贤海湾医院
1地段
上海南枢纽 世界级湾区
纵横交通 链接未来
上海南枢纽(奉贤)顶层研究项目研究开启,上海南的定义将海湾提升至全新能级。
东方枢纽2027运营,沪乍杭铁路链接,贯穿海湾,海湾战略能级再跃升;海湾快线已通车,高效拉近海湾与南桥的时间距离;S3高速主线通车,全面对接浦东周浦康桥;市域铁路奉贤线推进,将联动机场联络线,直接换乘通达上海两大机场。

点击输入图片描述(最多30字)
世界海湾 领衔时代
奉海湾定位为“世界第九大湾区”,杭州湾、临港自贸区新片区两大区域赋能,正接迎时代新机遇,着力打造上海特色产教城融合区。

点击输入图片描述(最多30字)
大学城内 名校环立
上师大附属实验小学、附属实验中学、上师大第四附属中学等名校环绕,幼、小、初、高一站式配置,迭新精英优质教育。

点击输入图片描述(最多30字)
醇熟配套 便捷生活
生活配套:佳源梦想广场、易乐惠海湾菜市场、乐汇购物广场 、莘度美食街 维也纳国际酒、奉贤海湾医院等;
休闲配套:松声马术俱乐部、海湾高尔夫俱乐部、黄金海岸度假村等奢适配套,临近4A级景区碧海金沙、海湾国家森林公园等城市绿肺。

点击输入图片描述(最多30字)
售楼处官方预约热线:400-1189-515(欢迎致电)
2产品
【海上院子】独门独户独院,匠造新中式院落纯低密墅区。以紫禁城皇家气宇为蓝本,构筑“宅门”“院落”“坊巷”三大造院体系,“一轴五街八园十二巷”园林布局,引领新中式人居美学。
守品质 保交付 筑信心
政府牵头成立工作专班,全程监督;上海建工鼎立支持,恪守交付标准,保障品质;泰禾上海区域集中优势资源,坚守品质,兑现交付。

点击输入图片描述(最多30字)
纯粹稀贵墅区 划界名流圈层
上海院墅“千金难寻”。纵观南上海,约0.5容积率纯粹墅区,惟此珍罕难得,不可复刻的低密纯粹墅区。

点击输入图片描述(最多30字)
院子3.0迭代作品 6大维度全面进阶
1.精研巷道尺度 延伸院子境界
更舒适的宽高比 更惬意的坊巷悠境
千年坊巷再设计,巷道、院墙、绿植互为交融,提升空间尺度,营建更舒适的步行环境,聚纳更多烟火气。
院厅融合设计,延伸全新视野
下沉式院落焕新为地上庭院,扩大院子面积,为客厅的延伸与衔接留下更多想象空间。

点击输入图片描述(最多30字)
售楼处官方预约热线:400-1189-515(欢迎致电)
2.朗阔厅堂,装下大家族风范
宽境奢阔客厅,遥遥领先同级
大面宽客厅,同类产品难得一见。轩朗进深,提升视野层次,彰显大家气度。
自然前厅,写意内外无界
全新前厅扩展设计,自然渡内外,将客厅与院子生活融为体。

点击输入图片描述(最多30字)
售楼处官方预约热线:400-1189-515(欢迎致电)
3.预留电梯空间,场景随心切换
约125㎡院墅预留电梯空间,一键上下轻松自如
业主可根据需求自行安装电梯,一键切换多重空间,生活场景无缝切换。

点击输入图片描述(最多30字)
4.磨砺院子细节 定制专属空间
一房一策,定制化空间与生活
每个户型与房号皆遵循专属化设计及产品策略,匹配每一户业主对院子的专属感与定制化期待。
错落有致无对门,私密院前空间
错落式院门设计,保护居家隐私,形成一方私属院前坊巷空间。
餐厨一体化设计,功能再进化
预设餐厨空间,中西结合,开放融合,匹配名流生活所需。
精细收纳系统,营造居住秩序感
衣帽间、储藏室、玄关……家庭收纳系统全面优化,为生活留白。
售楼处官方预约热线:400-1189-515(欢迎致电)

点击输入图片描述(最多30字)
5.延承十大专利,匠造归家院境
十大造院专利 匠筑归家仪式感
形于东方,精于细节,层层递进,为院子构筑正宗纯粹的新中式归家仪式感。

点击输入图片描述(最多30字)
主入口门头|双门头|单门头|楼王门头|院门壁灯|楼王壁灯|楼王横梁|横梁|抱鼓石|门钹
售楼处官方预约热线:400-1189-515(欢迎致电)

点击输入图片描述(最多30字)
一院一门,私享名门院落
天地院墅,独门独户独院。定制匾额高悬门庭,门楣之上见风骨,镌刻世家望族精神。
售楼处官方预约热线:400-1189-515(欢迎致电)

点击输入图片描述(最多30字)
6.全龄书院会所,功能全面提升
会所功能提升,满足全龄需求
约1800㎡私享会所,打造城市书房、恒温泳池、有氧健身中心等圈层生活空间,增设轻餐区、水吧区、儿童活动区等功能空间。
基于会所配套,项目打造专属服务班底、高质量服务标准、定制化特色服务,读懂客户细微需求,定制会所圈层服务,为每一户院子业主带来宾至如归的美好生活体验。
售楼处官方预约热线:400-1189-515(欢迎致电)

点击输入图片描述(最多30字)
传承儒家礼序 境藏江南园林
景观园林整体规划为“一轴十景、五街、八园、十二巷”。以街为核心,结合户型布局划分“八园”。“仁泽”、“明智”、“贤义”、“隆礼”、“淳信”五街,取意儒家五常之道;园以植物命名,呈现季节变化之美;十二巷以古韵的静谧雅致意境,演绎出礼遇东方的绝代风华意蕴。
售楼处官方预约热线:400-1189-515(欢迎致电)

点击输入图片描述(最多30字)
尊崇服务 礼遇世家名流
品质生活,优先礼遇。海上院子首席服务官前置化首席服务官,每户业主一份服务专案,打造物业+营销+首席服务官三位一体的管家团队,从交付前到入住后全面定制化服务,为新老业主带来贴心温暖的服务体验。
售楼处官方预约热线:400-1189-515(欢迎致电)

点击输入图片描述(最多30字)
约99㎡合院产品做到了地上2层,地下室挑高5.5米。另外,超高的附赠空间便该项目是最大的亮点!该户型可拓展出178㎡的面积!实际使用面积最高可达277㎡!
这个突破想象的赠送,也是项目能拿出超高得房率的原因!
99㎡户型平面图

点击输入图片描述(最多30字)
约126㎡的明星户型做到了5套房设计,地下一层、地上三层的空间形态,将空间尺度无限放大。
更难得可贵的是, 该户型可扩展出185㎡!实际使用面积最高可达311㎡!附赠率高达147%!售楼处官方预约热线:400-1189-515(欢迎致电)
并且,“3+2”楼层立体分明,拥有大大小小三个不同的花园。
这无疑是将人们心中的“院子梦”发挥到淋漓尽致!
126㎡户型平面图

点击输入图片描述(最多30字)
另外值得一提的是, 约126㎡院墅还预留了电梯空间,一键上下轻松自如。业主可根据需求自行安装电梯,一键切换多重空间,生活场景无缝切换。
售楼处官方预约热线:400-1189-515(欢迎致电)
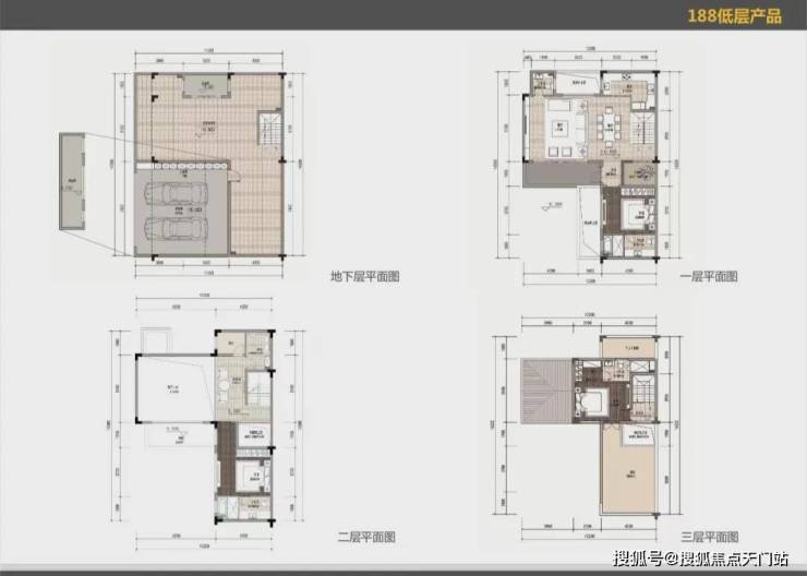
188m²户型赏鉴(仅供参考)

点击输入图片描述(最多30字)
项目最新效果图

点击输入图片描述(最多30字)

点击输入图片描述(最多30字)

点击输入图片描述(最多30字)
泰禾海上院子售楼处官方预约热线:400-1189-515(欢迎致电)

点击输入图片描述(最多30字)