售楼处电话:400-961-9938(已认证) 营销中心热线:400-961-9938(欢迎致电) 售楼处预约电话:400-961-9938☎☎☎如有问题可来电咨询,预约销售专员,一对一为您服务!
越秀·外滩樾售楼处电话:400-961-9938(已认证)

由越秀地产+临港集团联合打造
越秀临港虹口156街坊项目
案名已经发布——越秀·外滩樾
容积率仅约1.3
推售49套建面约238-305-318-338㎡风貌别墅
展厅已开放!

上海墅居天花板———越秀外滩樾———
位置: 上海虹口区北外滩,距外滩1公里,陆家嘴1.5公里
项目信息🔍:
项目类型:现代风貌
物业类型:70年
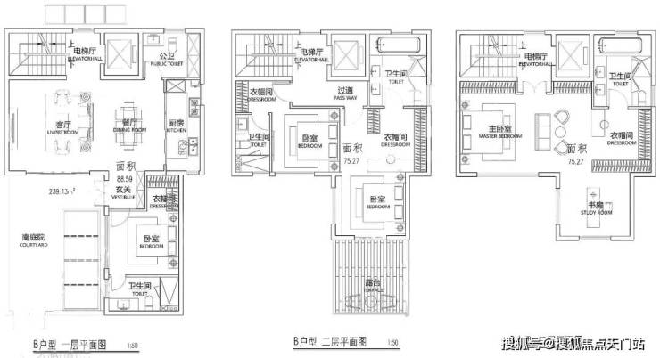
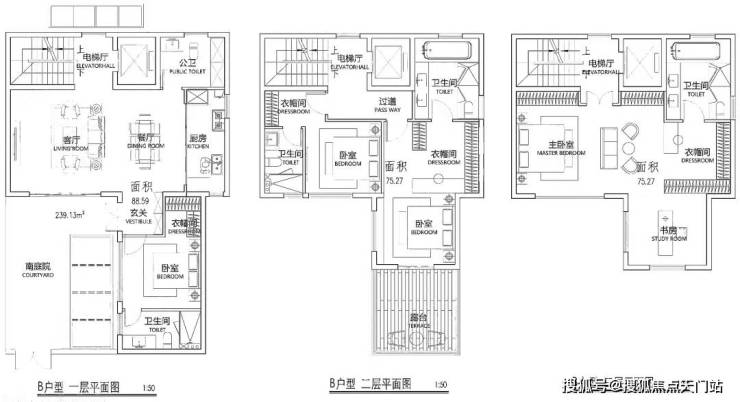
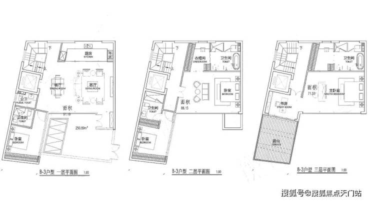
建筑面积:238、305、318、338/㎡
户型:地上3层,地下2层 短进深大面宽,全落地窗设计、使用400-800平,高品质高颜值
毛坯交付,也定制可以装修交付
总价区间:4500-9000万
单价约18.9-26.6万/㎡
总套数 :49套
交付时间:2026年底交付
梯户比 :“室内带独立电梯井”设计
物业费 :地上26.8含会所,地下一半
层高 :一楼3.6米,二楼三楼3.2米,地下室6.15挑空6.15
过程稿户型图曝光(户型最终以开发商公示为准):
236.25㎡A户型:

239.13㎡B户型

250.89㎡B-3户型

C户型

291.42㎡D户型

01.基本信息
2023年10月26日,上海市虹口区嘉兴路街道hk270B-04地块历史风貌保护项目实施主体遴选结果公示,最终由上海市漕河泾新兴技术开发区发展总公司(临港集团)及杭州燚乐实业投资有限公司(越秀)联合开发。
项目总用地面积约10790平方米,为一类住宅组团用地,容积率1.3,建筑面积14027平方米,地块内需要保留的历史建筑规模约4400平方米,均为里弄建筑。

基础信息
【项目名称】越秀·外滩樾
【开发商】上海漕越经济发展有限公司
【项目位置】上海市·虹口区·梧州路235弄
【项目类别】70年产权住宅
【项目类型】风貌别墅
【可售户数】48套(风貌)
【容积率】约1.3
地块四至范围, 东至梧州路,隔壁是中皇广场; 西至hk270B-02,隔壁就是1933老场坊; 南至周家嘴路;北至柘皋路。
日前,上海市规划和自然资源局对上海漕越经济发展有限公司虹口区嘉兴街道hk270b-04地块历史风貌保护项目进行了设计方案公示,项目未来将呈现48套低密风貌里弄住宅,面积约238-338㎡。

项目规划层高,1楼为3.6米,2、3楼均为3.2米。小区整体容积率为1.3。



程绍正韬,建筑室内设计之东方主义集大成者,致力于东方文化的坚守与创新。他打破惯常的职业思维,将生活方式化作一种哲学态度,融入空间设计,让设计不止于作品。

李玮珉,撑起中国豪宅设计半壁江山,擅长为城市塑造文化符号建筑作品。他的作品更多用极简的方式来表明态度,崇尚简而高效的现代生活方式。庄重的建筑语汇,适时注入艺术、自然与美学,让空间充满想象力。

复刻百年前的高端工艺元素,让海派造诣世纪传承。清砖立柱、古典门头、封闭门窗、岩石山墙等经典海派建筑风貌转译,于历史和未来之间收藏百年上海。


巷弄新生:内环内难得双拼别墅 ,超越风貌建筑的尺度感;
建筑新生:创新风貌规制,致微而筑的建筑腔调赏新;
美学新生:转译远东第一豪宅立面美学,收藏名门望族生活;
材质新生:豪宅同款奢砖、大面积奢石运用,定制家族排场。

02.区域规划
项目所在地北外滩,是百年前上海的“下海”地。作为上海开埠后第一座码头的诞生地,北外滩率先“开眼看世界”,海纳万国文化风潮,众多此后影响中国的创举在此诞生,是上海最早的“十里洋场”

傲立“一江一河”交汇处(直线距离约1.1KM),未来将打造成为彰显上海城市核心竞争力的黄金水岸和具有国际影响力的世界级城市会客厅,出入之间,相逢城市高阶未来

北外滩,与外滩、陆家嘴并称为上海的“黄金三角”。将以2座陆家嘴的商务体量规划,新天地2.0生活圈打造,成为上海跃升世界舞台的“中心发力”新引擎

区域能级:总开发面积约840万方,40栋甲级写字楼
城市地标:480米浦西第一高楼,19栋摩天大楼集群
金融产业:2100+家金融企业赋能,资产管理规模超8万亿元,位居全市第一
航运格局:4500+家航运企业集聚(上港集团、中远海运等),打造国际航运中心
全球贸易:2500+家贸易企业入驻(摩亚方舟、银联商务等)
新兴产业:129家新增高新技术企业,113家市区科技小巨人企业(数据来源:上海市规划局《北外滩地区控制性详细规划》)

交通方面:项目三轨交汇,距离12号线国际客运中心站约600米,距离4/10号线海伦路站约850m(直线距离),3站南京东路,6站新天地。

自驾上,约360米新建路隧道(直线距离),快速直达陆家嘴CBD;约670米外滩隧道(直线距离),直达外滩金融商业街以及老码头;约150米北横通道(直线距离)贯通全城,快速通达虹桥机场/虹桥火车站;约2.4公里大连路隧道(直线距离),直达浦东东方路、世纪大道、八百伴商业圈。
商业方面:项目约2公里内多元繁华构筑封面商业圈,北外滩商圈直线距离约500米;外滩商圈直线距离约1000米;陆家嘴商圈直线距离约1500米;瑞虹商圈直线距离约900米。

医疗方面:三公里内四所三甲医院,全生命周期护航,新华医院(儿科专长);复旦大学附属妇产医院;上海市第一人民医院;上海东方医院(血管外科专长)。
教育方面:幼儿园:约1公里内6所幼儿园(直线距离),涵盖东余杭路幼儿园等3所示范级学校;
小学:约1.5公里内5所小学(直线距离),涵盖区重点四川北路第一小学;
中学:约1.6公里内6所中学(直线距离),1所市重点、2所区重点。一路之隔上海虹口二中心小学(在建中),约2.3公里市重点上海外国语大学附属外国语学校(直线距离)*施教区及就学政策以教育部门规划为准

生态休闲:2.5公里北外滩滨江绿地(约800m直达),四川北路公园、和平公园、鲁迅公园3大公园环伺,于滨江和城市低密绿芯之间,肇启当代诗意生活传序。

越秀·外滩樾售楼处电话:400-961-9938(已认证)
