汾湖月亮湾大花园—千万别看错了—真的火了!简直太厉害了!
扫描到手机,新闻随时看
扫一扫,用手机看文章
更加方便分享给朋友
苏州汾湖月亮湾大花园
售楼处电话:400-101-9071转接111【售楼中心】
提前来电预约,可享内部房源折上折,当天下定可享砸金蛋活动,签约送礼品家电一台。
自驾看房,提前来电确定路线,可报销油费、过路费,班车免费接送。
汾湖桃花源&月亮湾现房公寓
汾湖现房公寓震撼来袭 【颐景园大花园】
距沪10公里,元荡湖环绕,一线湖景公寓现房销售
项目信息:
【区域板块】:汾湖高新区
【产品类型】:别墅+公寓
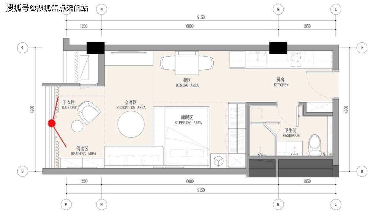
【户型面积】 :公寓建筑面积约54-57-71-98
【产品均价】:9600
【交付标准】: 毛坯交付
【土地产权】: 别墅70年公寓40年
【交付时间】: 已交付(现房)
【物 业 费】: 1.8元(含能耗)
【物业公司】: 绿城物业
【总建筑面积】:30万方
【品牌价值】绿城服务赋能品质
苏州地铁4号线(同里延伸段)无缝对接上海17号线(东方绿洲延伸段)可直通上海,30分钟内可到达苏州任何区域,15分钟抵达上海青浦城区、虹桥机场,在建沪苏沪高铁(汾湖站)直通上海虹桥;
距离项目3到5分钟车程就是汾湖经济开发区行政中心和商业金融服务中心聚集地,已成为城市的中心商圈,集餐饮、娱乐休闲、购物等于一体,以乐购超市,嘉乐城商业中心,汾湖新天地,永信商业广场,肯德基,星巴克,50万方的大渠荡生态公园等能满足所有日常生活需求。项目旁边北面正在规划的200万方的商业综合体也正在筹建中。 开车5分钟到达莘塔卫生院,开车10分钟到达吴江第五人民医院(二级医院)门口商业街,项目自带商业配套,吃喝玩乐购一站式服务;
项目周边重点学校:汾湖实验中小学和中加枫华国际学校,中加枫华国际学校创建于2003年,是经由加拿大和中国教育部批准的,实行中加两国双学历教育的国际学校,拥有近70位加拿大BC省教育部认证的教师队伍。中加枫华国际学校连续四年被BC 省教育部评为“较好的海外学校” 汾湖实验幼儿园、实验小学、实验中学;
银行:建行、农行、工行、苏州银行2公里米范围内;
以租养贷,投资高回报,升值有保障;
样板间:
汾湖月亮湾大花园
售楼处电话:400-101-9071转接111【售楼中心】
提前来电预约,可享内部房源折上折,当天下定可享砸金蛋活动,签约送礼品家电一台。
自驾看房,提前来电确定路线,可报销油费、过路费,班车免费接送。
声明:本文由入驻焦点开放平台的作者撰写,除焦点官方账号外,观点仅代表作者本人,不代表焦点立场。
