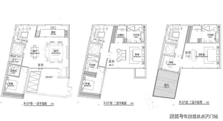
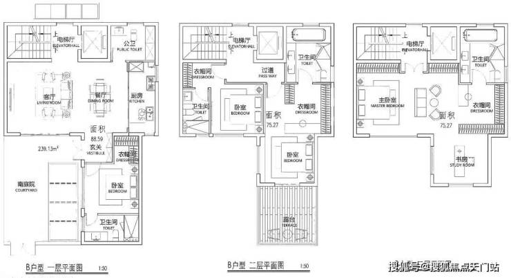
越秀外滩樾首页网站/售楼处电话/地址/在售户型/营销中心/最新价格/周边配套/容积率/楼盘小区详情/房源情况/最新折扣补贴/交房时间/户型测评/轨交
扫描到手机,新闻随时看
扫一扫,用手机看文章
更加方便分享给朋友

2023年10月24日,虹口区嘉兴路街道hk270B-04地块历史风貌保护项目,即156街坊实施主体遴选结果出炉——越秀&临港集团拿下。

156街坊东至梧州路、南至周家嘴路、西至hk270B-02地块、北至柘皋路,土地面积约10790平方米,建筑面积14027平方米,规划为一类住宅组团用地,容积率仅1.3。
这个地块位置也不错,位于1933老场坊隔壁,早前这里是上海工部局宰牲场;而如今,成为了虹口的网红打卡地;此次越秀联合体拿地也被要求保留工部局宰牲场旧址建面约1800㎡。
交通方面:地块距离地铁4、10、19号线换乘站海伦路站直线距离约600米,交通十分便捷。
教育方面:华东师大一附中实验小学、虹口区第二中心小学、华东师大一附初中等优质配套;
商业方面:1km左右就有集购物、餐饮、娱乐休闲、办公及服务式公寓为一体的综合商业体——瑞虹天地,商业面积55万方,包括太阳宫、月亮湾、星星堂、瑞虹坊四个部分。
医疗方面:地块紧邻上海第一人民医院(三甲)

声明:本文由入驻焦点开放平台的作者撰写,除焦点官方账号外,观点仅代表作者本人,不代表焦点立场。
