杭州萧山山澜桂语轩—大家千万别踩坑了,进来聊聊个人感受!
扫描到手机,新闻随时看
扫一扫,用手机看文章
更加方便分享给朋友
杭州萧山山澜桂语轩
售楼处电话:400-101-9071转接777【售楼中心】
提前来电预约,可享内部房源折上折,当天下定可享砸金蛋活动,签约送礼品家电一台。
自驾看房,提前来电确定路线,可报销油费、过路费,班车免费接送。
萧山市芯&南站核心 绿城桂语系新作
【项目基本情况】
【 开 发 商 】绿城中国、首开地产
【区域板块】萧山市芯&南站新城
【地块信息】占地约4.5万㎡
【建筑面积】总建面积约10.6万㎡
【自持比例】5%
【建筑高度】15-19层
【绿 化 率】35%
【容 积 率】2.3
【建筑密度】≤22%
【楼栋信息】共13幢高层
【总 户 数】可售住宅824套、商铺29套
【层 高】2.95 m(标准层)
【得 房 率】78%~82%
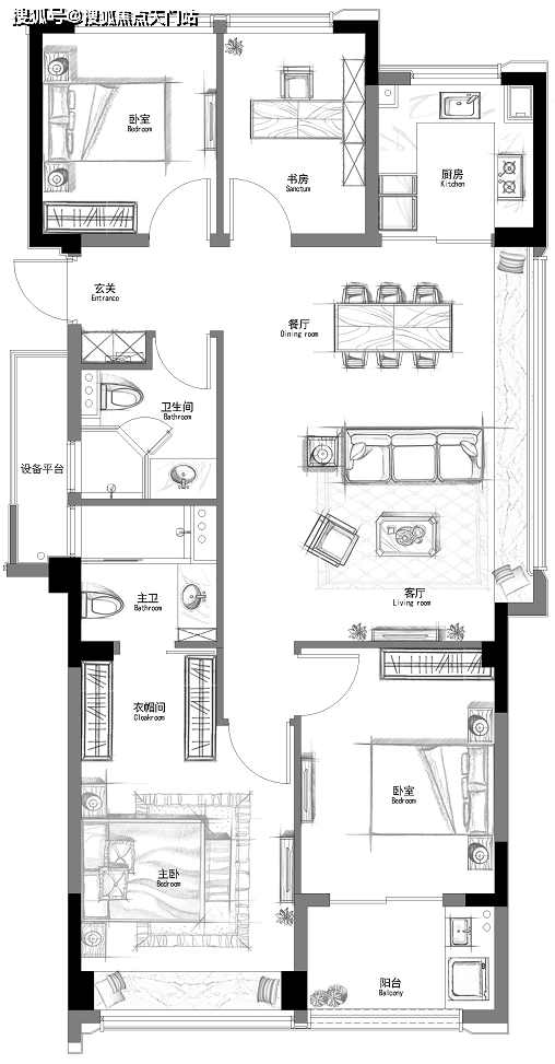
【户型面积】89、100、103、111、120㎡
【精装限价】32000元/㎡(含3500精装修)
【车位配比】1:1.1
【物业管理】绿城物业
【物 业 费】3.05元/㎡*月+能耗0.6元/㎡*月
【交付时间】2023年11月交付
萧山市芯:距萧山区政府直线距离约3.5km;距华润万象汇直线距离约2.9km;
南站核心:距杭州南站直线距离约1.3km(南站新城总面积约20平方公里,政府定位极高,以“经济增长新极核,创智汇聚新核心”为发展目标,构建集交通枢纽、科创商务、智慧物流、国际贸易、生活办公、文旅一体的新城核心)仅南站核心区规划67万方商业(规模相当于6座龙湖天街、7座万象城)
【交通配套】
一脉彩虹快速,便利通达全城
项目南侧约500米为彩虹大道,15分钟通达滨江、奥体,约20分钟抵达钱江新城,约30分钟到达黄龙武林。无缝连接杭州主城,半小时高架圈,纵享全杭城繁华配套。
公交出行
项目边【金城路】沿线2条公交班次,长山头村南公交站乘坐727路|766路,4站即达华润万象汇大门口,出行非常便利。
高铁出行
南岸少有高铁站,浙江省第二座特等站-杭州南站,距离项目约1.3公里,“长三角一小时生活圈”由此开启。
地铁出行
“换成之王5号线”杭州南站站,3站即达萧山万象汇,6站滨江核心,一站换乘,全程通达。
【生活配套】
教育配套
1公里范围内三所幼儿园,2公里范围内两所小学,3公里范围内三所中学,除此之外,项目2公里范围规划一块1.74公顷教育用地,让您教育无忧。
医疗配套
5公里的范围有着一所三甲医院-萧山区中医院,以及一所三乙医院-萧山医院,为您的健康保驾护航。

商业配套
3公里左右的范围,环绕萧山人气老牌商业:华润万象汇,银隆百货,旺角城,恒隆广场,加州阳光,保障您的高端品质生活。
南站核心区规划67万方商业商务区(规模相当于6座龙湖天街、7座万象城)
项目自带约1800㎡社区底商,满足日常生活需求。


杭州萧山山澜桂语轩
售楼处电话:400-101-9071转接777【售楼中心】
提前来电预约,可享内部房源折上折,当天下定可享砸金蛋活动,签约送礼品家电一台。
自驾看房,提前来电确定路线,可报销油费、过路费,班车免费接送。
声明:本文由入驻焦点开放平台的作者撰写,除焦点官方账号外,观点仅代表作者本人,不代表焦点立场。
