上海徐汇尚峯汇 售楼处电话丨【售楼中心】楼盘地址丨项目简介!
扫描到手机,新闻随时看
扫一扫,用手机看文章
更加方便分享给朋友
上海徐汇尚峯汇
徐汇区-万体馆旁“尚峯汇”
售楼处品鉴热线:400-101-9071接通后输入666【品鉴中心】
对任何一位有品位的沪上精英来说,居于此处等同于为灵魂寻找一处安静的栖息之地。
可惜的是,徐家汇板块可售的房子屈指可数,并且从土地供应角度看,往后也只会越发稀缺!
北京的公寓已经限购
深圳公寓已经停止批地
上海的公寓,持续火爆ing

徐家汇城市名片
不限购平层行政商务舱
全球先进物业戴维斯服务
徐家汇全球行政商务舱排名前列
9.28号开盘顺销
定金100万 验资500万
开发商纯一手 无议价不做底
基础信息:
项目开发商:阳光集团
项目地址:漕溪路地铁口
拿地时间:2010年
房屋属性:商办50年
销售情况:开盘在即
在售面积:160m2-640m2
销售单价:均价8-12万
销售总价:1300万~6400万
交付时间:2023.6.30
交付情况:精装交付
基础信息介绍:
1.物业公司:阳光物业,排名前列太平戴维斯(双物业)
2.物业费:20元/平米/月
3.总户数:338
4.总高:21(8T10户),内部层高4.2米
5.车位数:475
建筑面积:10万方
占地面积:18000
容积率:4.23%
售楼处品鉴热线:400-101-9071接通后输入777【品鉴中心】
城市更新开启了上海的内涵增长时代,徐家汇CAZ中央活动区成为了其中的示范标杆,全面升级迈向新高度。
6月3日,由恒盛地产和澎湃新闻联合举办的“海派之源徐家汇,峯领上海新中心”澎湃城市发展论坛,在阳光滨江中心开启

徐家汇长期以来一直承担着上海经济、文化等方面的领头羊角色,也是海派文化的源头。
如今,在上海冲刺2035全球先进城市的重要时刻,再一次扛起先锋的大旗,晋级2035 CAZ中央活动区,以400年的文化底蕴“反哺”城市更新,成为上海迈入全球先进城市的重要一环。
而恒盛地产一直致力于成为城市的建造者与推动者,十余载来深耕上海,以匠心筑就经典,从皇家花园到尚海湾,均以城市标杆作品标准倾力打造。
较新产品尚峯汇,站位徐家汇中心之上,与万体馆(徐汇体育公园)咫尺对望,可以说在项目区位上,尚峯汇是特别不输众多行政公馆的。
同时,孕育和策源了海派文化的徐家汇,历来人文集聚,史迹荟萃、商贸繁荣,在上海2

035规划中被划为CAZ中央活动区。
也因此,从地段价值来看,从商业副中心到中央活动区,徐家汇未来的经济承载体量将再上一个等级,而尚峯汇在其中的价值也将不断攀升。
售楼处品鉴热线:400-101-9071接通后输入777【品鉴中心】
从项目区位图不难看出,项目地处徐家汇板块核心,周边生活配套已经非常完善。
在交通上:
项目周边有一桥双隧七轨,多维的立体枢纽
项目距离3号线漕溪路站约140米,是标准的地铁紧伺项目,同时北侧还有中山南二路、内环高架,西侧到沪闵高架路仅100米,距浦东机场和虹桥机场的距离分别为43公里和17公里。
商业配套上:
项目地处徐家汇核心,拥有8000平精品商业,MARK风尚生活主场;
可以说项目周边拥有先进奢享生活圈,港汇恒隆广场、汇金百货、美罗城引领,全球品牌随心而握。
在休闲资源上:

项目以伦敦金融城“One Crown”为蓝本,约9000平高端酒店,8000平精品商业,顶层天际会所于一体,定义时代人物高端生活主场。
售楼处品鉴热线:400-101-9071接通后输入777【品鉴中心】
对于很多行政公馆来说,高端的物业服务同样是不可忽视的一大价值点,项目物业服务是排名前列太平戴维斯&尚晨双物高端顾问;
打造三大高定体系,用心缔造奢侈品级的峰层服务。
塔尖享受高定
衣物送洗、酒店保洁、24小时接待、24小时安保、高级餐厅预定、豪华用车预定、全托管、个性化空间定制等服务

峰层社交高定
高级健身场所、顶层天际会所、高端商业中心、私宴定制、自助送餐、高阶活动定制等服务
商务行政高定
酒店会议场所提供、酒店、餐厅代预定、管家接机、管家代接待、客户行李寄存、专属资产顾问、大行前期物业顾问等服务

同时在室内,项目还拥有智慧家装智能空间系统,尚峯汇精研峰层对品质空间的高要求,打造M-智慧舱体系,构筑智慧场景,远见未来奢智体验
安全:智能门锁、智能APP全维管理、远程视频监控等360度智慧家装
商务:chang jing 模式、灯光、窗帘智能控制、时尚魔镜等前沿科技

会晤:语音机器人、访客对讲、电子信息管理等四重会晤体系
健康:新风智能控制、空调智能控制、户内环境监测等健康标准
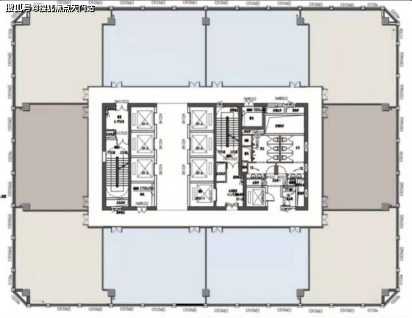
以下是项目在售户型图:





对任何一位有品位的沪上精英来说,居于此处等同于为灵魂寻找一处安静的栖息之地。
可惜的是,徐家汇板块可售的房子屈指可数,并且从土地供应角度看,往后也只会越发稀缺!
北京的公寓已经限购
深圳公寓已经停止批地
上海的公寓,持续火爆ing
预约看房
徐家汇城市名片
内环万体馆旁 尚峯汇
约160-640㎡行政商务舱
面积160平两房
面积167平三房
中心优质资产
不限购,不用积分摇号




售楼处品鉴热线:400-101-9071接通后输入666【品鉴中心】
如有问题欢迎来电咨询,来电即可享受买房优惠!
预约来电尊享内部优惠,可预约案场内部销售人员,专业一对一热情服务,让您用专业眼光去买房。
声明:本文由入驻焦点开放平台的作者撰写,除焦点官方账号外,观点仅代表作者本人,不代表焦点立场。
