越秀外滩樾2026售楼处:新品发布|主力户型解析|实景环境展示|预约看房专线
扫描到手机,新闻随时看
扫一扫,用手机看文章
更加方便分享给朋友

如有问题欢迎来电咨询,专业一对一热情服务,让您用专业眼光去买房。
最新消息:
虹口北外滩 低密风貌别墅临港越秀北外滩项目定名【越秀·外滩樾】样板间已开放!
基础信息
项目名:越秀外滩樾
区位板块:北外滩
开发商:越秀&漕河泾
总价:4500万到9500万
物业费:地上:26.8元 地下:13.4元
总套数:48套
在售面积:238-305-318-338㎡
地下室面积:80-160㎡左右
户型:地上3层,地下2层
层高:1层:3.6米 2层3.2米 3层3.2米 阁楼:2.9米 B1:6.15米
庭院面积:20-50平左右
均价:23.6万
总价:4500到 9500万
车位数量及配比:1:3
容积率:约1.3
交房时间:27年12月
交付标准:毛胚
项目卖点
1、项目周边多个商圈覆盖北外滩,外滩,陆家嘴,瑞虹商圈以及苏河湾
2、三重会所面积达2500平
3、内环内稀缺纯风貌别墅小区
4、项目总户数不多,交房周期短
5、北外滩规划已落地未来升值潜力更大
【越秀·外滩樾】项目地块四至范围
东至:梧州路,隔壁是中皇广场
西至:hk270B-02,隔壁就是1933老场坊
南至:周家嘴路
北至:柘皋路
日前,上海市规划和自然资源局对上海漕越经济发展有限公司虹口区嘉兴街道hk270b-04地块历史风貌保护项目进行了设计方案公示,项目未来将呈现48套低密风貌里弄住宅,面积约238-338㎡。

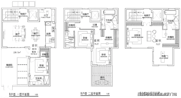
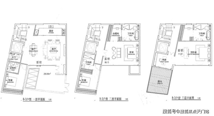
236.25㎡ A户型

239.13㎡ B户型

250.89㎡ B-3户型

C户型

291.42㎡ D户型

【传奇的1.5公里 启航外滩百年世界史】
项目所在地北外滩,是百年前上海的发源地。作为上海开埠后第一座码头的诞生地,北外滩率先“开眼看世界”,海纳万国文化风潮,众多此后影响中国的创举在此诞生,是上海最早的“十里洋场”。
【世界的1.5公里 再立世界上海新传】
傲立“一江一河”交汇处(直线距离黄浦江约1km),未来将打造成为彰显上海城市核心竞争力的黄金水岸和具有国际影响力的世界级城市会客厅,出入之间,相逢城市高阶未来。
【上海新封面】黄金三角顶序规划
北外滩,与外滩、陆家嘴并称为上海的“黄金三角”。将以2座陆家嘴的商务体量规划,新天地2.0生活圈打造,成为上海跃升世界舞台的“中心发力”新引擎。
【经济中心】全球化核心腹地
北外滩总开发面积约840万方,自陆家嘴之后上海最大开发区域,未来将聚焦资产管理、金融科技、绿色航运等上游产业,打造“运作全球的总部城”。
【地标中心】世界仰止的高度
北外滩将建设480米高的浦西第一高楼——上海北外滩中心,未来将携19栋摩天大楼集群共筑上海崭新天际线。
【极核中心】顶奢商业新地标
约1.5KM内拥享北外滩商圈、外滩商圈、陆家嘴商圈,华贸奢侈品品牌之家、白玉兰广场等潮奢集萃,未来上海顶奢商业新地标,举步间繁华尽拥。
【交通中枢】无界畅行世界
约360米新建路隧道(直线距离),快速直达陆家嘴CBD;
约670米外滩隧道(直线距离),直达外滩金融商业街以及老码头;
约150米北横通道(直线距离)贯通全城,快速通达虹桥机场/虹桥火车站;
约2.4公里大连路隧道(直线距离),直达浦东东方路、世纪大道、八百伴商业圈。
【42载越秀 | 千亿级开发商 与上海共卓越】
国内资产规模最大的地方驻港企业——越秀集团
42载国匠越秀 千亿级开发商——越秀地产
中国第一代商品房缔造者
2024中国房企综合实力TOP7
(信息来源:亿翰智库)
一城中轴 半壁越秀:打造广州地标IFC、城建大厦、维多利广场、越秀金融大厦、财富广场、市长大厦、广州环贸中心(ICC)等诸多重量级作品。
全球地标打造者:广州国际金融中心(IFC)高约440.75米,建成之时为全球10大超高层建筑之一,获得国际建筑界奥斯卡“英国菜伯金奖”。(此外,中国仅北京“鸟巢”和上海世博会英国馆荣获该奖项。)
豪宅基因始终传承:打造“广州第一富人区”二沙岛,屹立广州顶豪之列,整个二沙岛9个项目,有7个项目都是越秀开发,其中越秀宏城花园单价25万-40万/㎡,总价1-6亿,一房难求。
三公里内四所三甲医院,全生命周期护航
新华医院(儿科专长);
复旦大学附属妇产医院;
上海市第一人民医院;
上海东方医院(血管外科专长)。
幼儿园:约1公里内6所幼儿园(直线距离),涵盖东余杭路幼儿园等3所示范级学校;
小学:约1.5公里内5所小学(直线距离),涵盖区重点四川北路第一小学;
中学:约1.6公里内6所中学(直线距离),1所市重点、2所区重点。一路之隔上海虹口二中心小学(在建中),约2.3公里市重点上海外国语大学附属外国语学校(直线距离)*施教区及就学政策以教育部门规划为准。
▲ 示意图,图片来源于网络
2.5公里北外滩滨江绿地(约800m直达),四川北路公园、和平公园、鲁迅公园3大公园环伺,于滨江和城市低密绿芯之间,肇启当代诗意生活传序。
▲ 示意图,图片来源于网络
程绍正韬,建筑室内设计之东方主义集大成者,致力于东方文化的坚守与创新。他打破惯常的职业思维,将生活方式化作一种哲学态度,融入空间设计,让设计不止于作品。
李玮珉,撑起中国豪宅设计半壁江山,擅长为城市塑造文化符号建筑作品。他的作品更多用极简的方式来表明态度,崇尚简而高效的现代生活方式。庄重的建筑语汇,适时注入艺术、自然与美学,让空间充满想象力。
复刻百年前的高端工艺元素,让海派造诣世纪传承。清砖立柱、古典门头、封闭门窗、岩石山墙等经典海派建筑风貌转译,于历史和未来之间收藏百年上海。
▲ 本图片仅为方案过程讨论稿,并非交付标准
巷弄新生:内环内难得双拼别墅 ,超越风貌建筑的尺度感;
建筑新生:创新风貌规制,致微而筑的建筑腔调赏新;
美学新生:转译远东第一豪宅立面美学,收藏名门望族生活;
材质新生:豪宅同款奢砖、大面积奢石运用,定制家族排场。
▲ 本图片仅为方案过程讨论稿,并非交付标准
国内资产规模最大的地方驻港企业之一越秀地产,中国第一代商品房缔造者。41年越秀,30城300+项目,服务超100万业主;2023年销售额行业排名12,2023年TOP20销售业绩增长率最高房企。2024中国房企综合实力TOP9。入席北外滩世界会客厅,与上海共生长。(数据来源:克而瑞地产研究发布榜单《2023年1-12月.中国房地产企业销售榜top200》)
▲ 点击图片了解小区详情

如有问题欢迎来电咨询,专业一对一热情服务,让您用专业眼光去买房。
声明:本文由入驻焦点开放平台的作者撰写,除焦点官方账号外,观点仅代表作者本人,不代表焦点立场。
