探访上海滨江8号售楼处!深度解析其稀缺江景资源与顶级产品力,看这座一线滨江奢宅如何以非凡气度重新定义塔尖圈层生活范本。

搜狐焦点天门站 2025-10-02 11:49:27
用手机看
扫描到手机,新闻随时看

扫一扫,用手机看文章
更加方便分享给朋友

陆家嘴滨江8号精装公寓,双地铁口,总价低,精装交房,地段优越,交通便利。

售楼处预约热线电话:400-936-9938

陆家嘴核心CBD

双轨交地铁口约200米

与汤臣一品/九庐为邻

【滨江8号】

建面约87~121㎡精装公寓

总价约:568万~778万

不限购 低总价 线上预约

项目基本信息

陆家嘴滨江.8号物业类型商办所属板块陆家嘴建筑面积87-126㎡可售套数10套总价568-778万均价6万/平总高29层高3米拿地时间1992建成时间1995车位配比1:0.5车位租金750元/月定金金额50万交付标准精装交房时间2024.6.30装修标准5000元/平物业公司上海良盛丰有限公司物业费7.87元/月/平得房率75%产权年限50年水费6元电费1.1元梯户比4梯8户付款方式首付8成

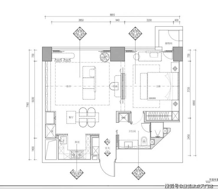
项目户型图及样板间

项目区位配套

项目地处上海陆家嘴金融贸易区,近江约100米。陆家嘴被誉为中国的华尔街,更是上海的金融中心、经济中心和贸易中心,是全球金融中心,陆家嘴金融城,与纽约华尔街、伦敦金融城并称为世界三大金融中心,陆家嘴滨江,也成为并肩纽约中央公园、伦敦海德公园的顶级资本豪宅区,成为世界豪宅的中国封面。

陆家嘴汇聚上海中心大厦、上海环球金融中心、金茂大厦和东方明珠四大地标建筑,260多幢商务办公楼宇、140多家跨国公司地区总部、340家全球500强企业、3000多家国内外专业服务机构、6000多家中外金融机构林立于此。

作为陆家嘴稀有的塔尖公馆,地段资源不可再生,黄浦江一线景观不可复制。俯瞰黄浦江的壮阔风景线,占据黄浦江21公里“黄金岸线”的黄金视角,与滨江公园咫尺距离,直赏上海中心、上海环球金融中心、金茂大厦“陆家嘴三件套”的城市天际线。

交通优势:世界级立体交通 三轨双桥六隧

三轨:

4、14号线浦东大道站仅约200米

贯通浦西浦东核心商圈:豫园、新天地、静安寺

4号线被称为内环换乘王,

可与1/2/3/6/7/8/9/10/11/12/14 号线换乘

19号线(在建)浦东南路站约500米

双桥:

杨浦大桥-约3公里

南浦大桥-约4.3公里

六隧:

大连路隧道-约1.1公里

人民路隧道-约1.4公里

新建路隧道-约1.1公里

复兴路隧道-约2.3公里

延安东路隧道一约2.6公里

江浦路隧道-约2.1公里

公交:609、610、981、81、85、313、455、522、774、浦东15路、浦东62路等20条线

轮渡:其昌栈渡口、泰东路渡口、东昌路渡口

高铁/机场:虹桥站——约25分钟 浦东机场——约35分钟

商业配套方面:

2KM国际商业圈:IFC国金、上海中心、正大广场、民生路太古里(在建)、浦东八佰伴、尚悦湾广场等国际知名商圈

城市核芯商业圈:新天地约4.8公里、人民广场约6.3公里、五角场约6.5公里、世博园约6.9公里

教育资源方面:冰场幼儿园、梅园小学、昌邑小学、东昌中学、建平中学西校、浦东实验高中、上海纽约大学

医疗资源方面:

上海浦滨儿童医院约200米

东方医院(三甲医院)约800米

上海中医药大学附属中西医结合(三甲医院)约1.7公里

第一人民医院(三级公立眼科第7名)约2.9公里

仁济医院(三甲医院)约4公里

上海儿童医学中心(三甲医院)约4.2公里

上海交通大学附属新华医院约7公里

陆家嘴核心CBD

双轨交地铁口约200米

与汤臣一品/九庐为邻

【滨江8号】

建面约87~121㎡精装公寓

总价约:568万~778万

不限购 低总价 线上预约

售楼处名字售楼处电话:400-936-9938(已认证)

营销中心热线:400-936-9938(欢迎致电)

售楼处预约电话:400-936-9938☎☎☎如有问题可来电咨询,预约销售专员,一对一为您服务!

声明:本文由入驻焦点开放平台的作者撰写,除焦点官方账号外,观点仅代表作者本人,不代表焦点立场。