2026时代之城楼盘详情-时代之城售楼处电话-时代之城(时代之城)官方首页网站-时代之城最新房价-户型-容积率-小区配套-楼盘详情/价格/户型
扫描到手机,新闻随时看
扫一扫,用手机看文章
更加方便分享给朋友
如有问题欢迎来电咨询,专业一对一热情服务,让您用专业眼光去买房。

【开发商】华润置地&华发股份
【拿地信息】总价约89.14亿元,山姆旁超白金超大宅地群
【项目区位】南翔正核·中央生活圈
【总体量】约30万方墅境国际美学社区
【产品类别】建面约89-135㎡墅区高层/小高层,建面约140-170㎡精装叠墅
【设计风格】现代极简+摩登国际
【楼幢数】4个地块相连,共38幢住宅
【总户数】约2871
【容积率】约2.2-2.4
【项目动态】实景示范区已开放
时代之城叠墅实拍图
10年前,华润置地首入南翔就打造了超前设计的「中央公园」,迄今为止,依然是南翔的人居标杆。
过去一年,华润置地在上海开启海派风格产品序列。从前滩润璟,到虹桥润璟,再到观宸润府、中環置地中心润府、翡云悦府、澐启滨江,奢玉、奢石、奢板等高端材质的甄选,定制化的海派花园,华润置地“品质卷王”名副其实~

华润置地近期标杆项目
如今华润置地和华发股份强强联袂,在南翔这块热土之上打造时代之城,依然是“卷到极致”!
项目聘请了GAD、陌向景观、FACE飞视等大师级别设计团队,分别负责项目的建筑设计、景观设计以及家装设计!
其中负责建筑设计的GAD团队,行业水平遥遥领先,代表作有上海黄浦8号、上海玫瑰园、北京豫园、杭州绿城江南里、苏州桃花源等斐名全国的豪宅项目,实力非凡!
时代之城鸟瞰效果图
建筑方面,美学立面质感十足!
高层/小高层立面采用极简线条垂直一体化设计,局部甄选天青色铝板和超大面玻璃开窗(LOW-E玻璃),彰显澄澈简约、时尚前卫的建筑气质;顶部具有昭示感的塔冠,成就璀璨夺目的城市天际线。
时代之城高层实拍图
时代之城高层建筑实拍图
叠墅立面则采用经典三段式设计,以传统经典演绎现代时尚,部分采用天青色釉面陶板,同样融合大面玻璃开窗(LOW-E玻璃),可更大程度的为业主带来宽绰视野,体验摩登生活。
时代之城叠墅实拍图



时代之城叠墅建筑效果图
景观方面,大师级别的设计团队也没有让人失望!
约30万方墅境美学社区内,项目规划九重归家礼序,从酒店式落客-迎宾式花园-摩登式会所-下沉式庭院-空中式庭院-主题式景观-架空式场景-精装式大堂-低密式住品,其中包含丰富多样的全龄化生活场景,如屋顶花园、下沉吧台、精装大堂、架空层等功能一应俱全,可满足全家人的生活志趣。
时代之城街区实拍图
时代之城街区实拍图

时代之城街区效果图
项目还配置了约2500平的奢华会所。这里集健身、游泳、瑜伽、私宴、空中花园等于一体,可以为城市精英带来一次质感生活的全然焕新与高端享受。
这些丰富的生活场景,则由两条景观轴线串联:一条是约300米的连续花园轴;一条是约600米的日常漫步街区。与此同时,项目在街角处还打造了多个口袋公园!

社区内部景观街区示意图,仅供参考
社区与街道融合和延伸示意图,仅供参考
居于此,推窗即是直击心灵深处的绿意美景,下楼即达治愈繁忙世界的漫步空间!理想生活莫过于此。
时代之城街区效果图
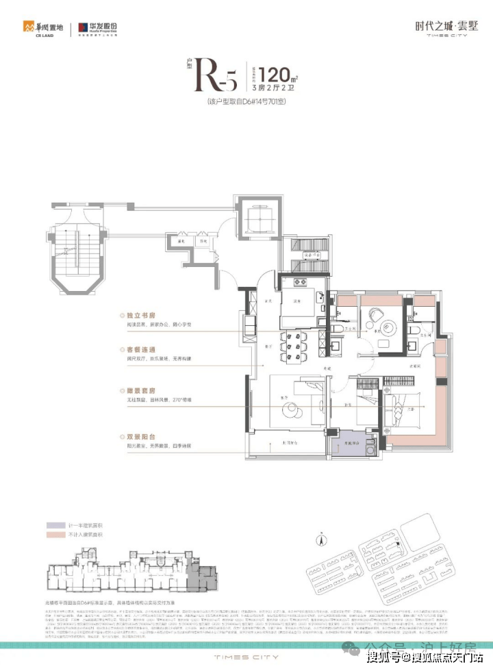
【华润华发·时代之城】项目推出建面约89-133㎡墅区高层/小高层,建面约140-170㎡精装叠墅。不同类别的户型选择,可匹配不同客户在不同人生阶段的生活方式所需。
精装设计沿袭华润置地“精致了无痕”品质修为,配置西门子、高仪等国际一线品牌,再加上精工细节营造,敬呈居者更美好的理想生活!

据悉,【 时代之城】十五批次 加推建面约104-177㎡小高层&叠墅,共计107套房源,火热建档中!目前已过会,均价56992元/㎡!正在认购中!




实拍图,仅供参考

建面约135㎡的四房是项目的明星户型,几乎是一抢而空的状态,采光、视野非常敞亮,南北通透,双阳台还能看到窗外的中庭景观。




户型图,仅供参考
下叠一楼:
下叠二楼:
下叠地下室夹层:
下叠地下室:
下叠二期做了改动,一层拥有一个充足的采光面&超级全明的空间,即使是七八月份的上海也丝毫不会闷热潮湿。附赠宽绰地下室+公共绿地(实际交付为毛坯)闲暇时可以在院子里养鱼,种花等等。

实景图,仅供参考
地下室的两个夹层(作为生活场景示意),不仅赠送面积多,还是三面采光!挑高开阔,丝毫没有压抑感。

实景图,仅供参考
一楼,客厅到庭院是全景的落地门窗,夏日凉风习习,边套下叠还拥有全明餐厅。
实景图,仅供参考
主卧拥有270度环幕飘窗,视野和采光优越,配备了高奢卫生间,空间感、尊崇感拉到顶格。

实景图,仅供参考
下叠的总价段在1300-1600万左右,完全能容纳三代同堂的温馨的墅居生活,置业的终极目标,一步到位!
建面约178㎡的中平

户型图,仅供参考
中平户型以四开间朝南的IMAX级采光面,打造出堪比市区豪宅的尺度感。4房4飘窗2阳台的设计,配合双套房布局,一共有三个套房,让每个家庭成员都享有独立私密空间。
客厅+餐厅联通+南向双阳台,尺度感非常强。同时还配备了独立的家政间,约4.4个m³,约等于100个标准登机箱的空间!

实景图,仅供参考
玄关也是非常具有仪式感,包括厨房拥有超长的操作台面,同样也是做了满级收纳。
主卧套房,不仅有豪华卫浴,女王卫生间+双台盆,大尺度衣帽间,甚至书房、工作室空间就在边上,业主能体验无上的尊崇与私密。
实景图,仅供参考
中平的价格在1100-1300万左右,大平层的居住体验,媲美奢华酒店的感觉,妥妥秒杀市区拥挤又高密度的小三房了。

5层:
6层:
阁楼:
二期叠墅新品从南向双阳台、U型厨房、多重收纳等维度入手,重新定义低密墅居生活。
上叠户型:
上叠户型更拥有南北双露台,实现空间利用最大化,满足多样化生活需求;
主卧套房布局配备独立卫浴,既保障私密性,又提升居住舒适度,打造专属的奢华休憩空间;
此外,二期叠墅新品,还在原有的精装交付基础上实现迭代,臻选国际精装品牌奢装,让空间更具实用主义、温暖感和精致感。
【南翔正核封面 链接主城桥头堡】
南翔紧贴外环线,可快速链接上海内中环核心区及虹桥商务区,直享市区辐射。项目择址云翔板块,是南翔不可多得的可持续发展区域,承载南翔乃至嘉定2035发展目标使命,文教、产业、生态优势显著,发展潜能无限。

【华润华发·时代之城】位于嘉定南翔板块,作为南翔3.0发展的核心区域坐拥3km醇熟生活圈。

交通配套方面:【立体交通网络 高效通达世界】
直距地铁11号线陈翔公路站约900米,近嘉闵线南翔站(在建),4站即虹桥;沪嘉高速、嘉闵高架等,极速驰骋轻松切换。(数据来源:百度测距)
◐3条轨交线:11号线(链接徐汇、浦东、前滩等CBD)、嘉闵线(4站直达虹桥商务区,未来无缝换乘13/14/机场联络线)、22号线(规划中)
◐2条高速路:沪嘉高速-中内环、沪翔高速-长三角
◐1条高架线:嘉闵高架向南,速抵大虹桥枢纽
◐1条联络线:嘉闵-沪嘉联络线(在建),衔接嘉定新城-大虹桥-中心城区的核心枢纽
(信息来源:南翔生活网、上海嘉定官微)

陈翔公路站实拍图
陈翔公路站实拍图
商业配套方面:项目与沃尔玛山姆会员店,仅一路之隔;上海最大单体商业印象城商圈约34万方、五彩城商圈约4万方、中冶祥腾商圈18万方、南翔老街约14万方、太茂商业广场约5万方......
嘉定山姆超市实拍图
嘉定印象城实拍图
教育资源方面:项目紧邻惠亚路中学,加上最新消息复旦附中的落地!整个云翔国际社区规划16块教育用地(涵盖9个幼儿园+2所高中+2所中学+3所小学)。
嘉定世外实拍图
医疗资源方面:嘉定拥有「上海瑞金医院北部院区」三级综合医院、「南翔医院」二级甲等综合医院等。
瑞金医院北院实景图
如有问题欢迎来电咨询,专业一对一热情服务,让您用专业眼光去买房。
声明:本文由入驻焦点开放平台的作者撰写,除焦点官方账号外,观点仅代表作者本人,不代表焦点立场。
