高福云境在售户型/高福云境首页网站/高福云境售楼处电话/地址/营销中心/最新价格/周边配套/容积率/楼盘小区详情
扫描到手机,新闻随时看
扫一扫,用手机看文章
更加方便分享给朋友
高福云境售楼处电话:400-936-9938(已认证)
高福云境营销中心电话:400-936-9938(欢迎致电)
高福云境售楼处预约电话:400-936-9938☎☎☎如有问题可来电咨询,一对一为您服务!
高福云境售楼处地址预约看房:400-936-9938(官方认证)
黄浦“钻石”地段 淮海中路
巨鹿路 长乐路
万科·高福里项目定名
【高福云境】
将保留全部石库门建筑作为别墅项
兴建150米的超高层住宅
超高层面积约270-580㎡
预计均价22万/㎡
售楼处即将开放
由于客群太多,请提前预约
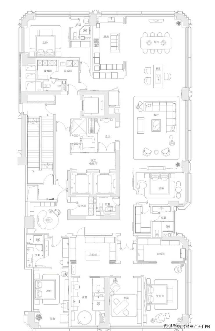
约600平方米过程户型图
(部分楼层平面略微不同)
约600㎡户型是6房带4套房,完整满足了居住在平层的所有功能空间需求。
主卧套房,搭配有专属书房,总体空间接近150㎡,本身就是一间豪华公寓,同时带有男女主人双重衣帽间,是真正能够享受到别墅级的居住尺度。
衣帽间、卫浴间、主卧都是肉眼可见的奢侈。
样板间实景:

另一个样板房是约320平方米的中间套,采用两梯两户设计,独立门厅。
约320㎡户型配备了单独带浴室的家政空间,可作为独立保姆间或是独立家政空间。
高福云境的室内设计师1508 London打造了许多国际知名的豪宅作品,包括海德公园一号(伦敦)、伦敦骑士桥豪华公寓、 迪拜文华东方酒店、The OWO私人住宅(伦敦)。
样板间实景:


效果图:
显示,007-01地块(大)拟建47栋3F多层住宅(包含部分底层商业)、1处幼儿园以及若干社区配套;将打造石库门风貌别墅产品。
据上海市规划和自然资源局显示,黄浦风貌别墅项目——黄浦区HP-23-II街坊(高福里)项目建设工程设计方案正式公示。
万科即将开建的高福里旧改项目,将保留全部石库门建筑作为别墅项目,在这之外还要兴建150米的超高层住宅,总体量约9.65万平方米。
据目前限价估算,总货值或将超过200亿元。
最新规划效果图

历史划效果图
这次规划的幼儿园和菜场位于地块的西北角。
「高福里」总占地面积约3.7万㎡,容积率2.66。整个007街坊除了150米超高层+石库门别墅外,还包含幼儿园、菜场、新建向明中学宿舍、游泳馆以及绿地一处。黄浦区瑞金二路街道007-1(部分)地块及007-4、007-6地下空间地块(高福里新增相邻地块)
四至位置:东至延中公园、南至长乐路、西至瑞金一路、北至巨鹿路。
土地面积:0.97公顷
土地用途:普通商品房
出让价格:21.9539.5万元
公共服务设施:
配置幼儿园1处,菜场1处、通信机房1处,社区服务设施建筑等
保障性住房:总住宅建筑面积的5%配建保障性住房
全装修住宅:地块内全装修住宅建筑面积应占新建商品住宅建筑面积的100%
中小套型:本地块中小套型不作要求
这次出让的地块主要来自于007-1(部分)地块及007-4、007-6地下空间地块。其实就是高福里旧改项目的一部分。
项目位置非常核心,就在凯德茂名公馆的东侧。
最近地铁站是地铁13号线淮海中路站。
如果说上海的繁华在外滩、陆家嘴和南京路,那么它风情与市井的另一面,就在巨鹿路、富民路和长乐路。
地块的北侧是巨鹿路,一街之隔是延中广场,环境不错。走几步还能见到隐约在其中的一栋花园洋房,这栋洋房别院据传是原杜月笙的公馆,非常有旧上海的调调和韵味。
南侧的长乐路是一条有人物,有故事,有历史的路。则是向明中学国际部、以及上海社会科学院的校舍,这里前身是震旦女子文理学院。
老震旦楼1952年划给社会科学院。此楼由法国建筑设计师赉安设计,为1928年建成的"圣心女子修道院"主楼,是一幢坐北朝南的三层钢筋混凝土建筑。
靠近成都北路一侧是成巨地下停车场。
项目效果图
根据设计方案显示,007-01地块(大)拟建47栋3F多层住宅(包含部分底层商业)、1处幼儿园以及若干社区配套;将打造石库门风貌别墅产品。007-01地块(小)拟建1栋43F超高层住宅以及若干社区配套,超高层无中小套户型要求,全装修比例为100%。规划范围内各类保护保留历史建筑的建筑面积不少于5.28万平方米,其中优秀历史建筑的建筑面积约0.11万平方米,文物保护点约2.49万平方米。
高福里因为开发历程太过悠久,前期方案改了又改,按照目前公示的最新控规,将会保留全部石库门建筑,作为独栋及联排别墅,同时兴建一栋150米的超高层豪宅,成为浦西住宅的制高点之一。
老版规划效果图
本次公示的地块是高福里新增相邻地块,地处淮海中路黄金路段,直线距离约200米地铁13号线淮海中路站。这个区域是上海最繁华的商圈之一,商业、文化氛围非常浓厚。这里有包括环贸iapm、K11购物艺术中心、香港广场、上海连卡佛等在内的高端商场,也有巴黎春天、百盛和淮海755等中断百货,还有包括FOUND158、INS复兴·乐园、TX淮海这样的上海潮流夜生活地标。
地块北侧的巨鹿路与南侧的长乐路则是上海小资生活的“示范区”,在这里不仅有精致的购物小店,还有小资腔调的餐饮文化店铺。
在未来,除了巨鹿路雁荡路轴线,石门路瑞金路与淮海路两大轴线,还有众多项目在打造之中。
就在高福里西侧,因为高福里拆迁问题无法解决,而迟迟无法建设的茂名公馆商办部分——凯德大厦也因高福里的顺利动迁而得以复建,未来将打造一座超高层商办综合体。
而在瑞金路淮海路路口,永业开发的龙凤商厦也已经封顶,未来会成为淮海路中段的最大商业体。
众多新项目的陆续建成,加之以现在已经形成的氛围,未来的淮海路中段有望云集夜店、电竞、餐饮、展览、艺术文化剧场、潮牌等所有年轻人喜欢的业态,在上海形成独树一帜的氛围,有望成为中国未来的潮流圣地。
这个区域的优势是堪比东京的街区尺度与商业零售氛围;同时相比于安福路,又有众多大大小小的新商业项目,可以持续为区域注入生命力,也能承载更多的业态。
黄浦“钻石”地段 淮海中路
【万科·高福里】
将保留全部石库门建筑作为别墅项
兴建150米的超高层住宅
总体量约9.65万平方米
高福云境售楼处电话:400-936-9938(已认证)
高福云境营销中心电话:400-936-9938(欢迎致电)
高福云境售楼处预约电话:400-936-9938☎☎☎如有问题可来电咨询,一对一为您服务!
高福云境售楼处地址预约看房:400-936-9938(官方认证)
声明:本文由入驻焦点开放平台的作者撰写,除焦点官方账号外,观点仅代表作者本人,不代表焦点立场。
