上海徐汇尚峯汇真实报道!徐汇尚峯汇火遍整个楼市!附图文解析!
扫描到手机,新闻随时看
扫一扫,用手机看文章
更加方便分享给朋友
上海徐汇尚峯汇
➽➽(来电预约享内部折扣)➽➽
➽➽售楼处电话:400-101-9071接通后输入520➽➽
➽➽网上售楼中心〢欢迎来电咨询〢提前预约可享内部优惠〢专业一对一热情服务➽➽
可惜的是,徐家汇板块可售的房子屈指可数,并且从土地供应角度看,往后也只会越发稀缺!
北京的公寓已经限购
深圳公寓已经停止批地
上海的公寓,持续火爆ing

徐家汇城市名片
不限购平层行政商务舱
全球先进物业戴维斯服务
徐家汇全球行政商务舱排名前列
9.28号开盘顺销
定金100万 验资500万
开发商纯一手 无议价不做底
基础信息:
项目开发商:阳光集团
项目地址:漕溪路地铁口
拿地时间:2010年
房屋属性:商办50年
销售情况:开盘在即
在售面积:160m2-640m2
销售单价:均价8-12万
销售总价:1300万~6400万
交付时间:2023.6.30
交付情况:精装交付
基础信息介绍:
1.物业公司:阳光物业,排名前列太平戴维斯(双物业)
2.物业费:20元/平米/月
3.总户数:338
4.总高:21(8T10户),内部层高4.2米
5.车位数:475
建筑面积:10万方
占地面积:18000
容积率:4.23%
售楼处品鉴热线:400-101-9071接通后输入520【品鉴中心】
城市更新开启了上海的内涵增长时代,徐家汇CAZ中央活动区成为了其中的示范标杆,全面升级迈向新高度。
6月3日,由恒盛地产和澎湃新闻联合举办的“海派之源徐家汇,峯领上海新中心”澎湃城市发展论坛,在阳光滨江中心开启

徐家汇长期以来一直承担着上海经济、文化等方面的领头羊角色,也是海派文化的源头。
如今,在上海冲刺2035全球先进城市的重要时刻,再一次扛起先锋的大旗,晋级2035 CAZ中央活动区,以400年的文化底蕴“反哺”城市更新,成为上海迈入全球先进城市的重要一环。
而恒盛地产一直致力于成为城市的建造者与推动者,十余载来深耕上海,以匠心筑就经典,从皇家花园到尚海湾,均以城市标杆作品标准倾力打造。
较新产品尚峯汇,站位徐家汇中心之上,与万体馆(徐汇体育公园)咫尺对望,可以说在项目区位上,尚峯汇是特别不输众多行政公馆的。
同时,孕育和策源了海派文化的徐家汇,历来人文集聚,史迹荟萃、商贸繁荣,在上海2

035规划中被划为CAZ中央活动区。
也因此,从地段价值来看,从商业副中心到中央活动区,徐家汇未来的经济承载体量将再上一个等级,而尚峯汇在其中的价值也将不断攀升。
售楼处品鉴热线:400-101-9071接通后输入520【品鉴中心】
从项目区位图不难看出,项目地处徐家汇板块核心,周边生活配套已经非常完善。
在交通上:
项目周边有一桥双隧七轨,多维的立体枢纽
项目距离3号线漕溪路站约140米,是标准的地铁紧伺项目,同时北侧还有中山南二路、内环高架,西侧到沪闵高架路仅100米,距浦东机场和虹桥机场的距离分别为43公里和17公里。
商业配套上:
项目地处徐家汇核心,拥有8000平精品商业,MARK风尚生活主场;
可以说项目周边拥有先进奢享生活圈,港汇恒隆广场、汇金百货、美罗城引领,全球品牌随心而握。
在休闲资源上:

项目以伦敦金融城“One Crown”为蓝本,约9000平高端酒店,8000平精品商业,顶层天际会所于一体,定义时代人物高端生活主场。
售楼处品鉴热线:400-101-9071接通后输入520【品鉴中心】
对于很多行政公馆来说,高端的物业服务同样是不可忽视的一大价值点,项目物业服务是排名前列太平戴维斯&尚晨双物高端顾问;
打造三大高定体系,用心缔造奢侈品级的峰层服务。
塔尖享受高定
衣物送洗、酒店保洁、24小时接待、24小时安保、高级餐厅预定、豪华用车预定、全托管、个性化空间定制等服务

峰层社交高定
高级健身场所、顶层天际会所、高端商业中心、私宴定制、自助送餐、高阶活动定制等服务
商务行政高定
酒店会议场所提供、酒店、餐厅代预定、管家接机、管家代接待、客户行李寄存、专属资产顾问、大行前期物业顾问等服务

同时在室内,项目还拥有智慧家装智能空间系统,尚峯汇精研峰层对品质空间的高要求,打造M-智慧舱体系,构筑智慧场景,远见未来奢智体验
安全:智能门锁、智能APP全维管理、远程视频监控等360度智慧家装
商务:chang jing 模式、灯光、窗帘智能控制、时尚魔镜等前沿科技

售楼处品鉴热线:400-101-9071接通后输入520【品鉴中心】
会晤:语音机器人、访客对讲、电子信息管理等四重会晤体系
健康:新风智能控制、空调智能控制、户内环境监测等健康标准
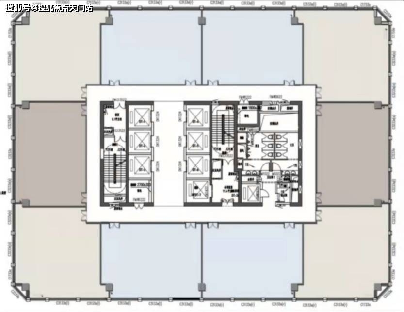
以下是项目在售户型图:





对任何一位有品位的沪上精英来说,居于此处等同于为灵魂寻找一处安静的栖息之地。
可惜的是,徐家汇板块可售的房子屈指可数,并且从土地供应角度看,往后也只会越发稀缺!
北京的公寓已经限购
深圳公寓已经停止批地
上海的公寓,持续火爆ing
预约看房
徐家汇城市名片
内环万体馆旁 尚峯汇
约160-640㎡行政商务舱
面积160平两房
面积167平三房
中心优质资产
不限购,不用积分摇号




售楼处品鉴热线:400-101-9071接通后输入520【品鉴中心】
如有问题欢迎来电咨询,来电即可享受买房优惠!
预约来电尊享内部优惠,可预约案场内部销售人员,专业一对一热情服务,让您用专业眼光
声明:本文由入驻焦点开放平台的作者撰写,除焦点官方账号外,观点仅代表作者本人,不代表焦点立场。
