华润澐启滨江售楼处电话:400-8669-938

# 最新消息#
浦东后滩 华润置地中国江河1号作品
「澐启滨江」等待入市
将推约123-286㎡3-4房
预计总价1500万+
城市展厅已开放接待



当黄浦江的潮声又一次叩响时代,上海滨江版图迎来重磅新篇——2025年最受期待的滨江项目正式揭开面纱, 华润置地全新力作 “澐启滨江” 案名盛大亮相。
这不仅是华润置地深耕上海 33载的又一匠心答卷,更是其在世界级水岸之上,对滨水生活的终极探索,为黄浦江最后一湾写下全新注脚。

澐启滨江的亮相,不仅是案名的揭晓,更是华润置地以领航之姿对滨江生活的全新定义。
不负这片土地的稀缺价值,华润置地深研海派文脉,特邀全球大师团队联袂创作,将经典 Art Deco 美学与现代建筑精神交融 —— 让建筑的线条如江潮起伏,让社区的肌理与湾岸自然呼应,从根源上实现 “建筑与江的共生”,让每一栋建筑都成为黄浦江畔的风景。


在这里,生活将是一场“登舰巡游的归心史诗”: 社区如航舰,引领一种与世界同步的生活方式;而屹立于S湾的领帆建筑群像,现代笔法勾勒浦江四季潮起,成为上海滨江不可替代的视觉地标;
更重要的是,澐启滨江将构建“永续生长的生命共同体”—— 融合世界级资源、大师级设计与沉浸式生态,打破传统豪宅的边界,革新上海对水岸生活的一切想象




从 33 载深耕的匠心,到最后一湾的稀缺,再到全球共生的远见,澐启滨江的每一步都与上海的未来同频。如今案名已亮,更多精彩即将展开,敬请期待这场属于黄浦江、属于上海的滨江生活新史诗。
更多关于水岸生活的宏大叙事,正在笔下生长。

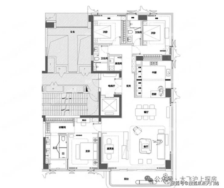
全套户型图抢先看
(过程稿,以开发商发布为准)
【123㎡3房2厅2卫】

【150㎡3房2厅2卫】

【185㎡4房2厅2卫】

【200㎡4房2厅3卫】

【227㎡4房2厅3卫】

【235㎡4房2厅3卫】

【238㎡4房2厅3卫】

1
基本信息
8月1日,华润置地联袂南房集团以底价244.7亿元,通过100%股权转让的形式,获取浦东后滩及黄浦余庆里资产包。

其中,浦东后滩板块包括上钢社区Z000101单元04-1地块、07-1地块两幅住宅用地,黄浦余庆里涉及七幅住宅+商办地块。


就在公告当天,07-1地块设计方案随即公示!网传项目产品定位为华润旗下的高端“瑞”系,如传言为真,这将成为华润继外滩瑞府后“瑞系”的又一力作。
07-1地块用地面积39577㎡,容积率3.2,住宅下限1050套,限高100米。

根据公示,项目拟建9栋25-32层高层住宅,包括1幢25F住宅,1幢26F住宅,1幢28F住宅,3幢29F住宅,1幢31F住宅,2幢32F住宅。

社区全部楼栋均采用一层架空设计,设置有大面积的下沉式庭院、地下会所以及风雨连廊;社区采用完全式人车分流设计,人行主出入口位于德州路,三个车行出入口分别位于位济明路、德州路和德恒路;地块东南侧1-1和1-3号楼下做了公建配套和底商,3-1号楼东侧也有部分配套。
相比于会先入市的07-1地块,04-01地块的位置更优,不仅紧邻川阳河,南向视野还能直接俯瞰前滩核心区域,景观溢价空间值得期待。
南侧的04-1地块占地面积4.19万㎡,容积率2.9,住宅限高80米,住宅套数下限为1010套。同样有40%中小套型要求,100%全装修,无租赁用房/保障房比例要求。
2
周边配套
从区位上看,后滩九宫格位于内中环,是浦东内中环仅剩的三大可成片开发区域,另两个是北蔡楔形绿地和新杨思,后滩也是这三个区域中位置最好的。

我们俗称的后滩,其实属于浦东世博板块,大致是指川杨河以北, 后滩公园以南,东起南北高架,西至黄浦江,相比前滩更靠近内环。
后滩九宫格北接世博文化公园、南邻前滩,西面隔黄浦江就是徐汇滨江,区位非常好;且是黄浦江核心段硕果仅存的滨江住宅,具备较强稀缺性。
位于内中环,被划入了中央活动区CAZ,也是稀缺的可成片开发的区域。 7号线后滩站可以串联徐汇滨江、静安寺等核心商圈, 19号线也在九宫格内设站德州路站。

那后滩好在哪里?
首先,从整体的定位来看,后滩被定位为了 “世界级新地标”,板块内的功能也是高度复合的,包括了文化、商务、会展、旅游等诸多方面。

同时,后滩还被划入了上海“中央活动区”(CAZ)之中,浦东CAZ范围很小,就只有两个地方,其一陆家嘴,其二世博-后滩-前滩,全部沿着黄浦江,后滩地位不言而喻。
其次,从区位上看,后滩九宫格位于内中环,是浦东内中环仅剩的三大可成片开发区域(另两个是北蔡楔形绿地、新杨思),后滩也是这三个区域中位置更好的。
同时它与济阳X村、上钢X村隔着南北高架,未来就是一个崭新片区。
第三,滨江,后滩住宅可能会有不错的江景。
根据规划,后滩九宫格首排商业、商办地块皆是限高50米,而07-1、08-2地块限高100米,04-1、05-4地块限高80米。
这意味着,07-1地块,04-1地块的中高区可能有不错的瞰江视野。
第四,从配套上看,地铁自驾都很方便,同时是真正的出则繁华、入则静谧的地段。
交通上,原有7号线后滩站,串联徐汇滨江、静安寺等核心商圈,但相对来讲,站点近后滩商办,离九宫格略远;
但19号线的建设,真正打通了后滩任督二脉,不仅后滩站双轨交汇,还规划了德州路站,就在九宫格门口。
19号线作为上海市未来将落成的最具价值的轨道交通线,弥补了浦东滨江地区轨道交通不足的问题,串联了宝山站、北外滩、陆家嘴、前滩、三林等重点板块,将后滩地区的轨道交通连通度提升了一个台阶。

自驾上,东面不远就是 南北高架路,通勤市中心方便;同时邻 龙耀路隧道,一脚油门就是徐汇滨江。


商业上,世博-后滩一带商业不多,世博源也不温不火,但好在前滩商业调性上佳,氛围也逐渐成熟。
后滩九宫格直线前滩太古里只有约1.5公里, 地铁1站路(19号线德州路站→东方体育中心)。
我倒觉得这个距离恰到好处,是真正的出则繁华、入则宁静。

当然,相比其它滨江段,后滩国际文化休闲配套独树一帜,相应地,以后住在这里,生活方式更休闲、更亲近自然,看演唱会、各种展览也很方便,生活接轨国际。
比如,这里有13座高规格文体场馆一路连缀,打造上海独树一帜的文化icon。
世博-后滩浓缩了全上海规格最高的文体配套,梅赛德斯奔驰文化中心、中华艺术宫、上海大歌剧院、世博展览馆、久事国际马术中心等都在这里,形成一条上海独具一格的文化艺术带。

如此高密度的国际文体场馆,让世博-后滩成为上海承接演唱会、音乐节、新品发布会等国际水准活动的“首选地”。
据公开资料显示,世博将承接浦东40%、上海18%的文体活动,每年700余场大型文体活动,接待千万人次客流。
事实上,世博-后滩的文体场馆及表演已接近伦敦西岸、纽约百老汇。

又比如这里落地了上海的中央公园——世博文化公园,赋予了后滩更为休闲的价值底色。
在CAZ范围内,上海市仅有2个大型的城市中央公园。

相比建成年代较早的人民公园,世博文化公园有诸多后发优势:
世博文化公园的面积更大,共计近2平方公里,相当于25个人民公园,是中心城区最大的公园绿地。另外,世博文化公园旁边还有面积达2.5平方公里的黄浦江水域,公园可与这一广阔水域相融。
世博文化公园的工程斥资力度更大,滨江机动车道下穿、两座观景生态山,成为上海中央活动区内唯一的登山区、引黄浦江水成湖,工程难度大,并且对水循环方案的研究使得湖内水质也极有保障。

除了规模和形制外,世博文化公园还有三大优势, 将使之成为上海市最具标识性的公园。
一是人造“双子山”:
作为上海市区的“高地”,人造双子山项目,是世博文化公园最大标志性景观,建设用地面积为30万平方米,由两座高度不等的山体组成,最高峰48米,次峰37米,目前已成为大众周末休闲的打卡胜地。
二是公园内部有超大文化设施集群:
上海大歌剧院(中式折扇)
上海大歌剧院将打造国内乃至亚洲首个集演出交流、创制排演、艺术教育等功能为一体,“白天开放+晚上演出”运营的歌剧艺术中心,预计2025年试运营。

上海久事国际马术中心
久事国际马术中心是国内首座符合国际顶级马术赛事标准的专业场馆。主体建筑包括竞赛场地、热身场、训练场和马厩等竞赛设施以及5000座的观众看台。山、水、谷的设计理念。目前已完成地上、地下结构、钢结构、升降灯架等重要工序。

除此以外,世博场馆的保留建筑将使世博文化公园成为全市范围内不可替代的文化高地。
比如法国馆、俄罗斯馆、意大利馆、卢森堡馆这4个原世博会欧洲片区场馆,都进行了保留改造。
另外产业端,后滩产业导入一般,但紧贴的世博和前滩很给力。
其中,世博片区已发展成央企总部、国际企业聚集区和浦东第二政务办公中心,目前已有26家央企的近80家公司集聚世博片区,总部经济蔚然成风。

而前滩目前已吸引近300家企业入驻,其中七成为外企,跨国公司地区总部达到30+家,包括普华永道、希尔顿、美敦力、武田制药等
华润澐启滨江售楼处电话:400-8669-938
