南山璞缦(售楼处)首页网站-南山璞缦销售中心(营销中心)南山璞缦楼盘欢迎您-小区环境-户型-价格-地址-楼盘详情-周边配套-楼盘欢迎您

搜狐焦点天门站 2025-10-02 10:30:00
用手机看
扫描到手机,新闻随时看

扫一扫,用手机看文章
更加方便分享给朋友

南山璞缦售楼处电话:400-8669-938

南山璞缦售楼处电话:400-8669-938

编辑

过去整整十年,嘉定新城这片热土上,成千上万套新房面市,但真正能称得上“纯粹大平层”’的200平左右户型,掰着手指头数,也就那么几套!毫不夸张地说,平均每1000套新房里,只有3套能达到这个尺度与纯粹度。

现在,南山璞缦就带着这样建面约198㎡的超级大平层来了! 而且,总共仅售32席!这是什么概念?这就是嘉定城芯楼市里的“稀有物种”!是真正懂行的改善家庭、高净值人群紧盯着的“藏品”。

当多数人还在为内环老破小与远郊新房纠结时,南山璞缦以总价400万起,直接对标内环品质,这份“超配生活提案”的底气究竟从何而来?

南山璞缦从三个维度娓娓道来:

1、城央核脉

南山璞缦占据嘉定城央核心地段,集聚政商、文化、自然等城市核心资源,与区域发展红利深度绑定。在这里,每一寸土地都承载着城市的未来与价值。

2、国际设计天团

项目汇聚张思建筑设计事务所、奥雅景观设计、HWCD设计事务所和壹方空间设计四大全球顶尖团队,联袂打造嘉定前所未见的海派奢宅。从建筑到景观,从室内到细节,每一处都彰显国际水准。

3、纯享圈邻服务

建筑面积约105-198㎡的平层大宅,配备约1500㎡恒温泳池会所、一栋一主题的社交空间、约45米气派门庭以及嘉定最高装标。这些不仅是生活的配套,更是峯层人士的专属礼遇。

更重要的是,南山璞缦的户型设计覆盖从刚需改善到终极改善的全生命周期需求,让“一步到位”成为更多人的选择。当市场还在讨论“值不值”时,南山璞缦已经用顶豪配置证明——奢享生活,无需妥协。

纯粹改善的海派大宅

遥遥领先的产品力

如果您熟悉上海楼市,你就会发现:只有在豪宅市场中才会有“海派风格”,像市中心的弘安里、中海顺昌玖里..等亿级项目,都是海派风格。

非市区板块中最多的也就是现代风格或是新中式风格。

为什么?

第一,海派融合了中西方元素,不仅保留了传统中国建筑的精髓,还吸收了西方现代建筑的技术和设计。对于开发商和设计、建造团队的要求,极其苛刻。

第二,还原海派风格需要珍稀的材料和工艺,这需要昂贵的成本。

这两点,让海派风格的建筑和项目,始终无法出现在非市区板块。而南山璞缦,在这样的市场背景下,为整个嘉定,甚至是整个上海非市区板块,带来了一座真正意义上的:海派大宅。

为了这个项目,南山地产几乎是不留余力的。首先,诚邀HZS建筑设计、深圳奥雅景观设计、HWCD室内设计及深圳壹方空间设计等国内外一线豪宅的设计团队,为嘉高定新的品质封面。其次,打造了整个嘉定,甚至是非市区板块从未有过的超高标准公区。

嘉定主城,唯一拥有下沉式庭院会所的新房

在南山璞缦社区内,光是凭借这个拥有恒温泳池的下沉式庭院会所就能感受到开发商的诚意。

编辑

这一配置放眼整个嘉定,屈指可数!试想一下夏天,别人在下饺子般的游泳中心“内卷”,而你和家人在小区配套的泳池“躺平”,这就是区别,这就是更高端的生活方式。

据悉,会所将配备泳池、健身房等功能区。业主们除了在这里健身,还能进行邻里交流,举手投足间尽显优雅品味。这样的空间设计既有排面,也很实用,相当于业主的第二客厅。

编辑

除此之外,会所还拥有下沉水光庭院,与周围建筑融为一体,如自然盆景。

编辑

编辑

这既是格调的象征,也能在无形中为二手房加分。

甄选全球奢石考究形制,匠造嘉定更美的高定新房!

用料上,南山璞缦更是“舍得”。就拿里面来说,社区立面提取市花白玉兰形意,建筑局部运用香槟金金属铝板,融入曲线圆弧元素,打造了全嘉定最美的城市天际线。

编辑

而整个社区的宽奢建设,更是运用到了大量的圆弧技法,这是顶级豪宅才有的规制。

编辑

编辑

“双轴6景”高配景观体系,匠造度假式社区!

园林方面,南山璞缦汲取“当代景观之父”彼得沃克,线性公园及度假式酒店为灵感,匠作由“礼序归家轴+景观漫步轴”纵横交织的双轴景观动线。

编辑

代入州桥老街、秋霞圃、远香湖、古猗园、紫藤园、银杏古树等嘉定古今6景,萃取细节元素及专属色系,营造6大景观主题空间。

编辑

编辑

编辑

编辑

地下地下双大堂+臻装地下车库,匠造度假式社区!

首批次均价约4.48万/㎡的新房,能拥有如此标准的配置,整个嘉定只要南山璞缦一个。

编辑

编辑

从格调、定位、风格、用料、宜居性、社区配套的丰富性..各个角度来看,南山璞缦都是嘉定主城的TOP1,甚至是整个嘉定的品质封面。

一旦步入二手,南山璞缦就是嘉定二手房市场的品质王者,掌握着整个区域的二手房定价权。

编辑

主力建面约123-198㎡顶奢3-4房

嘉定唯一的纯粹改善大宅!

关于产品,有一个前提跟大家分享下:整个嘉定目前还是以百平米左右3房为主力供应段,建面约120㎡以上的产品今年仅占比约24%,极度稀缺。

编辑

编辑

而整个嘉定主城目前以建面 约123-198㎡顶奢3-4房为主的项目,只有南山璞缦一个。

现在,南山璞缦就带着这样建面约198㎡的超级大平层来了!而且,总共仅售32席!

这是什么概念?这就是嘉定城芯楼市里的“稀有物种”!是真正懂行的改善家庭、高净值人群紧盯着的“藏品”。

加上之前提到的南山璞缦周边,有大量公务员、高级学府内的教师、学生、职工以及大量高端产业内的高新高知高智人才。这意味着南山璞缦未来的社区居住氛围,将以纯粹改善为主。

这样的社区,才能给业主更好的居住体验,才能给孩子更好的居住环境,才能给家里老人更宜居的居住氛围。

与现在轨交旁的一些以小户型为主,主力吸引刚需客户的项目相比,这是社区定位上的不同,也是未来居住氛围上的不同。

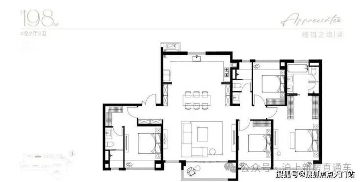
再来看产品,最新户型图如下:

编辑

编辑

上车首选户型!建面约105㎡的房源,主力总价段约400万级,这个价位段能买到嘉定品质标杆,绝对的性价比。 没什么好说的,冲!

编辑

改善宽奢3房!标准的长面宽、短进深户型,再加上大宽厅的设计,采光面非常出众。另外,宽厅除了增加南向采光面外,还能作为一个灵动空间,不管是用作健身区域、瑜伽空间还是孩子的游玩天地,都是极佳的选择。

编辑

一步到位的宽奢4房!这是一个超大横厅的飞机户型,尺度感超强,餐厅甚至能放下一个8人桌,让一家人享受天伦。双套房的设计更是让各个家庭成员都能享受到私密空间。

编辑

编辑

终极改善的顶奢4房!极端宽奢的南北通透户型飞机户型,你能想象到的美好都能在这个户型中体验到。

总结一下,经历过动荡之后你才能真正体会到一个头部地段+头部产品的新房,给你的笃定和安全感究竟有多重要,这是你始终屹立在同板块价值顶端的底气。

而对于追求居住、改善、配套、未来的购房者来说,南山璞缦不用多说,就是嘉定更具匠心、更具居住舒适度、更具审美和产品力的项目。抓紧机会!

编辑

南山璞缦之占位

汇聚了一城之资源

南山璞缦的占位,可以用四个字来概括: 天生塔尖

每一个伟大的板块,都有一条黄金主轴! 无论是巴黎的香榭丽舍大街,纽约中央公园,还是北京长安街、浦东的世纪大道...这些黄金主轴无一例外地集中了这座城市最顶配的产业资源、文化资源和交通资源。

同时,也是这些世界名城的豪宅最为集中的地段!而在嘉定,主轴只有一条: 城中路-沪宜公路-嘉闵高架组成的烫金主轴。

编辑

这条主轴贯穿了嘉定城央、嘉定新城CAZ,直上嘉闵高架!

这条路所汇聚的资源,其完善程度、其能级,堪称非市区之最!

首先,从南山璞缦出发,沿着城中路往北走,两侧是绵延不绝的商店;在这里,就算是冬天的半夜12点,街上依旧会有不少还在营业的小餐厅,这是只有市区才能享受到的高阶烟火气。

当然,也有罗宾森广场、东方商厦等大型商城;也有上海大学、嘉定区中心医院等教育、医疗资源;

还有嘉定博物馆、孔庙、法华塔、汇龙潭、秋霞圃、州桥老街等历史建筑和园林景观。

沉淀百年的历史文脉、高阶烟火气、高能级教育、医疗配套,就在业主的家门口。其次,从南山璞缦出发,沿着城中路往南走,就是嘉定新城的caz!

编辑

远香湖CAZ是五个新城中目前仅有的官宣的中央活动区,定位为嘉定新城中的综合功能中心与城市形象集中展示区,集聚国际住区、大型商业集群、摩天地标集群、科创科研企业集群、国际教育文化等功能为一体。(规划内容来自上海嘉定微信公众号)规划能级之高,配套之丰富,产业之强盛,遥遥领先其他刚需板块!而这些,全部都位于南山璞缦周边的1英里范围内!

也是嘉定唯一一个,能囊括城央资源+新城caz资源的新房。一方面,这意味着南山璞缦未来的生活便捷度。

另外一方面,上海大学带来的老师、学生及职工、嘉定区政府及周边办公聚集的公务员、caz高能级产业带来的庞大高新高知高智人群,全部聚集于此。

南山璞缦这个超高品质封面住宅的出现,势必将吸引这些人群的偏爱,未来整个小区的居住圈层、居住氛围,堪称嘉定第一。

编辑

相比通过地铁导流刚需上车人口的项目来说,南山璞缦的居住圈层将更加高度统一。

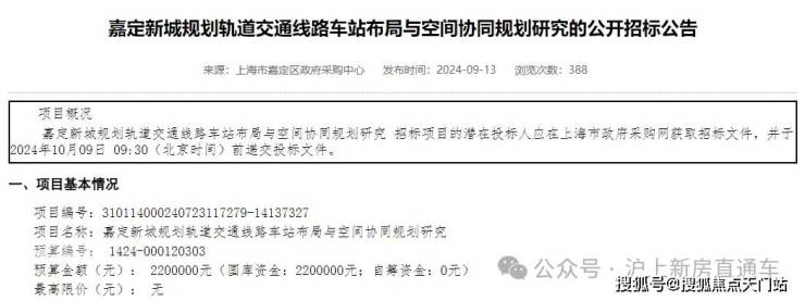
另外有一点值得重点一提:9月13日,上海政府采购网发布《嘉定新城规划轨道交通线路车站布局与空间协同规划研究的公开招标公告》。

编辑

这条轨交大概率就是之前网传的嘉定快线了,目前的线路以及站点都未最终公示。但按照之前的消息,这是一条从嘉定新城到上海市中心的轨交射线,南山璞缦项目附近,有概率会有站点的落地。

总结一下, 从轨交、现有商业、高阶烟火气、未来产业、周边居住氛围、人口组成能级,任何一个方面来看,南山璞缦都是嘉定新城甚至全是同级别板块的TOP1。

南山璞缦售楼处电话:400-8669-938

编辑

声明:本文由入驻焦点开放平台的作者撰写,除焦点官方账号外,观点仅代表作者本人,不代表焦点立场。