豫外滩售楼处电话/豫外滩地址/豫外滩在售户型/豫外滩营销中心/豫外滩最新价格/首页网站/周边配套/容积率/楼盘小区详情
扫描到手机,新闻随时看
扫一扫,用手机看文章
更加方便分享给朋友
豫外滩售楼处电话:400-936-9938(已认证)
距离黄浦外滩直线距离百米!
阿里&复星福佑地块
「豫外滩」
最后几席
建面约300~500㎡联排、独栋
总价约5000万-1.2亿
户型图&效果图发布
— 恭迎品鉴 —
绝佳的黄浦心核地理位置,豪宅与风貌著作林立的天赋板块!
从地理位置上看,黄浦豫园外滩土地包位于福佑南地块区域,北至昼锦路,南至复兴东路,东至中华路,西至三排楼路,属于老城厢历史文化风貌区范围内。
地块北侧是城隍庙、豫园和BFC,东侧为滨江名人苑、浦江公馆,西侧为光明初级中学、复地雅苑,南向则是董家渡板块,华润外滩九里、融创外滩壹号院、绿城黄浦湾等豪宅林立。
上海的中心在黄浦,而黄浦的中心就在老城厢,这里是真正的上海豪宅核心区。
2022年10月,复星集团旗下豫园股份联合阿里旗下的蚂蚁科技集团拿下的福佑地块。最终出让价格129.3亿元。
项目距离外滩线距离仅百米左右,东临外滩、黄浦江,东临豫园、新天地,南侧是南京西路商圈和人民广场商圈,地理位置得天独厚。
从不到200米长的外滩枫泾前往外滩,步行可达「大豫园」。
周边距离10号线和14号线豫园站仅约300米,14号线和8号线大世界站约1.1公里。
紧邻BFC外滩金融中心,距离城隍庙第一购物中心仅约80m,距上海国金中心商场约1.4km,新世界大丸百货、正大广场约1.3km,1.5公里范围内,囊括多个上海核心商业区。
项目效果图:
前有PRADA修缮荣宅轰动上海,现有「大豫园」原地复兴名流大宅,把特色公馆、花园里弄、石库门3种建筑类型,16种外立面风格汇聚在此,打造独院、邻院两种建筑形式,换句话说,想要什么风格都可以在这里找到!
我们来看几个典型户型:
319#是一套独院3层的4室套房商业别墅
地上建筑面积约402㎡,地下一层建筑面积约196㎡。
一层建筑面积约144m²,户型方正,空间阔绰,进门玄关厅设计有一个视线的缓冲同时也可以保证私密性,客厅有一个大主厅和一个副厅,厨房和餐厅都在1楼,还配备了一个小岛台。
二层建筑面积约148.5m²,包含3个卧室套房及1个会客厅。
三层建筑面积约109.4m²,整个一层为一个大套房,使用很方便。
地下一层建筑面积约196m²,包含影音室,会客室,十人位的餐桌,会客宴请无压力。
B1层还有一个夹层空间,可以做保姆间或杂物室,未来可以灵活安排。
值得一提的是,B1层层高局部可以达到6.35米(具体以实际交付为准),尺度非常大。
109#是未来位于福佑里地块的独栋住宅别墅产品
地上建筑面积约340㎡户型,地下一层建筑面积约165㎡。
一层建筑面积约117m²,同样是进门有单独的玄关区域,不同的是,客厅是大横厅。
二层建筑面积约117m²,包含2个大套房和一个小卧室。
三层建筑面积约105m²,包含一个大套房配备双台盆及衣帽间,还设计了两个会客厅以及书房区域、露台等。
地下一层建筑面积约165m²,娱乐会客的功能都可以满足,地下二层建筑面积约26m²,可以做一个小型的休息区。
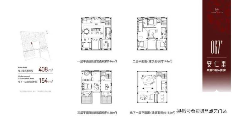
067#是未来位于安仁里地块的住宅别墅联排产品
地上建筑面积约408㎡户型,地下一层建筑面积约154㎡。
一层建筑面积约144m²,独立玄关、超大横厅,客餐厅一体。
二层建筑面积约144m²,包含2个大套房和一个小卧室,以及一个独立的会客区域。
三层建筑面积约120m²,一整个大套房的设计,还有2个对外露台。
地下一层建筑面积约154m²,地下二层建筑面积约39m²,整体格局也是不错的!
【内部宣传资料】

距离黄浦外滩直线距离百米!
阿里&复星福佑地块
「豫外滩」
最后几席
建面约300~500㎡联排、独栋
总价约5000万-1.2亿
户型图&效果图发布
— 恭迎品鉴 —
豫外滩售楼处电话:400-936-9938(已认证)
声明:本文由入驻焦点开放平台的作者撰写,除焦点官方账号外,观点仅代表作者本人,不代表焦点立场。
