上海长宁虹桥天都国际价格这么低,原来惊人!一般人还真想不到啊
扫描到手机,新闻随时看
扫一扫,用手机看文章
更加方便分享给朋友
上海长宁虹桥天都国际
♚♚售楼处热线:(TEL:400-110-7220)
♚♚售楼处1v1 销售专业讲解!进行有效答复!
♚♚欢迎来电咨询!可享售楼处较低折扣优惠!
长宁区中山公园板块
板块价值
虹桥天都国际位于长宁区 · 中山公园板块,在上海西部从南到北一系列的商圈中,中山公园是一个居中的位置,又因为它的轨道交通的枢纽关系,因此来说的它其实是上海西部的一个枢纽,并且还会继续担当一个枢纽的作用。
项目详情
产权性质:商办,50年产权
得房率:75%;拿地时间:2003年
在售体量:7套;竣工时间:2006年
物业公司:上海瑞创物业有限公司
总高:23;梯户比:4T35H;层高:2.9米
车位配比:1:0.3(地上30个,地下150个)
均价:8.2万;交付标准:带装修
总价:470-726W;交房时间:款清
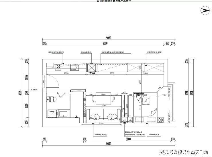
建筑面积:48-88㎡
付款要求:首付70%,定金20万(二手交易流程)
各类费用
物业费 5.8元/平/月
电费 白天0.825元/度 晚上0.396元/度
水费 24小时自动热水15元/吨,冷水5.65元/吨
停车费 排名前列个小时7元/小时,之后每半小时3元,(停车不足半小时免费)24小时内较高为49元/天。流动车位,如果包月需和物业洽谈
项目卖点
区位优势
内中环/中山公园板块
交通优势
距离2号线娄山关路(约84米) / 1站中山公园 / 4站静安寺,可换成15号线;
项目往东延天山路-中山西路-内环高架路;
项目往东延天山路-上延安高架路;
产品优势
地段优,配套醇熟,交通便捷,带装修交付,智能家居打造一站式智慧场景。
交通配套
轨交:2号线娄山关路站直达中山公园商圈,静安寺商圈。社区口公交站点多线路停靠(141路,190路,311路,519路,829路等)交通出行便捷,须臾之间通达全城。
自驾出行:西临中环高速路,南临延安西路高架,东接内环高架,北临普陀区重点开发区域长风公园商圈。自驾快速抵达虹桥枢纽。
无论乘车抑或自驾,均可实现理想快速出行。 在自由交流的空间里,人与人之间、人与风景之间、人与城市之间的阻隔渐渐消弭,在城市中自由穿梭。
商业配套
项目临近汇金百货、虹桥南丰城,尚嘉中心、长宁来福士广场、龙之梦购物公园等众多购物广场,是集时尚潮流、吃喝玩乐为一体的综合性商圈。
医疗配套
项目周边医院:民航上海医院(瑞金古北分院)、上海天坛普华医院、上海市光华中西结合医院、爱尔眼科医院
售楼处热线:400-110-7220【品鉴中心】
提前来电预约,尊享内部优惠,绝不收取任何费用!
注:本开发商跟【搜狐网】特约合作(最终解释归开发商所有)
声明:本文由入驻焦点开放平台的作者撰写,除焦点官方账号外,观点仅代表作者本人,不代表焦点立场。
