(上海)#天潼里#首页网站-天潼里楼盘详情 /户型细节/楼盘价格/售楼处电话及位置
扫描到手机,新闻随时看
扫一扫,用手机看文章
更加方便分享给朋友

如有问题欢迎来电咨询,专业一对一热情服务,让您用专业眼光去买房。
北外滩核心【外滩天潼里】
百年外滩&北外滩交汇
上海未来的C位核心区
二批次加推
建面约458~551㎡大平层
&建面约320-349㎡叠加别墅
&建面约502㎡~907㎡风貌别墅
基础信息
项目名:外滩|天潼里
地址:上海市虹口区乍浦路106号
开发商:新湖集团 & 理想集团
业态:平层、洋房、叠墅、合院、公寓式酒店、商业
占地面积:18950.6㎡
住宅产品:平层、洋房、叠墅、合院
住宅户数:124户
标准:精装、毛坯
交房时间:约2027年
项目公区实景展示:
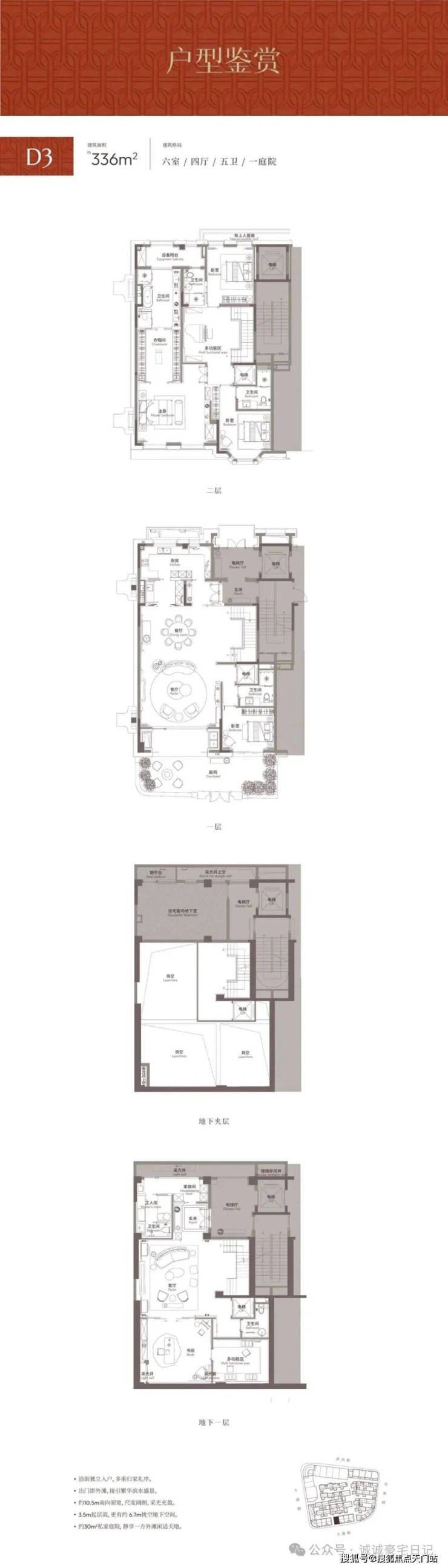
户型分布:
户型图:
样板间实景拍摄:






项目位于乍浦路天潼路,直线距离上海外白渡桥仅200多米,是黄浦江和苏州河“源流汇聚”之处,与外滩豪景苑门对门。
项目周边密布上海大厦、浦江饭店和俄罗斯领事馆等历史建筑,步行可达外滩源,对望“陆家嘴三件套”。
项目涵盖风貌高层住宅、风貌多层住宅和风貌里弄住宅3种产品,规划有8幢4层里弄住宅,1幢7层洋房,1幢9层小高层,还有底商和酒店。
设计图如下:

项目由GOA大象设计创始人陆皓先生操刀,它汲取外滩西式古典建筑风格,以红砖为主材,复刻老石库门的浪漫风貌,打造为一处“新时代里弄住宅”。
项目汲取了大量精华,以“化整为零”的设计手法,对传统设计元素进行了现代化的演绎,倾力呈现 “传统石库门语境下的新时代里弄” 。
项目的风貌高层保留了古典建筑的三段式立面,基座的连续拱券以及头部的柱头,无疑是历史留下的印迹。而当代材料工艺的引进,则让建筑的美有了更丰富的层次。
设计效果图如下:


北外滩核心【外滩天潼里】
百年外滩&北外滩交汇
上海未来的C位核心区
二批次加推
建面约458~551㎡大平层
&建面约320-349㎡叠加别墅
&建面约502㎡~907㎡风貌别墅

如有问题欢迎来电咨询,专业一对一热情服务,让您用专业眼光去买房。
声明:本文由入驻焦点开放平台的作者撰写,除焦点官方账号外,观点仅代表作者本人,不代表焦点立场。
