桐安里 最新动态: 桐安里售楼处首页呈现售楼处电话、开盘 / 交房时间、房价、户型、楼盘详情等信息
扫描到手机,新闻随时看
扫一扫,用手机看文章
更加方便分享给朋友

如有问题欢迎来电咨询,专业一对一热情服务,让您用专业眼光去买房。
项目为住宅用地,容积率1.35,建筑面积1.7万㎡,整个地块为肌理保护范围,历史建筑保护更新规模不小于1.47万㎡,均为需要保留的历史建筑(一般)。

该地块与地铁18号线平凉路站直线距离约400米,与地铁12、18号线江浦公园站直线距离约500米,交通十分便捷。地块南侧300米处就是瑞安翠湖滨江,联动价21万/㎡。
杨浦滨江独占了黄浦江滨江线近三分之一,是上海黄浦江沿线最后一块可供成片开发的区域,也是上海黄浦江至今第一长的岸线开发版图,沿江板块“一带两区”规划总建筑面积约796万方,规模2.6倍于前滩,5倍于陆家嘴!
伴随着杨浦滨江整体控规的批复,以及世界级科创中心定位的确立,杨浦滨江当下正处于价值大爆发阶段。更重要的是,桐安里占位的滨江风貌住区正是杨浦滨江整体规划的重中之重!
示意图,仅供参考
根据规划八埭头功能核心除了规划大量地标级办公楼,和北外滩连成滨江天际线。同时周边还规划有成片的里弄风貌住宅,也就是桐安里所在的滨江风貌住区!
西部还将结合历史文化资源打造特色文化地标街区,复兴昔日繁华的“杨浦南京路”盛景。滨江沿岸则是高新产业与历史人文建筑交相辉映,呈现一幅古今同框的盛景。
示意图,仅供参考
场景方面,项目借鉴经典英国梧桐浓荫道,在复原街巷尺度的同时,焕新街道风貌品质,再现百年上海的摩登气质。
过街门楼是经典石库门与海派生活场景的重要代表,项目通过2种不同样式的过街门楼,延续了原市房现代简洁、过街楼装饰艺术风格特征以及连续界面等特点,不仅让归家更富有层次感,更凸显着海派生活场景的摩登魅力。

项目沿街立面参考原地块建筑风貌,采用扇形圆滑的转角形态,辅以明显的竖线条线脚装饰,按照地形特征“削”出弧度,巧妙设计出立面弧度,形成手风琴样式立面,打造出令人印象深刻的浪漫场景。
项目通过一楼家庭庭院,二楼星空露台,三楼罗密欧阳台,复原经典的三段式设计规制,还原出武康路罗密欧阳台的经典邬达克式摩登场景。
必须首先强调一点,项目是城心风貌住宅项目里少有的容积率1.35纯墅区,整盘仅仅70套,主推建面约235-305㎡风貌联排别墅!俗话说:人生有别,以墅为界。如果有得选,谁又不想圆梦墅居呢?相比城心的高层和超高层产品,桐安里的风貌联排产品在居住的各个层面都是碾压!


最新消息!杨浦内环滨江低密风貌「桐安里」推出约162、185、235、305㎡风貌别墅;包含联排、叠加产品,仅70套;主推建面约235-305㎡风貌联排,总价约3200-5500万!!样板间展示已开放!
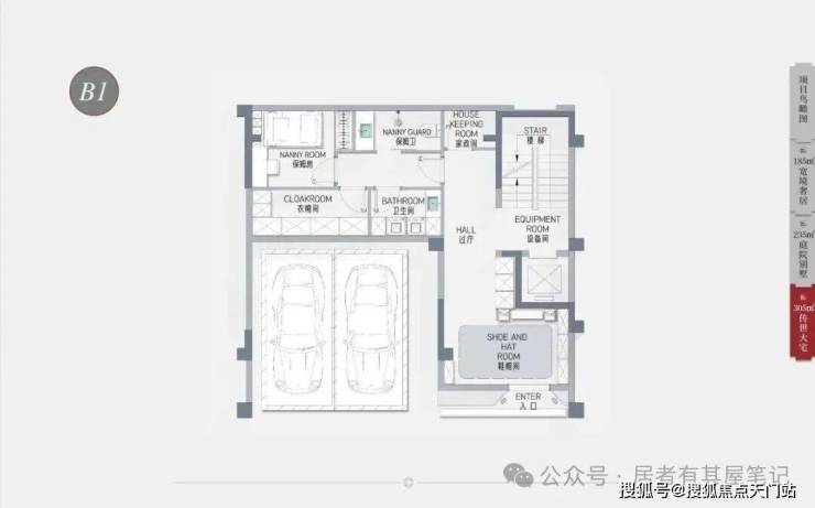
联排:
建面约185平方米,赠送地下室:约132-136平方米;赠送花园、露台、阁楼,总价约3550-3620万
建面约235平方米,赠送地下室:约130-140平方米;赠送花园、露台、阁楼,总价约4750-5120万
建面约305平方米,赠送地下室:约185平方米;赠送花园、露台、阁楼,总价约6450万
叠加
上叠F3-4 面积:约187平方米 赠送送地下室(约97-116平方米),赠送花园、阳台、露台、阁楼,总价约2880-2910万(13#、09#、07# )
下叠F1-2 面积:约181平方米,赠送送地下室(约154-172平方米)赠送花园、阳台、阁楼, 总价约3040-3130万(15#、11#、05#、03# )
在售户型图如下:
⬇️专业销售一对一咨询⬇️
耐心等待官方VIP客户经理回电


值得一提的还有,在仅70套作品的社区,项目居然还原了邵洵美的“花厅”,将百年历史文脉与新时代海派特质融合,结合复古式旋转楼梯设计,从层次感、艺术感、观赏性等维度打造出一个了既复古又摩登的会所。
会所内则涵盖健身房+冥想空间+桑拿区+棋牌室等功能。为业主的社交提供场所,为业主的日常休闲提供服务!
会所实景图
会所实景图
会所实景图
『海上花园』文艺巷弄里的优雅秘境,自然掩映的诗意归家路,移步换景赏四季更替之美;专属定制石库门精神徽章、艺术奢石点缀,以大师审美定义生活的品位;莫奈花房与时光花园,在绿境中与老友新邻笑谈人生,构建巷弄繁花里。
奢享天性,让优雅入微/入心:桐安里悉心关注您与家人的需求,提供多元定制空间服务与专属管家“一站式”服务。打造高品质家庭专享服务 。
让我们来看看该项目的总体规划细节。

项目计划的开竣工时间为2024年2月26日-2027年3月9日。

这是继华发&招商联合体拿下静安北站新城地块之后,招商去年再一次在内环内拿地。
这也是招商首次进军杨浦,在虹口三玺陆续售罄之后,招商也急需优质粮仓补货,期待有好的品质。招商蛇口于上海打造的第二座风貌作品、城市更新的里程碑级作品,择址杨浦内环滨江CAZ中央活动区,将里弄风貌与公馆规制创新融合,还原since1930黄金时代的人文历史底蕴与优雅风潮,撰写当代精致风貌墅的史诗。
『荟萃高端科创人才形成全球创新型产业聚集地』美团上海科技中心、哗哩哗哩新世代产业园,抖音集团上海滨江中心、中国节能·上海首座等企业集群;汇聚复旦、同济等10所高校、100多家科研院所、7家国家级大学科技园力争到2025年集聚3000家以上创新型企业,产业规模超过3000亿元。
『立体交通枢纽,直抵城市核心区』地铁交通:距离18号线平凉路站直线距离约400M、12号线江浦公园站直线距离约500M,通过换乘可实现6站抵达陆家嘴、5站抵达外滩、3站直达北外滩。
自驾交通:多条隧道通达浦东,自驾快速抵达陆家嘴、外滩;周家嘴路地下在建的北横通道,连接长宁区、普陀区、静安区、虹口区、杨浦区的城市快速路
『醇熟商业林立,近享百万方商业』百联滨江购物中心、东方渔人码头国际中心、LCM置汇旭辉广场、北外滩来福士等,醇熟商圈范围,繁华在此汇集。
『一江五园在侧,与自然和谐共生』杨浦滨江沿岸,平凉公园、江浦公园、杨浦公园、波阳公园、复兴岛公园,享受都芯自然佳境。
『六大医疗资源,健康生活全护航』复旦大学附属妇产科医院(三甲)、上海交通大学附属新华医院(三甲)、上海市第一康复医院、杨浦区中医院、杨浦区中心医院、上海市浦东新区公利医院,近享无忧医疗配套。

杨浦滨江「桐安里」在售约162-305㎡风貌别墅;总价3200万起!

如有问题欢迎来电咨询,专业一对一热情服务,让您用专业眼光去买房。
声明:本文由入驻焦点开放平台的作者撰写,除焦点官方账号外,观点仅代表作者本人,不代表焦点立场。
