【招商时代乐章】宝山顾村7号线 潘广路直线约300米 建面约89-126㎡ 全3房户型约49400元/㎡!
扫描到手机,新闻随时看
扫一扫,用手机看文章
更加方便分享给朋友
如有问题欢迎来电咨询,专业一对一热情服务,让您用专业眼光去买房。
上海所有城市节点的改变,都是从商业中心的变迁开始的。
换句话说,一个大体量、高能级的重磅商业综合体的落地,有着再定义区域中心的能力。
又或者说,一个板块的发展,永远都是大型商业配套先行的。
庞大的商业体量带动人气、聚集人口、增加板块宜居程度,最后达到对板块价值的拉升目的。
而这就是一个大型商业体的作用。
最新消息,7号线/15号线双轨交,潘广路TOD项目——【招商时代乐章】二期四批次开盘在即!
作为今年北上海热度首屈一指的TOD大盘,招商时代乐章四开四捷的傲人成绩背后,隐藏着的是约66万方TOD大城带来的,丰富生活场景与创新生活方式的强大吸引力。
而如今,这座大城全新的B地块自然功能主义作品,再度开盘告捷。

效果示意图
轨交让远方近在门前:招商时代乐章雄踞北上海之芯,新顾城核芯区。借由7号线与规划中的宝嘉线的便捷,巧妙地串联起长寿路、静安寺、徐汇滨江、后滩等城市的精华区域的万千风尚,让城市精彩与乐趣尽在掌握之中。
网络示意图
大城让所想尽在眼前:不仅如此,这座大城还以其磅礴的商业体量与全新的城市场景,打造出北上海全新的城市丰饶生活方式。商业、酒店、住宅、绿地、P+R等多样的场景,丰富了日常生活的选择,用丰盛营造出城市生活便捷之下的松弛感。

二期四批次开盘热卖中
少量推售建面约99-126㎡3房
过会均价49631元/㎡,总价387万起
前期在售建面约89-97-103-126㎡3房
最低单价仅36740元/㎡,总价329万起!
项目示意图
建面约89m²三房两厅一卫户型,LDKB一体化设计,南向三开间布局,全明空间设计。让四季流转于生活之中,用自然营造生活的惬意。


建面约97m²三房两厅两卫户型,全卧+主卫飘窗配置,并通过飞机户型空间布局,提升了空间的使用效率,让温情在自然中自然发生。


建面约103m²三房两厅两卫户型,南北双卧L型270°揽境飘窗设计,更大限度地让自然融入与自在之中,更宽阔的空间尺度,让自在生长与自然之中。


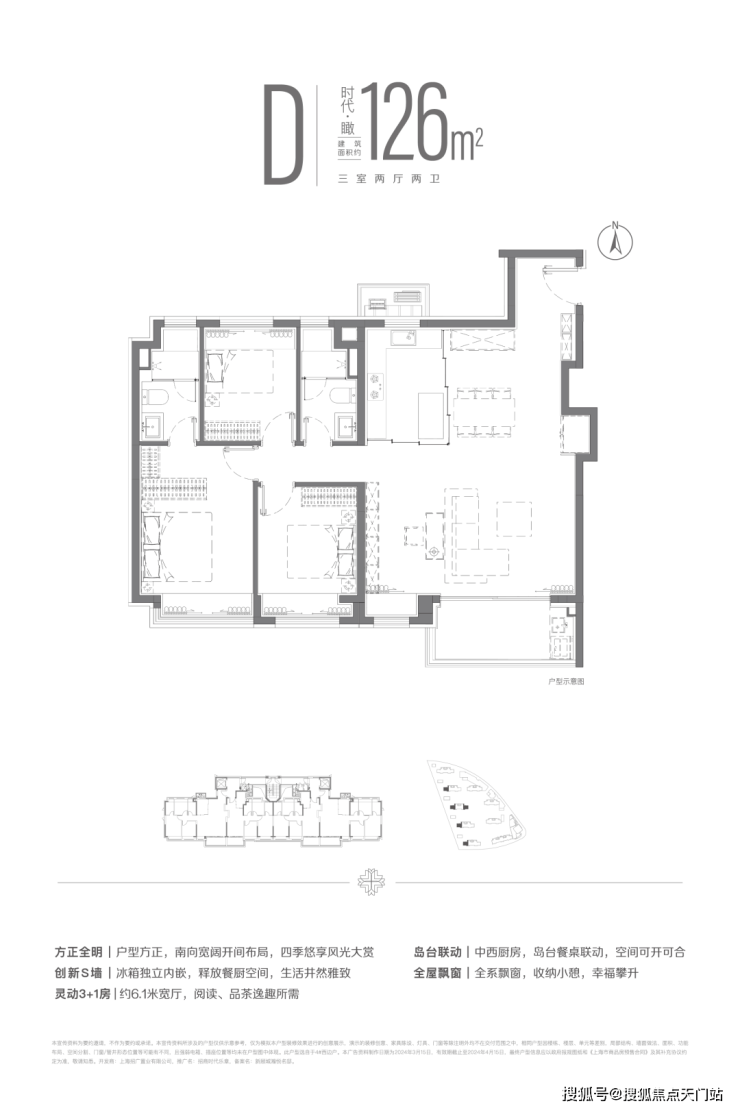
建面约126m²三房两厅两卫户型,南向3+1面宽横厅设计,让空间更加随心而变。主卧双台盆配置,用空间拥抱自然中的无限自在。

三开间朝南户型设计,能够更好地满足不同家庭对空间和生活的需求,宽尺南向空间让阳光在家中更久地驻留,用暖阳为生活的温情升温。
样板间实景图
空间为生活打造,情绪用细节营造。招商时代乐章的创新S墙设计,玄关、厨房、清洁、衣橱四大收纳体系,提升户内的视觉完整性。

样板间实景图
无柱空间设计,让家越住越大,更好地匹配不同时期随家庭成员变化带来的空间需求改变。宽景采光与卧室阔尺飘窗,融合生活与美景的边界。让家的每一处角落都充满Chill的感受与松弛的生活态度。
样板间实景图
时代生长,用更多的场景与业态满足人们日益增长的美好追求;和鸣乐章,呈现Chill生活提案。用设计的创新和用心的细节,让日常也能在温情中闪闪发光,从细节到空间,在这里不止看到大城生活的松弛,更有属于家的温馨与自在。
12月15日,在2023年度上海最后一场土拍中,招商蛇口以45.9481亿底价竞得宝山区顾村大型居住社区BSP0-0103单元0304-06、0303-02、0309-04地块(即招商时代乐章),房地联动价49400元/㎡。
项目四至范围:东至陆翔路、南至鄱阳湖路、西至联杨路、北至瑞丽江路。
拿地当天,宝山区人民政府官网即公示了0303-02地块和0309-04地块设计方案。这2个子地块均为普通商品房用地,尚未公示规划的0304-06地块为商业用地、餐饮旅馆业用地。
根据设计方案显示,0303-02地块拟建12栋17-18F高层及配套用房,总户数901户,容积率2.2。
0303-02地块规划平面示意图
根据设计方案显示,0309-04地块拟建9栋17-18F高层(含1栋保障房)及配套用房,总户数645户,容积率2.3。
0309-04地块规划平面示意图
根据此前地块出让要求,住宅中小套比例不低于80%、全装修面积不低于50%,商品住宅部分装修标准不低于2000元/㎡(集采价)。
国际大师操刀 共创宝山新一代商业综合体
力邀全球TOD综合设计大师Beony操刀设计,规划约17.5万方超级体量,打造新一代商业综合体,更新北上海生活方式。
外立面以解构主义的模块穿插设计手法,打造北上海时尚生活坐标。
从日常生活出发,以故事感的室内设计,带来沉浸式的购物体验。

20+主次力店 共创城市奇幻之旅
潘广路TOD预计引入20+主次力店,在X+商业理念,塑造缤纷场景,创造多元体验,带你开启城市中的奇幻之旅。
人文x生态:超级场景、打卡多元体验
在家门口的“行万里路”(符号):厦门海上世界将自然搬进室内,打造沉浸式空间,引入海洋馆、冰雪世界等IP场景赋能,商场旁的港口邮轮可随时远航,潮汐之眼摩天轮海上日出日落尽收眼底,打造出厦门最亮眼的人文生态场域。


亲子x科技:寓教于乐、探索成长乐趣
在家附近的游乐场:预计打造儿童品牌+亲子公区+数字科技的沉浸式场景,让商场亲子区成为消费者周末的第二个“家”。已开业的浦东森兰花园城,儿童乐园涵盖运动冒险、寓教于乐、儿童健康餐饮,已成为周末小朋友的欢乐聚集地。


潮流x热力:造梦剧场、引爆热力无限
Z世代展现的舞台:潮流与功能并存,全业态丰富日常生活,例如曹路花园城充分利用天台空间,潮流运动与松弛露营强强联合,主题互动空间将屋顶舒适度发挥到极致。

350+全球品牌 共创北上海商娱繁荣

(最终以实际招商和运营方案为准)
5大灵感空间、共创北上海网红打卡地
以“在地文化基因+异域度假风情+主题场景”融合形式,打造五大灵感空间,为城市注入鲜活能量,打造北上海微度假乐园,满足精致白领打卡以及家庭花式遛娃。
时空晶球:别具匠心的时空晶球,连通室内与室外,驻足仰望,丢掉世俗烦恼。
梦幻森林:螺旋而上的生命之树,都市白领的自然能量充电站。
云境千屿:似繁花生长,似流水潺潺,云境漫步,重燃生活热爱。
踏梦繁花:数字传感地面,科技与艺术相互结合,夜晚由此繁花。
时光之门:融合科技与艺术的独特空间,叩响新一代商业世界之门。

BLOCK式漫步街区 共创北上海微度假乐园
通过两横三纵一贯通设计,使街区与社区无缝链接,以多元场景与沉浸式的吸引力,为客户带来全天候的微度假体验感。
“微度假”线路:顾村公园-热店打卡-网红餐饮-触摸自然-livehoues,从清晨到日落,邂逅N种美好生活方式。
家门口的会客厅:城市中央⼴场等公共空间打造,城市⼼流汇聚的公共客厅,花园场景式商业街区,汇聚潮流所向,家门口的CITYWALK 。
每位成员都很重要:以市集、宠物、社群、艺⽂展览、儿童活动区、运动区等运营活动,为家门口的附近⽣活点亮灵感,关爱每位家庭成员。

项目采用顶塔冠造型,流光美学的外立面,既有辨识度又有质感,是未来业主身份的象征。阳光倾泻而下,在不同光影与环境下,让家成为一件艺术品。
立面部分非对称线条勾勒经典比例建筑体量,消解了建筑的庄严和冷峻,赋予更强的立体感,犹如画框一般,多了一份艺术沉淀。
既形成“层次感品质住宅”的认知,又创造出城市里的“美学灯塔”。
社区入口对标慢奢酒店风格打造,融入高定细节,诸如酒店感仪式门头+环岛式尊崇落客+迎宾式花园设计+精装地库等。
归家门厅设计为弧形顶棚,非对称构图,圆润的形式提供给业主放松的情绪价值。可以说是处处体现人居的松弛感和舒适度。
整个社区被水系环绕,繁星式楼栋布局,充满仪式感的景观与浓绿自然的植被,无论是精心设计的景观小品,还是那郁郁葱葱的树木花草,都让你在繁忙的生活中找到一份心灵的慰藉与安宁。
同时将四季植物与多层景观巧妙融合,构建出一幅如诗如画的自然画卷,植入其中的主题架空层成为邻里之间的聚场,让人们能够在林下相遇,在自然中被治愈。
交通方面:距离7号线潘广路站直线约150米,2站换乘15号线。无缝直达普陀长风、静安寺、长宁古北、上海南站、徐汇滨江以及紫竹高新等多个市区核芯板块。
商业方面:自有大体量商办综合体,7号线上盖的龙湖天街、未来还有印象城环伺。
效果图
教育方面:华二宝山实验学校,宝山世界外国语学院、上海世外云尚欧莱幼儿园,另外,根据板块规划显示,在项目周边有规划一幅幼儿园、一幅小学以及一幅初中用地(新盘不承诺学区对口)

医疗方面:地铁两站就是三甲医院复旦大学附属华山医院宝山院区。
生态方面,顾村公园也是本市较大的郊野公园,相当于三个世纪公园大小。更是上海环城生态规划系统上的重要组成部分,是上海绿色生态核心之一。
如有问题欢迎来电咨询,专业一对一热情服务,让您用专业眼光去买房。
声明:本文由入驻焦点开放平台的作者撰写,除焦点官方账号外,观点仅代表作者本人,不代表焦点立场。
