售楼处电话:400-8669-938(已认证) 营销中心热线:400-8669-938(欢迎致电) 售楼处预约电话:400-8669-938☎☎☎如有问题可来电咨询,预约销售专员,一对一为您服务!
售楼处电话:400-8669-938(已认证)
营销中心热线:400-8669-938(欢迎致电)
售楼处预约电话:400-8669-938☎☎☎如有问题可来电咨询,预约销售专员,一对一为您服务!
编辑

最新消息
嘉定新城核心 一线“湖景+河景”
招商·林屿湖畔
推建面约110-120-145㎡高层及160-170㎡叠墅湖居奢宅
将于本周六样板开启预约接待
编辑

项目信息
上海2批次土拍中,4家开发商经过49轮举牌,最终 招商蛇口以总价26.6亿元斩获 嘉定新城F03A-4地块,楼板价31850元/㎡, 溢价率高达30%,到达封顶价,并触发双高双竞!
四大迭代产品力,第四代湖居迭新奢宅
编辑

作为招商蛇口在沪上的首部度假式湖居巨著,林屿湖畔雄踞嘉定新城CAZ核心,以"自然而然的贵重"为设计灵魂,融汇前沿的全球设计语汇,为当代高净值人群量身打造"重回一倍速"的湖畔度假生活方式。
四大核心产品力共同筑就4.0湖居沉浸式奢居新标杆:招商林屿湖畔,以湖居母本,成就献给城市的未来恒产,它以土地敬畏之心重构自然与奢居的关系,以人本洞察回应塔尖人群的精神诉求,以全球视野重塑“出门即繁华,归门即度假”的生活母本。
编辑

编辑

林屿湖畔采用"首席设计师负责制",由首席设计师统筹产品经理、大师团队及专业顾问,高效整合全球顶尖设计资源。
从概念到细节的高规格闭环输出,确保建筑、景观、室内的一体化呈现,在严格的设计管控与细部雕琢中,烙印鲜明的品牌美学基因。
游艇曲线建筑:从单一住宅功能,到湖岸在地化美学地标
编辑

住宅建筑立面承袭招商玺系的经典游艇风格,运用大面铝板玻璃,以流畅的游艇曲线勾勒天际线。高层以0.28-0.35超大窗墙比,超越上海行业常规产品,将无界风景纳入家中。
编辑

公区建筑片墙近人尺度内,运用大块切割打磨沙漠风高级米黄石材,雕琢高级沙砾感和肌理,整石旋转10cm递差叠砌,不计废料只为呈现卢浮宫金字塔式的微妙角度,檐口巧藏灯带,予以细腻温润的质感体验;浮光门庭以6毫米超薄铝板勾勒飞檐,营造飘逸轻盈的度假意境。
编辑

峡谷秘境庭院:从单一景观功能,到酒店度假化超级公区
板块内领创“峡谷”意境的下沉式立体庭院,在约420平米的垂直面中,通过多层花池、叠水、软景塑造立体层次观感,遴选多种珍贵苗木,立体庭院贯通风雨连廊,给予五星级度假酒店般的空间体验。
精心设计十二重归家动线,从 车马院迎宾车道、约87米奢阔门廊到约13.7米挑高的酒店式大堂等空间。
编辑

编辑

约2900平米地上地下泛会所及活动空间,给予生活度假般的感受,地下层设有国际标准壁球馆、园景健身房,地上架空层为最高悬挑越7.2米的泛会所空间,以休闲下沉卡座、水吧台、休闲会客区、联动室外水池,打造酒店式度假空间等柔化社区与自然的边界。
编辑

编辑

空间革新与收纳哲学:从单一居住功能,到慢奢生活空间营造
尺度与视野的革命,无论高层还是叠墅产品,空间尺度与视野设计均突破常规。
编辑

在空间革新上,好房子标准下,打造嘉定区域内开创性的3.1-3.15米层高,并配置多个约80公分飘窗灵活空间,带来通透奢阔的居住体验。主卧设置270°转角飘窗,带来更高舒适度与更大采光。双门厅礼仪,客餐分离升级社交款待维度,飞机户型+客厅双动线平衡通透与私密,营造出既有秩序又具仪式感的私密殿堂。
编辑

收纳设计大师打造超级收纳,建面约122与140户型全屋交付收纳量达约8.2m³与约8m³,约等于205个20寸行李箱(40L)的收纳空间,140户型预留收纳11m³,围绕 12 种场景应用,玄关、厨房、卫浴三大区域,让各类物品都有归属,生活更加从容舒适。
根据内部户型图来看,整体户型都还是比较不错的,高层全南北通,叠墅对比市面上的常规户型也有很大创新,其中大平层做到了五开间朝南,约8.6米横厅!
其中 高层价格预计在5.3万左右,叠预计在7万左右!
建面约110m3房2厅2卫,一梯两户,仅部分两个楼标有连廊,共计约166套;
经典飞机式户型,独立入户玄关,三开间朝南,南北直通,厨房附赠飘窗,南白双阳合,边套户型主卧为270°飘窗! 建面约120m3房2厅2卫,全两梯两户无连廊,共计约250套;
编辑

编辑

独立入户,横厅户型,同样为三开间朝南,南北通透,且厨房附赠飘窗,除客厅外,北房间也带阳台,边套户型主卧为270°飘窗! 建面约145㎡4房2厅2卫,全两梯两户无连廊,共计约98套;
编辑

编辑

该户型为四开间朝南,独立入户玄关,南北直通,客厅面宽约4.6米,客厅+南次卧+北房间均带阳台,边套户型主卧为270°飘窗,中间套与边套户型的区别主要也就是有无主卧飘窗!
编辑

编辑

叠墅户型首曝:
建面约168m下叠,4房2厅3卫,共计约38套,独立入户玄关,附带地下室+花园,首层横厅+南向次卧+北向1厨1卫,二层三个卧室全朝南+北向公共休闲空间;边套户型客厅以及主卧为270°飘窗!
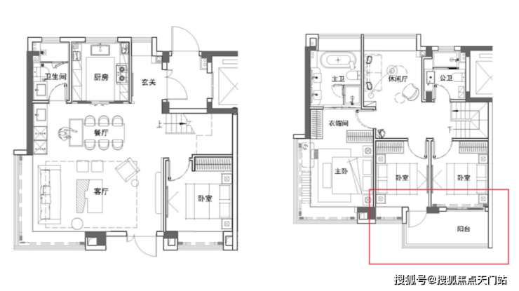
下图为边套户型过程稿,红框线范围内可能会对另外一个次卧的飘窗位置进行优化,优化为阳台,也就是南白两个次卧均带阳台!
编辑

建面约163m上叠,4房2厅3卫,共计约38套,上叠的户型布局其本与下叠一致,附赠南北露台,边套户型的客厅以及主卧同样也是270°飘窗!
下图为边套户型过程稿,红框线范围内可能会优化,一是客厅飘窗位置可能会优化为阳合,变为南向双阳台;是六层南白次卧飘窗位置优化为露台,两个次的露合连通!
编辑

建面约165m大平层,4房2厅3卫,共计约37套,一梯一户,五开间朝南,约8.6米横厅,双套房设计,边套户型主卧为270°转角飘窗!
下图为边套户型过程稿,红框线范围内可能会对餐厅位置飘窗进行优化,优化为阳合,使客餐厅阳台贯通!
编辑

板块信息
招商远香湖项目位于嘉定新城F03A-4地块,是嘉定新城核心区的中心——远香湖CAZ,是嘉定中心中的中心。
招商嘉定新城位于嘉定新城的核心位置,是远香湖中央活动区最后一幅宅地。
编辑

四至范围内现状及规划情况:项目南侧为温州嘉定科技创新园区,目前已基本建成。项目北邻伊宁路,伊宁路北侧为绿地公园以及运动场、公厕、伊宁路污水泵站,可能会有一定的噪音等影响;实地看下来,伊宁路污水泵站很小,基本对项目无影响;
编辑

编辑

该泵站主要承担伊宁路以北,A30以南污水,以及伊宁路以南,永盛路以东,封周路以北范围的污水提升任务:
污水将通过阿克苏路、伊宁路污水主干道进入该泵站经过提升输送到污水处理厂;
项目东侧规划为一幅教育科研设计用地,限高50米;
编辑

项目西侧规划为公共绿地以及河道;
编辑

编辑

这里成片的商品房大多建成于2010年以后,整体城市界面崭新,从控规也能看出, 项目周边学校、商业、办公和绿地公园应有尽有,且大多配套都是现成的。
编辑

嘉定新城远香湖CAZ定位嘉定新城的综合功能中心与城市形象集中展示区,集聚国际住区、大型商业集群、摩天地标集群、科创科研企业集群、国际教育文化等功能为一体。(规划来自上海嘉定微信公众号)北侧有 远香湖、保利大剧院、嘉定图书馆老三大件配套,以及地标级超高层建筑凯悦酒店。
编辑

未来,远香湖核心区还将建设 文化环、未来塔、活力谷等城市“新三件套”,也在项目周边。 文化环:除了现有嘉定图书馆、保利大剧院、江南书院、尚画美术馆外,围绕着远香湖未来还将打造立体儿童乐园、航模活动中心、嘉昆太路演中心等一系列高能级文化设施。
编辑

未来塔:位于CAZ的正中央,建成约300米,将成为嘉定甚至是上海西北第一高楼,是真正的C位地标
活力谷:集商业和办公于一体的休闲创意街区。 交通方面,项目距离11号线嘉定新城站步行约2.2公里,需借助短驳交通工具或自驾出行;
编辑

周边虽然规划有嘉定快线以及宝嘉线,但仍然停留在规划阶段暂无官宣的选线方案,存在一定的不确定性,且短期内也很难落地!
教育方面,参考25年学校划分政策,该项目所在的区域可参与上实嘉定新城分校的摇号,对口的学校为交大附属嘉定新城实验学校(期房不承诺学校对口,以上为25年政策,仅供参考!) 商业方面,项目步行至宝龙广场约900米左右,另外周边2公里范围内还有万达、TSF购物中心等商业,可完全满足日常消费需求! 医疗方面,距离项目约1.4公里有交大医学院附属瑞金医院(三甲)!
编辑

编辑

编辑

售楼处电话:400-8669-938(已认证)
营销中心热线:400-8669-938(欢迎致电)
售楼处预约电话:400-8669-938☎☎☎如有问题可来电咨询,预约销售专员,一对一为您服务!
编辑
