金茂璞元-金茂璞元天玥(2025·金茂璞元最新)楼盘详情-房价-户型-周边配套

搜狐焦点天门站 2025-10-02 15:33:00
用手机看
扫描到手机,新闻随时看

扫一扫,用手机看文章
更加方便分享给朋友

金茂璞元 售楼处电话:400-1789-318(已认证) 金茂璞元营销中心热线:400-1789-318(欢迎致电) 金茂璞元售楼处预约电话:400-1789-318☎☎☎如有问题可来电咨询,一对一为您服务!

金茂TOP级璞系+科技住宅

「金茂·璞元」

建面约130-172㎡房源

二批次即将加推

金茂璞元

售楼处电话:400-1789-318(已认证)

金茂璞元营销中心热线:400-1789-318(欢迎致电)

金茂璞元售楼处预约电话:400-1789-318☎☎☎如有问题可来电咨询,一对一为您服务!

看房需提前来电预约登记请务必致电与销售确认时间,预约客户可优先进入销售现场,避免空跑,感谢您的支持!

8月24日,虹口内环内新盘金茂璞元首开,均价16.6万/㎡,99套房源26分钟全部售罄;首推99套建面约126-184㎡3、4房,收获173组认购,认购率175%,未触发积分。

最新消息!

金茂上海璞系壹号作品---金茂璞元二批次预计国庆前后加推,实景示范区即将开放!将推建面约130-172㎡房源!

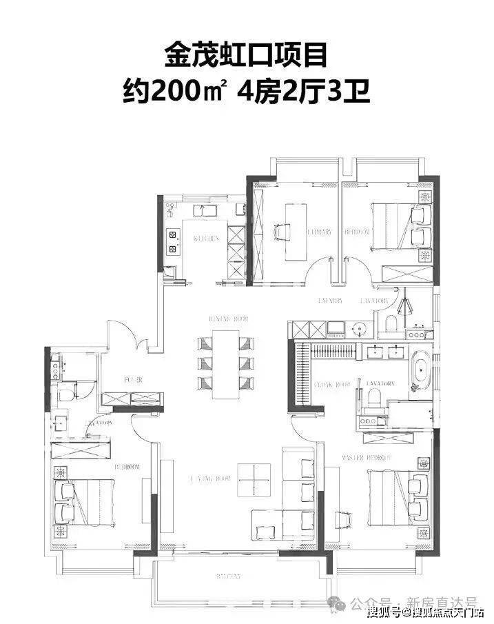
户型图如下:

(过程稿仅供参考,最终以实际为准)

样板间实拍:

从2015年上海的第一个金茂府开始,每一个金茂的新盘都会毫无意外地热销,金茂也成了上海楼市中口碑最硬的品牌之一。

这次,金茂在自己的虹口内环地王地块,拿出了作为金茂高端产品系璞系上海首作---「金茂璞元」,它将以“国际范、东方韵、艺术感”的美学造物,重新定义上海高定人居价值标杆!

示意图,仅供参考

但更令人震撼的是「金茂璞元」“返璞归真”的匠心!

从流出的设计手稿看来,未来社区内会将平面景观垂直化,点缀名木绿植,整个意境更生动。

示意图 仅供参考

项目与周边的地缘特性充分融合,交通、景观、商业,各司其职又相互融合。

采取架空层、景观节点、下沉庭院的相互配合,一步一景

示意图 仅供参考

10米高差的立体园林初见一角,能够看到“入境、观景、绿岛、秘境”四个景观点位,整个下沉式庭院串联了一主一辅的两条主景观动线横看成岭侧成峰的城市峡谷,名不虚传。

示意图 仅供参考

西安的“璞系”产品也是通过园林设计打动市场的,但相信「金茂璞元」将会再次升维作画!

西安璞逸曲江实景图

能超越金茂府的,只有金茂“璞系”

金茂用16年深耕,积攒下数万组客户访谈和深度问卷,由此建立了对高净值客群的深刻洞察,最终打造出“金茂府”这一国内地产“科技住宅”殿堂级别的产品。

这种“长期主义”的坚守与践行,也在全国29座城市,78座金茂府,收获众多的拥趸。金茂的二手房价格,一直高出板块的二手房价均值。

数据源自链家,仅供参考

能超越金茂府的,只有金茂自己。

此次,作为2025年金茂一号作品,金茂拿出了自己“金玉满堂”四个产品系列中的TOP级“璞”(玉)产品。

如果说金茂府代表着公认的豪宅,那么「金茂璞元」就代表着更高阶的“豪宅中的豪宅”,金茂31年不断自我超越的巅峰呈现。

示意图,仅供参考

「金茂璞元」身上,你会清楚看到金茂的野心,这是一个很难与上海本土的主流豪宅放在一起比较的项目。无论是它的立面、景观、亦或是户型等方方面面,都在以全球顶豪坐标系定义它的价值。

示意图,仅供参考

立面方面,「金茂璞元」选用陶板作为立面材料,结合大面玻璃及铝板,打造高端住区形象。相比老式豪宅的做法,这种源自传统陶瓷工艺的材料,既能呈现自然材料的温暖肌理,又有远超铝板的耐久性与可定制性,是今天国际高端住宅的最in选择。

比如,纽约中央公园435米高的的111 West 57th Street(铅笔塔) ,创新性采用陶瓦镶金银丝工艺,勾勒出羽毛般的轮廓,让美式复古与现代技术完美结合。

图源网络,仅供参考

迪拜今年建成的地标景观, 442米高的Ciel Tower(云端塔)外立面采用了从底部深邃蓝过渡到顶部银白的渐变陶板,可以模拟沙漠日出时的天空色彩变化。

图源网络,仅供参考

金茂的璞系也一直注重从在地从人文的角度去诠释作品,每个作品都浸润着独有的东方气蕴,一璞一高定。

如在北京的璞系立面采用“丹韵银律”的京韵文化元素。

图源网络,仅供参考

成都的璞系立面汲取了陶瓷与蜀竹的元素。

图源网络,仅供参考

此次上海「金茂璞元」的立面又会如何阐述上海的底色,我很期待。

景观方面,将传统平面绿化转化为垂直的多层次园林空间,整个下沉庭院空间加上架空层约14米,这接近5层楼高度的超级挑空,打造出隐秘的“城市岛屿”。

从现有公开的意向图中,可以窥见居于其中的震撼体验。

示意图,仅供参考

这种垂直花园的做法,在上海的豪宅圈里同样找不到对标,倒是颇有新加坡樟宜机场的森林奇观味道。

图源网络,仅供参考

公区方面,小区配有超豪华会所和架空层。不同于大多数豪宅中规中矩的做法,它的底层空间采用大量玻璃幕墙设计,带来了极为舒适的景观通透感和自然光照,使住宅犹如生长在森林之中。

示意图,仅供参考

户型方面,全面迭代,不论大小户型,都是一梯一户,并以“场景化户型设计”重新定义居住逻辑。

130㎡ | 法式艺术与东方气韵的碰撞

不同于传统高端住宅,金茂璞元的创新之处,正在将室内空间美学覆盖至公区空间,成为家的美好延伸,兼具功能与美学。并且采用无连廊设计,进而提升居家的隐私。双开门是业界大宅的一种标准,即便130㎡户型,金茂璞元亦坚持采用铸铝装甲子母门,连门把手皆以定制璞系族徽辉映。

开阖之间,诠释着“单扇门走一人,双扇门走礼仪”的礼序,也闪耀着金茂对知遇者的舍得。

「玄关的艺术」

作为家中的第一道风景线,玄关柜皮革饰面,具有温润的肌理感,与玄关背板“烟雨江南”、地面“香奈尔灰”相得益彰。

从天然木饰到名贵奢石,木石相映成趣,不经意间泛起生活的温润。

「约6.7米大横厅设计」

震撼感官的气度,来自超级横厅设计,开放式厨房与横厅无界联动,呈现出超大空间的奢阔气度。

在130㎡户型空间里,深浅交替的色系,为空间注入典雅意境,强烈风格背后,是看不见的苛求极致。

为一块奢石弧形工艺,投入翻倍的成本,整屋坚持用一种昂贵的木饰面贯通始终,从而实现整体艺术风格的统一。

客厅背景墙的“烟雨江南”天然大理石,不同于传统平面背景墙,通过弧度及立体的造型处理,并镶嵌不锈钢材质,对于金茂而言,比奢石昂贵的,是让奢石真正与空间气场融为一体。

空间的本质,归根到底是承载着生活的内容,在生活方式上,璞元亦在追求一种全新的理念,将更多空间赋予在客餐厅公区空间,倡导家庭成员的和谐、美好相处,这种源于国际视野的居住理念,亦缩影着璞元骨子里的“国际范”。

「奢侈品级厨电」

除了追求美学与细节,璞元全屋厨电配置皆为顶级品牌。

超配嘉格纳七件套,涵盖灶台、油烟机、洗碗机、蒸箱、烤箱、冰箱等,这一具有300多年历史的顶奢厨电品牌,也被誉为“厨电界的劳斯莱斯”。

采用怡口直饮水、铂浪高水槽及龙头,水槽口内嵌厨余粉碎机,内里使用硬度堪比钻石的石英石材质。

厨房区域同样铺设了毛细管网,处处都彰显着金茂追求高品质生活的初心。

「全维收纳哲学」

为使厨房成为「真正幸福之地」,璞元在各个细微之处倾注关怀,从地柜拉篮系统,到上柜系统,再到抽屉分格系统,浅抽与深抽搭配,让整个厨房空间,既百变,又充满秩序。

厨房与餐厅打造半开放式格局,隐形推拉门既可以隔绝烟火,平时收入墙内让空间一体、开阔大气。

定制橱柜为意大利高端品牌威乃达,实现家居健康的同时,兼具高奢品质。

极简轻奢的入户鞋柜,成为归家后安顿身心的第一个空间,也是第一抹彰显品味的风景线,分区合理,配备鞋柜精灵,让空气更加清新。主卧衣柜,特别设计首饰&领带收纳空间,一物一格,分区收纳,优质皮革材质,诠释璞元所倡导的「轻奢温暖生活格调」。

内观·ANANDA

172㎡ | “奢而不露,雅韵自生”的空间美学

居住空间,不仅承载着居者的格调与品位,也应当对生活方式带来升维。

璞元在金茂五舒十二大科技系统进行迭代升级,并且引入华为鸿蒙智家系统,科技+智能的双硬核之作,让业主真正拥有一处会思考的家。

「超级家庭中心」

约 6.9 米横厅面宽,尺度阔绰、气场自成;洗衣机与烘干设备置于独立家政间,不占用阳台空间,让横厅更通透大气、起居更从容舒适。

客厅大面通铺星耀灰石材,搭配芬迪蓝奢石电视背景墙,地面、墙面天然纹理的相互映衬,交织出一种隐而不奢的东方气韵,为超级尺度感的家庭活动空间,平添一份雅韵。

所选用的芬迪蓝大理石,以其独特的纹理和色彩组合,被誉为“石头的奢侈品”。

172㎡厨房区域同样超配嘉格纳七件套,配置奢侈品级厨电,只为将居家氛围感提升至“Next level”。

厨房地柜拉篮、上柜全维收纳系统,与双开门大尺度冰箱、多功能烤箱等厨电奢品,以高端性能和合理格局,承载米其林级家宴。

「奢华卫浴世界」

在璞元的每一刻,皆是一场奢华的生活旅程。

卫浴空间,配备兼容艺术感与实用性的劳芬壁挂马桶,当代的卫浴龙头配合金茂独有的全屋净水系统,越级的配置,予生活无可挑剔的奢适体验。

无论是被誉为“龙头花洒界的劳斯莱斯”的当代,还是被誉为"卫浴界的瑞士手表"的劳芬,璞元希望采撷全球顶级奢品,献给具有世界阅历的生活者。

此外,璞元亦贴心为女人带来极致呵护,镜柜内置美妆恒温冰箱,提升女主人护肤及化妆的舒爽体验感。

「独立家政间」

兼顾每一种需求,贯穿在璞元产品设计的始终。

一方独立家政空间,洗烘套装从容安置,大空间储物柜设计,诠释功能主义奢华。

「舒风卫生间」

璞元科技系统采散分散回风,户内气流组织更好,让空气清新如初。

夏季卫生间和厨房因回风带来凉感,温度体感更舒适,如同璞元追求的一般,兼顾每一种未被满足的生活需求。

高度国际化的「塔尖圈层」

“血统不会影响一个人的未来,但交际圈会”,这是巴菲特说的。

百年前,虹口就已经是旧时的市中心,旧时的商贾富豪、医生教授等上流人士就在溧阳路、山阴路、多伦路等地建起了洋房。

图源网络,仅供参考

那时的虹口就是海派文化的发祥地、鲁迅、 瞿秋白、郭沫若、茅盾等文化名流圈子都曾在虹口生活。

图源网络,仅供参考

时至今日,瑞虹新城经过30年的运作,已经有了自己鲜明的高净值圈层标签。

小编咨询了板块内近两年入市新盘的多位老销售,还走访了周边的中介,听到了几乎一致的声音:

近年入手的业主几乎都是各行各业中的高知人群,多是知名的行业领袖,私营业主,外企高管,医生,教授与体制内领导…...

不止如此,板块的国际化浓度也非常高。据统计,这里有15%的外籍居民,汇集了30多个国家和地区的外籍人士,超过70%的居民或子女有留学背景。这种国际化豪宅圈层属性上海屈指可数。

瑞虹社区活动,图源上海虹口公众号,仅供参考

圈子好比巴菲特的通讯录,别人搬不走也换不来。

选择「金茂·璞元」,就是在选择“圈子”。毕竟最好的资源不在饭局,而是下楼即遇生意伙伴;最好的人脉不是向上社交,而是从小就是朋友。

千金买邻,大抵如此。

瑞虹板块---30年一路向上成就出的豪宅区

近三十年来,上海的顶级豪宅在不断更替换新,有很多曾经炙手可热的板块逐渐淡出人们视线,就像今天很少会有人再会谈起古北、联洋、碧云……

新天地和瑞虹是浦西唯二的,在二三十年里一直站在C位,房价不断攀升,持续吸引市场的关注的豪宅板块。

它们都是同样起源自瑞安的区域旧改整体开发,因坚持长期主义而焕发出熠熠生机。

瑞虹的1-10期都是瑞安自己做的商品房社区,全新的城市界面塑造出了纯粹的豪宅圈层。

图源网络,仅供参考

30年前,瑞虹一期就是上海第一个精装修,第一个拥有会所的住宅小区。

20年前,瑞虹二期率先在上海引进园林住宅的概念。

10年前,从瑞虹七期开始豪宅化,定制奢品精装、私人豪华会所的概念备受市场追捧。

之后的八、九、十期个个都是当时顶尖的豪宅盘。其中,九期的二手成交价一度接近20万(十期限售)。

如今,展现在「金茂璞元」面前的,是历时三十余年的积淀,集住宅、商业、办公、教育于一体的170万方内环内最大豪宅区,各类醇熟的生活资源是很多正在大兴规划的豪宅板块所无法比拟的。

示意图,仅供参考

交通方面,周边有4/8/10/19号线四条轨交环绕,其中10号线邮电新村站就在家门口,直线距离仅约70米,4站即可直达南京东路站。这种TOD级的轨交资源不止在瑞虹板块内,甚至在整个浦西内环都是极为稀缺的。

图源百度地图,仅供参考

开车10分钟就能到陆家嘴、外滩、北外滩和南京东路等核心商圈。

图源百度地图,仅供参考

商业方面,这里有约55万㎡的瑞虹天地是一大亮点,由新天地原班团队设计,以星星堂、月亮湾、太阳宫为核心,引入多家首店品牌,成为了当下炙手可热的时尚地标。

图源网络,仅供参考

生态方面,约17万方的3A级景区和平公园+浦西内环内面积最大的鲁迅公园,构成了市中心从未有过的大型生态绿肺。

图源网络,仅供参考

医教配套方面,板块内有尚外附小幼儿园、上海新宏星小学、华师大一附中初中部多所优质学校。第一人民医院、新华医院2家三甲医院,是上海优质医教资源最密集的区域之一!

除了自身高浓度的配套,瑞虹南面紧贴着的定位为“世界会客厅”的北外滩,将与外滩和陆家嘴共同构成世界级城市中央活动区CAZ的“浦江金三角”。

这里840万方建筑规模比肩陆家嘴,将会是未来上海最繁华的所在,它会给「金茂璞元」未来价值成长空间带来极大的确定性。

图源网络,仅供参考

如果说北外滩是 “上海未来的面子”,「金茂璞元」就是“上海未来的里子”。

金茂璞元

售楼处电话:400-1789-318(已认证)

金茂璞元营销中心热线:400-1789-318(欢迎致电)

金茂璞元售楼处预约电话:400-1789-318☎☎☎如有问题可来电咨询,一对一为您服务!

看房需提前来电预约登记请务必致电与销售确认时间,预约客户可优先进入销售现场,避免空跑,感谢您的支持!

声明:本文由入驻焦点开放平台的作者撰写,除焦点官方账号外,观点仅代表作者本人,不代表焦点立场。