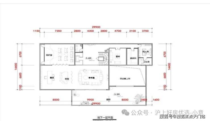
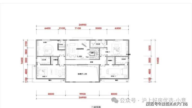
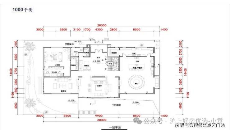
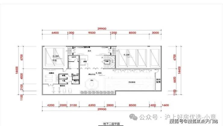
信达泰禾上海院首页网站 - 信达泰禾上海院销售中心 (营销中心) 欢迎您 - 小区环境 - 户型 - 价格 - 地址 - 楼盘详情 - 周边配套 - 新中式院墅邀您亲鉴
扫描到手机,新闻随时看
扫一扫,用手机看文章
更加方便分享给朋友

声明:本文由入驻焦点开放平台的作者撰写,除焦点官方账号外,观点仅代表作者本人,不代表焦点立场。
