速来了解!2025 中海·海上和集楼盘详情,中海·海上和集售楼处预约电话,深挖房价、户型,细探容积率与小区环境
扫描到手机,新闻随时看
扫一扫,用手机看文章
更加方便分享给朋友

如有问题欢迎来电咨询,专业一对一热情服务,让您用专业眼光去买房。
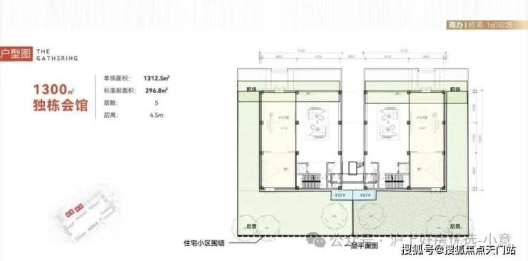
中海·海上和集独栋商墅
LUXURY HOUSE
在售详情
杨浦内环内中海力作
沿街小独栋商墅
【中海·海上和集】
面积1000~1200㎡
仅2栋在售
办公产权,带燃气
报价6000万
一楼花园/B1地下室
退台花园多维拓展空间
带专属车位
准现房,年底竣工备案
房源优势
·内中环内唯一在售小面积独栋,50年产权,通燃气。目前在售2栋,面积1000-1200平,总价6000万左右。
·户型方正,南北通。一楼挑高9米,视野开阔。南侧带院子,赠送大面积露台、屋顶花园
·央企开发,中海物业服务,每栋赠送7个车位
·周边两条地铁,距离18号线江浦路500米、8号线鞍山新村700多米
·距离瑞虹商圈1.5公里、北外滩来福士2公里、五角场商圈3.5公里
·靠近新建路隧道、北横通道,周边交通便利
杨浦内环内,近东外滩/北外滩
北横通道二期(周家嘴路)旁
近大连路总部研发聚集区
一桥九隧迅速通达陆家嘴及外滩
8/18号双地铁站 江浦路地铁旁
近和平公园&江浦公园
北外滩/东外滩/大连路/瑞虹新城四大商圈环绕
毗邻字节跳动/美团/B站3大大厂
实景图

如有问题欢迎来电咨询,专业一对一热情服务,让您用专业眼光去买房。
声明:本文由入驻焦点开放平台的作者撰写,除焦点官方账号外,观点仅代表作者本人,不代表焦点立场。
