(保利·外滩序)首页网站-2025上海房价_楼盘评测丨地址丨详情丨售楼处电话丨 交房时间

搜狐焦点天门站 2025-11-05 19:37:00
用手机看
扫描到手机,新闻随时看

扫一扫,用手机看文章
更加方便分享给朋友

保利·外滩序售楼处电话:400-118-3159(已认证) 营销中心热线:400-118-3159(欢迎致电) 售楼处预约电话:400-118-3159☎☎☎如有问题可来电咨询,预约销售专员,一对一为您服务!

保利·外滩序售楼处电话:400-118-3159(已认证)

营销中心热线:400-118-3159(欢迎致电)

售楼处预约电话:400-118-3159☎☎☎如有问题可来电咨询,预约销售专员,一对一为您服务!

点击输入图片描述(最多30字)

杨浦滨江风貌带核心位置

内环滨江+臻稀风貌+前后大花园

「保利·外滩序」BUND45仅余4席!

建面约175-280㎡风貌别墅

总价预计3500万-5000万!

点击输入图片描述(最多30字)

01

PART

区域介绍

说到黄浦江,不得不说 杨浦滨江有着上海仅有的一条滨江风貌住宅带。

一方面,我觉得这地方确实需要风貌住宅带,因为 字节跳动、美团、哔哩哔哩等互联网大厂在此设总部,即将兑现,这批高能企业容易产生较多“资产大佬”,那需要与之身份、需求相匹配的高阶住宅,这条滨江风貌带可谓近水楼台。

点击输入图片描述(最多30字)

何况 杨浦滨江左手北外滩,右手陆家嘴,周边高净值人群非常多。

另一方面,滨江豪宅房价容易走出独立行情,黄浦滨江、陆家嘴、徐汇滨江等知名豪宅区都在滨江两岸,但它们都是高层,目前普遍挂牌15-20万/㎡。

那凭借更高阶的产品+更强的稀缺性,您认为这条风貌带会价值几何?

点击输入图片描述(最多30字)

值得一提,项目还是少见的地铁风貌住宅, 毗邻18号线丹阳路站,通过18号线,地铁4站世纪汇广场、5站陆家嘴。

自驾道路桥隧纵横,可通过大连路隧道、江浦路隧道、杨浦大桥、新建路隧道等便捷来往浦东。还近北横通道,不管到市中心还是浦东金桥方向,开车都很方便。

点击输入图片描述(最多30字)

02

PART

产品介绍

上海里弄经历了从石库门老弄堂到新式里弄再到花园里弄的过程。

其中花园里弄存量最少,据1950时的统计,石库门里弄占大多数,占比60%以上,而 花园里弄仅占所有里弄住宅的约 6.92%

除了少, 花园里弄也是档次更高的里弄风貌,知名的马勒别墅、上方花园、上海懿园等就是其中典范。

点击输入图片描述(最多30字)

花园里弄住宅示意图

居者也普遍是当时的商贾名流、文人知识分子,如著名画家丰子恺曾居住于凡尔登花园,西式里弄建筑门前有竹篱笆围起来的花园,花木扶疏;巴金、张爱玲曾在花园里弄里写下万卷长书。

而保利·外滩序BUND45稀缺性就在于,它是上海已出让的风貌地块中,仅有的一幅里弄风貌住宅用地属于花园里弄的,也就是本就臻稀的6.92%中唯一的一块。

点击输入图片描述(最多30字)

数据来源《上海住宅建设志》

其次,1.2容积率+大面宽质素,BUND45这样的好资质地块凤毛麟角!

保利能在外滩序接连不断打造惊艳产品,除了保利深厚的产品造诣,还离不开地块的天赋。

一方面, BUND45是市中心少有的既规整又面宽够大的地块,保利把面宽资源最大化,这才造就了眼前一亮的产品力。

第三,它的稀缺性是由历史注定的,供应总量先天“锁死”!

这种稀缺性不同于过去很多项目所谓的稀缺,十年二十年后,随着新板块崛起会面临挑战, 而是一种根本性的客观存在,真正没有竞品

因为风貌住宅不是随便一块宅地都能开发的,必须在具有历史价值的地块上才能打造, 它主要来源成片二级以下旧里旧改,截止2022年基本结束

点击输入图片描述(最多30字)

你要知道,二级旧里普遍建于1920-1950年, 历经近百年才有这么一次城市更新,也就近期有阶段性供应,往后大概率无增量。

另外约185万㎡不过是理论上限,但实际上绝大多数体量用作商业、文化等公共服务设施和其它类型住宅,真正用于风貌住宅的体量很少。

上述三点叠加,保利·外滩序BUND45风貌稀缺性的BUFF拉满!

✔奢阔面宽:2层风貌住宅做到约11.3米面宽,比肩300多平别墅享受;

✔超尺度花园:享南北双花园,主力户型的高附赠花园面积集中在约61-108㎡不等;

南花园:

点击输入图片描述(最多30字)

样板房实景

北花园:

点击输入图片描述(最多30字)

样板房实景

✔远超常规的附赠:项目有2层3层风貌,实际享五层空间体验,其中赠送面积约50-135㎡的地下室,层高约3.9-5.7米,还带露台及顶层空间;

✔独特审美,除了思南公馆同款纯手工卵石立面,红漆木制连续方格长窗、砖砌过梁、老虎窗、拱券门洞/窗洞和红漆木制牛腿等相关构件,采用整体保留样式的方式,木构件按原样式用现代材料复原,并做足神韵;

点击输入图片描述(最多30字)

样板房实景

✔市面唯一一块花园里弄住宅地块,档次更高。

样板房实景

点击输入图片描述(最多30字)

第三,据悉项目主力总价4000万级。

客观讲,这是第一次有风貌住宅给出主力4000万级价位,机会难遇。

面对这一块天赋异禀的地块,保利因地制宜把产品力发挥得淋漓尽致。

内在,突破了传统风貌的瓶颈,有了颠覆性的构造;外在,更好地传承了历史韵味。

首先,对我冲击力最大的莫过于室内空间的尺度感和舒适度。

以下以建面约210㎡2层风貌住宅样板间为例:

冲击点1:面宽约11.3米,通透力MAX。

项目面宽做到风貌中罕见的 三开间朝南,尺度达惊人的11.3米,其中客厅还是 大横厅,带来更丰富的生活场景,一场生日舞会、一个小型展览、一次品酒会...这个大横厅都能承载。

点击输入图片描述(最多30字)

点击输入图片描述(最多30字)

样板房实景

同时一层卧室L型布局,卧室多面采光,也可多角度欣赏院中的人和景,增加了互动。

另外得益于大面宽,室内采光、通透性很强。

点击输入图片描述(最多30字)

样板房实景

冲击点2:户均前庭后院,拥超尺度花园。

项目主力户型的高附赠花园面积集中在约61-108㎡不等,且是南北双花园,堪称风貌界独一档的附赠。

样板房实景

点击输入图片描述(最多30字)

超尺度花园赋予生活更多可能:父母莳花弄草的乐园、孩子的自在天地、先生的社交主场、太太的浪漫花园……房前屋后满载全家人欢乐时光。

冲击点3:超高附赠,项目2层3层风貌享5层空间感

项目二层 大主卧,空间感、仪式感满满。

样板房实景

点击输入图片描述(最多30字)

带大露台,在增加使用面积的同时更亲近自然,眼前就是花草树木的绿意和四季变换。

点击输入图片描述(最多30字)

样板房实景

顶层空间在孟莎式屋顶+老虎窗加持下,采光和实用性都非常好,小胖君身高1米75,在过道上可以站直。它可以是一处气质独特的书房,也可以是储物柜或衣帽间。

地下室层高约3.9-5.7米,格局方正完整、利用率高,附赠面积约50-135㎡,业主可以充分发挥想象力。

比如,摆满各种健身器材的健身区、铺满镜子的舞蹈室、私密静音的钢琴房、放松身心的SPA区,甚至私人酒窖、雪茄室…一切都随心所欲。

此外,二层还有一间灵动空间,可以是女王化妆间、画室、甚至主人工作室。

冲击点4:窗墙比非常高

项目一层和二层立面使用大量铝合金长窗,造型更摩登的同时,也赋予建筑更高窗墙比,进一步加强室内通透采光。

项目效果图过程稿

点击输入图片描述(最多30字)

冲击点5:卧室空间全部朝南

最后,项目把面宽充分利用的一个闪光点就是,把卧室类的空间都安排在南侧,采光更好,也能直面南花园。

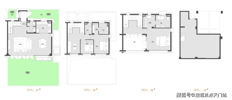
BUND45风貌主力户型图如下:

点击输入图片描述(最多30字)

点击输入图片描述(最多30字)

其次,独特美学立面,细节之处都是历史韵味。

在这背后,是保利对于在地文化的深刻研究和传承创新。

有一句话说得好:“建筑不是简单的复刻,也承载情感与记忆的复兴。”

保利在传统中继承,在传承中创新,除了刚才说过的木构件按原样式用现代材料复原,对于卵石外墙、红瓦屋面、南坡举折和烟囱等,也按原样式制作,提升了风貌整体的文化品位。

点击输入图片描述(最多30字)

这其中,每一个细节都 凝聚着保利匠人的初心与执着,管中窥豹:

比如为了还原卵石立面,保利一方面通过大量研究建筑文献和上海老建筑资料,经过无数轮的打样比选、与上海经典卵石项目—— 思南公馆的实地比对,寻访思南公馆同源卵石。

点击输入图片描述(最多30字)

思南公馆实景图

另一方面, 卵石立面作为上海“非遗”级别工艺,只能纯手工打造。据悉,保利为更好还原时间韵味,卵石会被多次水冲,做出凹凸感,再用仿古刷打磨,整个过程极度耗费人力和心力,一个工人一天只能作业5个平方左右,但为了达到最完美的状态,保利愿意这样做。

(信息来源:卵石立面工艺2018年被列入上海市非物质文化遗产代表性项目名录)

这才有把思南公馆“搬”到了杨浦滨江。

像这样的细节,还有很多,皆是保利刻意为之。

它不仅代表着高成本的投入,更是保利产品主义的直接体现,即便先天条件如此优越,但依旧对自己要求非常高,产品打造严苛到骨子里。

而这种力求完美的态度,不计成本、不计付出的用心,才是让社区历久弥新的保障。

点击输入图片描述(最多30字)

项目实景图

总的来说,产品亮点实在太多,绝对值得你去现场好好感受一番。

它的呈现需要开发商和地块天赋的合力,你在上海可能再也找不到第二个外滩序风貌,它代表的就是当下风貌界产品力高峰!

或许,这才是鼎级风貌该有的样子!

区别于传统风貌的高墙深院,BUND45风貌用了更多镂空栏杆,这就将 景观效用最大化,让居住环境拥有更大的空间连续性,更亲近自然。

我想,这也代表了项目主张的一种生活方式:融合。

当然,不止与自然绿化相融, BUND45亲江约500米,相当于私藏了黄浦江的惬意。

未来,业主们下楼散步到江边,就能享受滨江漫步道、骑行道,在公园放放空,吹吹江风,看着夕阳缓缓落下...

特别近年来,杨浦滨江文化地标如雨后春笋般出现,赋予这段滨江更为休闲、文艺的气质。

点击输入图片描述(最多30字)

杨浦滨江风貌带核心位置

内环滨江+臻稀风貌+前后大花园

「保利·外滩序」BUND45仅余4席!

建面约175-280㎡风貌别墅

总价预计3500万-5000万!

预约看房,请致电400-118-3159预约!

声明:本文由入驻焦点开放平台的作者撰写,除焦点官方账号外,观点仅代表作者本人,不代表焦点立场。