2025#天潼198#首页网站|售楼处电话|在售户型|小区配套|最新价格|周边详情|容积率|楼盘详情

搜狐焦点天门站 2025-10-01 12:11:00
用手机看
扫描到手机,新闻随时看

扫一扫,用手机看文章
更加方便分享给朋友

天潼198售楼处预约热线:400-118-3159☎️☎✅✅✅《售楼处已认证》

天潼198售楼处预约热线:400-118-3159☎️☎✅✅✅《售楼处已认证》

百年外滩&北外滩交汇

上海未来的C位核心区

【天潼198】

建面约502㎡~907㎡风貌别墅

总价约1.5亿起

目前“样板间”已开放

编辑

点击输入图片描述(最多30字)

新湖天潼198位于北外滩地区,紧邻一江一河,是距离外滩风貌保护区最近的高端居住区。单价约18万平,限量59套,外滩近在咫尺,为了打造恒久的魅力与价值,新湖携手发展商理想特别邀请 tonychi studio创始人、世界级设计大师季裕棠先生作为顾问及美学指导,为天潼198注入国际先进设计思想。天潼198售楼处预约热线:400-118-3159☎️☎✅✅✅《售楼处已认证》

编辑

点击输入图片描述(最多30字)

坐落于上海虹口区北外滩的这座庭院住宅是天潼198项目的一部分。这片曾经由石库门里弄构成的地块,正在被重新开发成一个文物住宅综合体。天潼198售楼处预约热线:400-118-3159☎️☎✅✅✅《售楼处已认证》

近年来,上海在城市更新方面既注重保护原有城市肌理,又着重发展历史风貌建筑。这一方式虽然创造了一个多元且尊重历史的城市景观,但这些新开发的风貌住宅项目,也代表着一种有别于中国传统房地产市场的新方向。天潼198售楼处预约热线:400-118-3159☎️☎✅✅✅《售楼处已认证》

编辑

点击输入图片描述(最多30字)

里弄生活

LILONG LIVING

编辑

点击输入图片描述(最多30字)

江南绞圈房与西式联排住宅

里弄房屋,也称为石库门,是中国传统四合院与西方联排住宅的独特融合,体现了海派建筑的跨文化特色传统。中国传统四合院强调内向的水平空间,而西方联排住宅则以外向的垂直空间为特色。这种建筑设计的融合,反映了十九世纪至二十世纪初上海开放进取的国际精神天潼198售楼处预约热线:400-118-3159☎️☎✅✅✅《售楼处已认证》

本项目旨在挑战当前高端独立住宅的固有模式,同时打造一个能够容纳多代同堂生活并保存家族记忆的居所。

编辑

点击输入图片描述(最多30字)

栖息院落

RETURN TO THE COURTYARD

编辑

点击输入图片描述(最多30字)

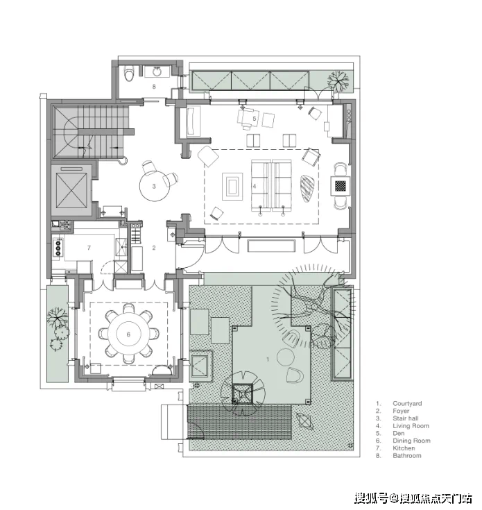
1层设计平面

入户体验始于私家庭院。在高密度的城市环境中,庭院为住宅提供了一处解压之地,一缕新鲜空气。因此,在平面布局上,我们将所有重要空间布置在庭院周边,以充分利用庭院空间。

编辑

点击输入图片描述(最多30字)

从庭院地面层,可以看到客厅和餐厅的内部空间。客厅在立面上向内凹陷,形成了一条有遮盖的走廊,通向房屋定制的深铜色入户大门。天潼198售楼处预约热线:400-118-3159☎️☎✅✅✅《售楼处已认证》

编辑

点击输入图片描述(最多30字)

入户门

入户空间由一个简约的门厅和楼梯厅组成,门厅配有控制台和嵌入式衣柜。以多功能圆桌为中心的楼梯厅连接着楼梯、电梯、客用卫生间和客厅。空间采用白色洞石搭配特制染色的胡桃木,其浅色调与洞石和谐呼应,同时保留了胡桃木独特的纹理特征。天潼198售楼处预约热线:400-118-3159☎️☎✅✅✅《售楼处已认证》

编辑

点击输入图片描述(最多30字)

编辑

点击输入图片描述(最多30字)

楼梯厅

在客厅中,两个展示架巧妙地将空间分隔成主客厅区和休闲室,营造出一个与建筑尺度交相辉映的层次空间。天潼198售楼处预约热线:400-118-3159☎️☎✅✅✅《售楼处已认证》

编辑

点击输入图片描述(最多30字)

编辑

点击输入图片描述(最多30字)

正式客厅

这样的布局提供了多样的就座选择——主客厅区保持其开阔大气,与庭院浑然一体;而配备了吧台并可俯瞰北侧小庭院的休闲室,则营造出温馨私密的氛围。天潼198售楼处预约热线:400-118-3159☎️☎✅✅✅《售楼处已认证》

编辑

点击输入图片描述(最多30字)

编辑

点击输入图片描述(最多30字)

餐厅四角以高光烤漆板为基准,营造出庄重感。空间一侧临近中庭,另一侧毗邻西侧小庭院。天潼198售楼处预约热线:400-118-3159☎️☎✅✅✅《售楼处已认证》

编辑

点击输入图片描述(最多30字)

编辑

点击输入图片描述(最多30字)

编辑

点击输入图片描述(最多30字)

餐厅

一面贯穿地下室至阁楼七层的整体白色洞石墙体构成建筑主轴。楼梯采用纯净简约的设计,作为连接整个住宅的核心元素,与每层的风格相得益彰。天潼198售楼处预约热线:400-118-3159☎️☎✅✅✅《售楼处已认证》

编辑

点击输入图片描述(最多30字)

编辑

点击输入图片描述(最多30字)

深铜色的栏杆和扶手融合传统与现代语汇,演变出一种当代型态,与现代白色洞石相映成趣,营造出优雅纯粹的意境。天潼198售楼处预约热线:400-118-3159☎️☎✅✅✅《售楼处已认证》

编辑

点击输入图片描述(最多30字)

编辑

点击输入图片描述(最多30字)

1-4层楼梯间

大隐隐于市

MASTER OF THE COURTYARD

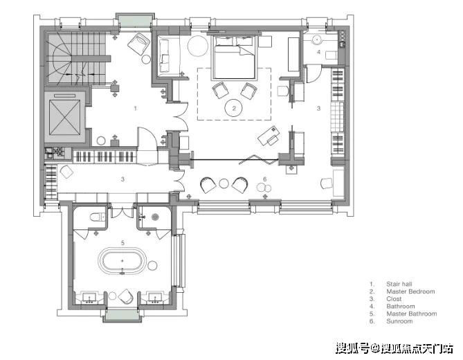
整个三层都属于主卧套间。我们非常重视这一层空间的秩序感和流线,并尝试了多种方案。最终我们没有将主卧室空间直接紧贴面向庭院的窗户,而是借鉴上海老洋房的做法,在中间增加了一个过渡空间——‘阳光房’。天潼198售楼处预约热线:400-118-3159☎️☎✅✅✅《售楼处已认证》

这个空间不仅解决了整层的交通动线,更重要的是,考虑到里弄建筑之间的紧密距离,通过将最私密的卧室区域与大窗户分开来确保居住者的隐私。同时为了确保主卧室区域能获得充足的自然光,我们使用折叠百叶门来分隔主空间和阳光房。

编辑

点击输入图片描述(最多30字)

3层设计平面

编辑

点击输入图片描述(最多30字)

主卧入口

编辑

点击输入图片描述(最多30字)

编辑

点击输入图片描述(最多30字)

编辑

点击输入图片描述(最多30字)

主卧室空间

编辑

点击输入图片描述(最多30字)

床边的阅读角落

编辑

点击输入图片描述(最多30字)

增加的“阳光房”

深色烟熏橡木搭配Eric Morris定制的黄铜五金件,将上海老洋房的韵味和气质在精致的细节中得到完美诠释。天潼198售楼处预约热线:400-118-3159☎️☎✅✅✅《售楼处已认证》

编辑

点击输入图片描述(最多30字)

编辑

点击输入图片描述(最多30字)

编辑

点击输入图片描述(最多30字)

主卫

庭院生活

COURTYARD LIVING

编辑

点击输入图片描述(最多30字)

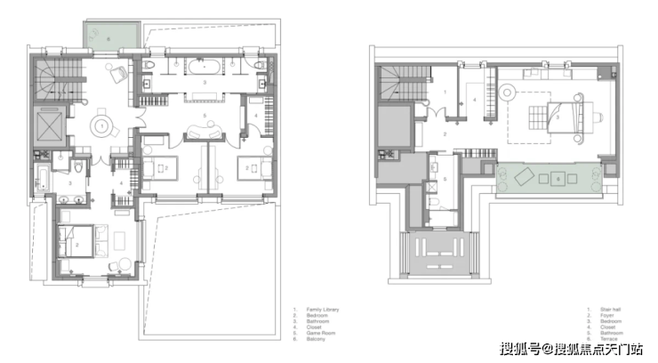
2&4层设计平面

二层设有儿童区和父母房间。所有房间都围绕庭院布置,以充分利用景观视野。我们还将楼梯厅空间改造成家庭图书馆——在这个原本私密的楼层创造了一个公共空间。这为家庭成员增加了除客厅和地下室之外的又一互动空间,强化了我们对现代上海家庭更多交通和爱的理念。天潼198售楼处预约热线:400-118-3159☎️☎✅✅✅《售楼处已认证》

编辑

点击输入图片描述(最多30字)

家庭书房

编辑

点击输入图片描述(最多30字)

编辑

点击输入图片描述(最多30字)

父母房间

四层阁楼是大女儿的卧室。这里的斜顶启发我们在空间内打造了一个木质小屋;配备私人浴室和衣帽间,还有一个露天阳台,仿佛这充满阳光的一层就是个独立公寓。天潼198售楼处预约热线:400-118-3159☎️☎✅✅✅《售楼处已认证》

编辑

点击输入图片描述(最多30字)

编辑

点击输入图片描述(最多30字)

室内的“室内”

ENDLESS INTERIOR

地下室层是娱乐和家庭聚会的主要空间,因此,我们将空间设计得更现代和随意。也正是在这里,我们突破了室内空间中跨文化对话的界限。天潼198售楼处预约热线:400-118-3159☎️☎✅✅✅《售楼处已认证》

编辑

点击输入图片描述(最多30字)

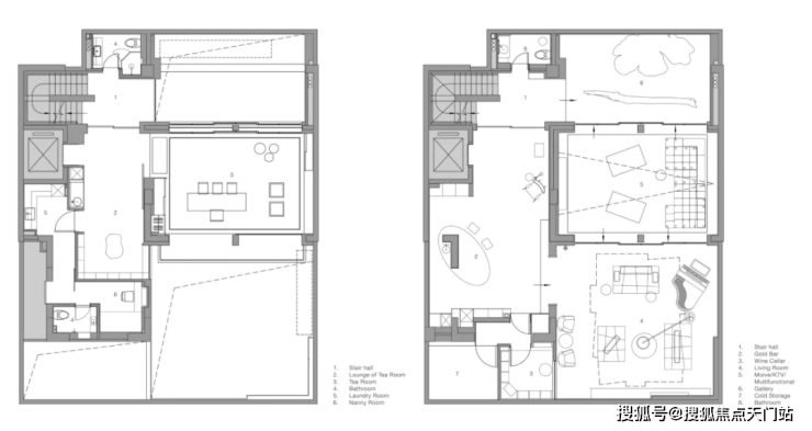
地下设计平面

尽管有明确的结构分区和限制,我们还是将地下室视为一个整体空间。我们的方法是在空间中植入一个'町屋'(日本传统商住建筑)。天潼198售楼处预约热线:400-118-3159☎️☎✅✅✅《售楼处已认证》

编辑

点击输入图片描述(最多30字)

“町屋”概念图

编辑

点击输入图片描述(最多30字)

编辑

点击输入图片描述(最多30字)

编辑

点击输入图片描述(最多30字)

编辑

点击输入图片描述(最多30字)

地下客厅

这个木质建筑统一了地下室空间,同时分隔出不同的功能区域。在木质建筑内部,夹层设有榻榻米茶室,下层则是影音娱乐室。大型推拉门让空间在举办派对和接待客人时能够自由流动。

编辑

点击输入图片描述(最多30字)

茶室

编辑

点击输入图片描述(最多30字)

在'町屋'后方,是一个墙面和天花板都覆盖金箔的'金吧'。在这里,我们重新引入了一些当代西方设计语言——大理石地面图案、蛋形吧台和墙面护板细节。这些元素与醒目的红色高光烤漆柜相互平衡。天潼198售楼处预约热线:400-118-3159☎️☎✅✅✅《售楼处已认证》

编辑

点击输入图片描述(最多30字)

编辑

点击输入图片描述(最多30字)

水吧

设计应该更贴近日常生活。对环境保持敏感和尊重是至关重要的——我们需要不断重新思考个人生活方式,以及其与周围环境的关系。天潼198售楼处预约热线:400-118-3159☎️☎✅✅✅《售楼处已认证》

虽然这个项目与市场上常见的大型豪宅明显不同,但我们相信它既尊重了城市的传统,又探索了上海未来城市居住的新可能性。

编辑

点击输入图片描述(最多30字)

百年外滩&北外滩交汇

上海未来的C位核心区

【天潼198】

建面约502㎡~907㎡风貌别墅

总价1.6亿起

目前“样板间”已开放

— 恭迎品鉴 —

VIP热线:400-118-3159

“致电预约看房“

声明:本文由入驻焦点开放平台的作者撰写,除焦点官方账号外,观点仅代表作者本人,不代表焦点立场。