中海·海上和集销售中心-中海·海上和集户型展示-价格详情-楼盘信息-配套介绍-联系方式

搜狐焦点天门站 2025-11-13 16:59:00
用手机看
扫描到手机,新闻随时看

扫一扫,用手机看文章
更加方便分享给朋友

中海·海上和集售楼处电话:400-8669-938

中海·海上和集售楼处电话:400-8669-938

编辑

【基础信息】

项目区域:杨浦区-内环内

开发商:中海地产

面积区间:约1000-1300㎡独栋

价格区间:6000万左右

布局:1-5层,附赠1楼花园/B1地下室/退台花园/屋顶露台

物业公司:中海物业

物业费:12元/m²

产权年限:50年

交付标准:毛坯交付

交付时间:现房,款清交付

属性:适用于企业办公、商业经营、行政公馆、私人会所等;

中海·海上和集

中海·海上和集项目由大型央企中海集团开发运营,总建筑面积约8.8万平方米。建筑采用现代简约风格,外立面以真石漆结合铝板线条打造质感肌理,社区内实现约35%绿化覆盖率,形成立体景观体系。社区内嵌5000㎡复合商业与900㎡邻里服务中心,呼应周边新华医院(三甲)、和平公园等配套,构建五分钟生活圈。

编辑

周边客流分析

商务流量:项目紧邻北外滩中央活动区(CAZ),该区域近五年累计引进亿元级投资项目335个、总投资超3000亿元,集聚荷兰全球人寿、法国东方汇理等跨国企业总部

枢纽流量:项目坐拥“五轨交汇”枢纽优势:步行400米至8号线鞍山新村站、600米覆盖12号线江浦公园站,4/10/18号线环伺,形成10分钟直达陆家嘴、20分钟贯通浦西核心的通勤圈

产业人口:周杨浦滨江南段集聚哔哩哔哩、美团等互联网大厂,五角场周边18万大学生构成“永续年轻流量池”

编辑

地铁交通

地铁:8号线鞍山新村站,4号、12号、18号线环绕

主干道:北横通道、内环高架桥、大连路

距虹桥枢纽约25KM,约40分钟达

距浦东机场40KM,约45分钟达

商圈配套

内嵌5000㎡自持复合商业及900㎡邻里中心;教育医疗资源密集,1公里内汇聚打虎山路第一小学、新华医院(三甲);步行10分钟可达和平公园、江浦公园,北侧500米即控江路商圈(旭辉MALL、紫荆广场等),1公里直达55万方瑞虹天地综合体,2公里覆盖北外滩来福士、白玉兰广场

编辑

项目基本信息

目前在售:23#号,25#号

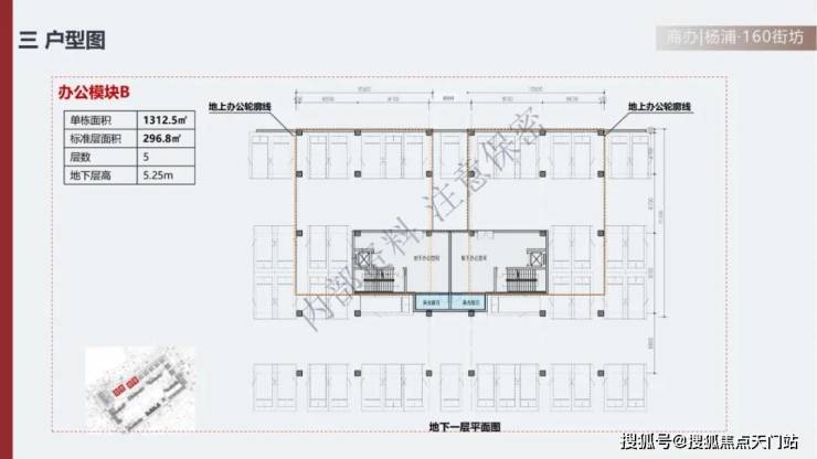
面积:1048㎡、1284㎡

产权性质:办公产权可通燃气

附赠:一楼花园、B1地下室、露台花园、带专属车位

地上5层+地下1层,地上层高4.5米,地下层高5.25米。

编辑

户型图

编辑

编辑

编辑

编辑

编辑

编辑

编辑

编辑

实景拍摄

编辑

编辑

编辑

编辑

编辑

编辑

中海·海上和集售楼处电话:400-8669-938

编辑

声明:本文由入驻焦点开放平台的作者撰写,除焦点官方账号外,观点仅代表作者本人,不代表焦点立场。