「翡雲悦府」浦东内中环低密墅!二期四批次小筹中,约 170㎡高层 32 套在售,均价 11.37 万 /㎡!
扫描到手机,新闻随时看
扫一扫,用手机看文章
更加方便分享给朋友
2025年的上海楼市,正被一个名字续写传奇---翡雲悦府。
就在8月28日,翡雲悦府I期五批次&II期二批次房源,顶着所有审视与期待,开盘即罄,毫无悬念。
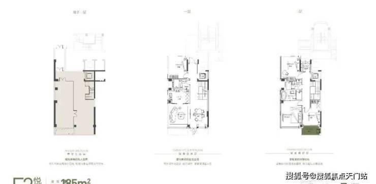
重磅消息:翡雲悦府六批次产品已过会!本次将加推位于二期三批次168套建面约113㎡3房,位于一期社区内16套建面约175-220㎡的叠墅产品!
高层样板间视频:
叠墅样板间视频:
翡雲悦府·悦墅位于内中环新杨思板块,这片区域有几个标签:
城市界面:
整个浦东内中环唯一的成片开发区域,整个板块内一点老公房都没有,清一色的豪宅、高端商场、中央生态绿地...
这里是整个浦东乃至全市城市界面最有想象空间的片区。
配套:
围绕3.5万方的中央公园打造的“POD中央绿心”,上盖公园链接核心区中央公园,创造独特的城市景观;
围绕漫步式商业街区打造的约40万方的“POD商业中心”,商业中心包含露天剧场、大型室外秀场、水上运动等;
约2.8万方的艺术、文化业态;
新一代WELLBEING办公;
还有幼儿园到初中的一站式教育;
...
值得一提的是,在规划中,新杨思被定义为:国际消费中心!旨在打造面向未来、面向国际的生活消费新高地,具有丰富城市体验的、有国际化“消费型街区”的区域。
这意味着,新杨思的配套能级必然是极高的,是浦东乃至上海的消费高地。

交通:
悦墅是距离城市核心区域最近的别墅项目,比20万+的碧云、东郊等区域更近。
同时,自驾上,中环高架、杨高南路快速通道、南北通道(规划中)、南北高架环绕。
轨交上,6号线、13号线以及规划中的26号线环绕。
以新杨思为中心,串联起了包括陆家嘴、新天地、前滩、张江、碧云以及浦西大宁、古北、真如等众多城市核心节点。
生活方式上:
除了外部的配套外,翡雲悦府通过从单一住宅思维到大社区营城思维的转变,重塑了全新的生活方式。
整个项目以人为原点,营造开放式街区,交互感会所、无界化景舱、水陆岛屿式园林,是以扩大城市底盘的生活方式,再演进。
整个新杨思的发展几乎没有短板,每一个环节都称得上是TOP级,即使对标老静安、新天地这样的顶级置业区,这里依旧非常有竞争力。
这样的区域内、匹配了最高产品舒适度的别墅产品,翡雲悦府·悦墅无疑是地段&产品双王炸的项目。
翡雲悦府售楼处电话:400-1789-208
声明:本文由入驻焦点开放平台的作者撰写,除焦点官方账号外,观点仅代表作者本人,不代表焦点立场。
