招商云澜湾售楼处电话:400-8669-938

松江新城·滨水低密墅区
【招商·云澜湾】
建面约96-126㎡小高层
建面约135-141㎡叠加
均价4.5万/㎡ 总价约337万起
无需积分 直接认购 线上预约
找我省钱,团购省钱!

当下上海楼市有一匹隐藏黑马,真正给了我们一个大大的惊喜,Ta就是松江主城的 招商云澜湾,火爆认购中!
项目主推建面约96-126㎡3-4房及建面约135-141㎡叠墅,其中 四层叠墅均价仅约5.9万/㎡!

项目效果示意图,仅供参考非交付标准
均价约5.9万/㎡买松江新城的叠墅,你知道是什么概念吗?
要知道,在当下建设如火如荼的五个新城中,松江新城是公认的佼佼者,无论是配套浓度、产业能级还是人才储备都是独一档的存在!
所以在其他新城房价还停留在4字头的背景下, 松江新城今年的高层新房,单价已经逼近6万大关!

数据来自网上房地产网签数据

与同板块高层价格持平,却能直接圆梦墅居的招商云澜湾无疑是改善客户入主松江城区错过不再有的天赐良机!
要知道作为居住业态的高阶形态,叠墅比起市面上主流的高层房源,优势实在是太多了,已然成为了很多人的 终极置业梦想!
· 得房率:叠墅因为有更多灵动空间,得房率要高的多。
· 空间可塑性:相比“一层不变”的生活,叠墅生活情境更立体,更个性化。
· 上下分层:叠墅相比平层能更好照顾各家庭成员的生活习惯,适合多代人共居。
· 身份更有荣耀感:叠墅形态更高级,面子上更有满足感,生活层次的进阶让内心有一份自豪感!

项目叠墅效果图,仅供参考非交付标准
更重要的是,招商云澜湾的叠墅更是将墅居体验做到极致!
首先项目是 四层上下双叠的产品,没有中叠。比起市面上大多数的6叠更加纯粹更加低密,视野也更加开阔!!
其次无论上叠还是下叠全部 具备4房的功能性,甚至有3卫配置,足以适配当下越来越多的二胎或三代同堂家庭!
再次在尺度设计上, 宽境横厅、套房主卧等全部安排上,将大宅的不凡气度体现的淋漓尽致!
同时,在灵动空间上,项目 下叠附带层高约5.2米地下室,足以盛放全家人的个性爱好。 上叠则附带南北双露台,独乐时,抬头观星,低头赏花;众乐时,好友齐聚,尽兴私趴!


综上所述,作为五个新城的领衔者,松江新城配套资源丰盛,科创产业底蕴深厚,置业需求旺盛,从来都是同价位里无需犹豫的优选项!
如今在 松江新城高层新房单价已然破6万的背景下,占位松江主城的招商云澜湾却给出了高层价格圆梦叠墅的天赐良机!这样的性价比神作,你还要错过吗?
松江正脉·央企墅质美宅
招商云澜湾火爆在售中
主推建面约96-126㎡3-4房
及建面约135-141㎡叠拼别墅
整盘均价仅约4.9万/㎡
当然除了价格劲爆!
相比同板块其他新房,招商云澜湾还具备3条人无我有的独特优势:

占位松江主城核心地段,人文底蕴、丰盛配套、规划红利尽在掌握!
众所周知,松江是上海之根,而“十里长街中山路”又是松江繁华的缩影!
招商云澜湾正位于十里长街旁,占据千年繁华正脉,人文底蕴深厚!
而这样的成熟地段必然又是配套丰盛之地!
交通方面,项目周边既有松江有轨电车T1/T2线,可抵达泰晤士小镇、广富林、松江体育中心等区域,一路打卡整座城市的生活风情;又有9号线串联上海西南与主城的“生活之轴”,直达上海中芯城区!

位置示意图,仅供参考
商业方面,项目近邻泰晤士小镇、万达广场、飞航广场、开元地中海等醇熟商圈,足以满足业主吃喝玩乐购一站式消费需求。

示意图,仅供参考
医疗方面,项目直线距离三甲综合医院——松江第一人民医院仅约3.5km,距离松江区妇幼保健院仅约2.4km;距离松江区中心医院仅约2.7km,满足家人全方位健康护理需求。(数据来源:百度地图测距)

示意图,仅供参考
教育资源方面,松江老城是松江已投入使用优质基础教育资源集中的区域,项目周边有松江区第三实验小学、上海师范大学附属外国语中学、上海对外经贸大学附属松江实验学校、上海市松江区教育学院附属实验学校等。
(免责声明:周边学校等相关教育设施仅为介绍周边已建、在建或规划教育资源,并不承诺为划片学区,学校划分以官方公示为准。)

示意图,仅供参考
便捷的交通和繁华的配套,让住在招商云澜湾的业主生活品质与住在主城区无异。但 松江得天独厚的生态优势是主城区无法比拟的
项目占位中桥港湾、近距永丰城市公园、思鲈园、醉白池、方塔园等生态园林资源,佘山国际森林公园轻松而至!
人人欣羡的诗和远方、都市快节奏上班族向往的绿色自然,成为了招商云澜湾业主生活的日常美好!

示意图,仅供参考
当然,当下显然还未是项目的价值顶点!
据松江“十四五”规划,十里长街所在的永丰板块, 坐拥上海科技影都核芯承载区功能,北接G60科创走廊,南连松江南站枢纽(规划),时代规划红利汇聚,项目未来前景可期!

示意图,仅供参考
项目地处松江新城永丰街道。松江新城板块位于松江区中心位置,成熟的配套和交通已成为松江的核心。加快建成松江枢纽,规划中地铁9号线和23号线,快线东西联络线和嘉青松金线,共计4条轨交在此交汇。再加上12号线西延伸段将也将于今年开始动工。

据悉,松江未来有望在嘉松公路以35号线将9号线与17号线南北贯通,届时将有可能升级为六轨交汇的松江新城。永丰是松江主城区的核心位置,而项目地块更是主城区最后一块优质土地。

总体看来,松江老城(永丰街道)油墩港以南界面和北面相比,无论是配套、学校、商业、城市界面还是居住氛围,都完全不能相比。我们都知道,即使是同一个单元,不同的地块,因为位置不同,价格也会出现不同,比如二批次出让的宅地:
△ 宝山南大地块,保利海上臻悦,6.3万/㎡;二批次金茂地块则6.7万/㎡;
△ 徐泾双联路北侧地块,绿城宅地,6.2万/㎡,隔壁虹桥公馆,6.4万/㎡;
△ 桃浦智创城,最新指导价8.55万/㎡,而之前位置处在智创城边缘一些的【象屿&交控桃浦项目】,指导价仅7.9万/㎡。

而22年的H17-02号地块,联动价4.9万/㎡,容积率1.5;23年7月,三盛颐景园东面招商双地块,容积率1.6,联动价同样是4.9万/㎡...容积率差不多,但是各方面配置都提高了不止一个等级的情况下,招商的宅地,竟然没有涨价。

交通配套方面:小区门口50m配有有轨电车T1、T2线、长途汽车客运站;4km到9号线醉白池站,自驾沪昆高速,转换沪闵高架、中环、南北高架、内环高架等,可快速到达上海市区,也可通过S32申嘉湖高速,可以快速到达浦东机场;

容积率仅约1.6低密墅区,央企招商松江迭代升级之作!
在如今的房地产大背景下,购房者对品牌的要求越发苛刻。
而招商云澜湾由 百年央企招商蛇口倾力打造,无论是安全性还是品质感都值得信赖!
要知道,早在2003年,百年央企招商蛇口就已进驻松江,如今深耕20载,七子耀松江,相信没有哪家开发商比招商更懂松江!
而且位于松江正脉的 招商云澜湾是央企招商最新迭代升级之作!

项目叠墅效果图,仅供参考非交付标准
①首先是项目得天独厚的天赋:容积率仅约1.6低密滨水墅质社区!
在对居住环境研判的报告显示:容积率每降低0.1,就意味着楼间距增加5米、被邻居吵到的机会减少20%、小区路面拓宽0.2米、社区新增100棵大树等等……所以低容积率能享受的居住体验感和高容积率完全不是一个层次!
据统计,今年4个批次土拍合计75块地,只有12块地的容积率在1.6及以下,占比约12%!而这些宅地再分散到全市16个区,一个区数年也未必轮得到一块!

数据来自上海土地官网公示
容积率仅约1.6的招商云澜湾无疑就是板块天生的置换链塔尖住宅,墅质社区营造的舒适感、尊贵感错过再难有!
更难得是,项目还是 双水系环抱的滨水社区!
而且为了放大地段天赋,项目规划了东高西低的社区配置,别墅和高层的业主都能享受双水系环绕的自然景观。

项目效果图,仅供参考非交付标准
②其次来看项目创新打造的都荟慢生活园林景观!
项目景观风格采用了都荟慢生活园林风,为了更契合松江江南古韵的文化气质,打造了 “两轴一林多重花巷”的景观配置!
· 两轴景观:为了提升业主归家的仪式感,项目南地块塑造了尊贵高雅的三重归家礼序,西侧公共通道通往北地块,打造了人文浪漫的银杏景观大道。
· 一林:依托贯穿小区的天然水系打造的滨水景观林。千年松江府配上水杉,更显古朴宁静,漫步林下,宛如穿行在水墨之间。
· 多重花巷:别墅片区在多个楼栋前都规划了不同主题的花巷,营造私密恬静的墅境,更有曲径通幽的自在。
另外,项目社区还规划有两座 “中央会客厅”、三大 “主题架空层”、和三大 “全龄活动空间“,让邻里之间有了更多的互动场所和机会,也让各年龄段业主都能在家门口找到独属的乐趣!

项目效果图,仅供参考非交付标准
③最后来看项目高颜值的美学建筑立面!
在缤纷静谧的社区之间,矗立是项目高颜值的建筑立面!
项目建筑融合塔冠形象致敬松江传统建筑屋檐符号,采用温暖的金属色搭配柔和的浅米色,呈现出与众不同的温暖色系,玻璃是更大化的玻璃占比,使视觉上更统一,同时增加室内采光开阔景观视野。 这是 松江主城新的城市天际线,也是业主未来身份的象征!

项目效果图,仅供参考非交付标准

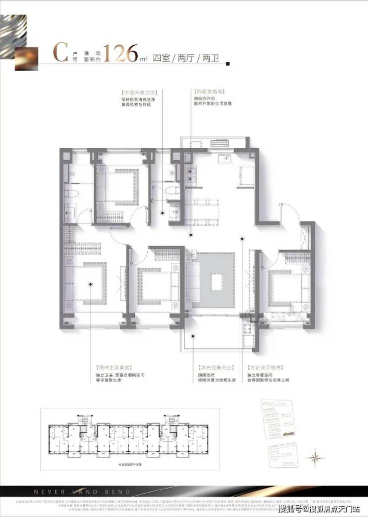
建面约96-126㎡3-4房及建面约135-141㎡叠墅!
项目首开房源中除了前文提到的四叠产品,还有建面约96-126㎡3-4房, 总价约335万起,无疑是刚需客户买进松江主城的好机会!
而且项目的户型设计水准是真的高!我们一个一个来解读:

项目建面约96㎡3房是市面上更受欢迎的飞机户型!
相比现在常见的动静分区房型,飞机户型优势在于:
· 房间分列两侧,互相之间独立,能保证各自隐私不被打扰;
· 实现真正的南北通透,三开间超南+餐客厨阳台中轴一直线;
· 户型内部没有长过道,浪费面积少。
除了格局上设计巧妙,该户型也做到了主卧套房,舒适度和私密性都可圈可点!

项目建面约100㎡3房2卫仍然是优秀的飞机户型,但实现该面积段少见的 大面宽横厅设计!
横向宽厅的好处是可以有更多的南向采光,阳光更充足。此外,给客厅可以弹性软分隔的方式,分出一个开放式书桌的空间,提供了选择性。

该户型做到了同面积段罕见的 四开间朝南+四房设计,南向IMAX级景观面,卧室阳光满溢,功能性也拉满。
一般来讲现在做4房,普遍需要140㎡以上,而招商云澜湾用一个非常经济的面积实现4房2卫一步到位。功能性十足的同时也不失舒适性, 主卧南向大面宽+贯穿南北,主人起居之间沐浴充足阳光,与清风相伴。
项目装标除了必备的三件套, 洗碗机、玄关柜全部是交付标准,户内客餐厅卧室交付时均配置 墙布。主卫额外配置 卫洗丽,呈现的居住品质比起市区项目也不遑多让。

建面约96㎡样板间展示▼





综上所述, 如果看好上海的发展,新的增长极五个新城无疑值得优选选择,其中发展成熟配套丰盛的松江新城更是不可不看!
而现在,招商云澜湾给出的是同板块高层价格直接圆梦墅居的天赐良机,怎么看都没有错过的理由,且买且珍惜!
松江正脉·央企墅质美宅
招商云澜湾火爆在售中
主推建面约96-126㎡3-4房
及建面约135-141㎡叠拼别墅
首期均价仅约48689元/㎡
总价仅约335万起!
招商云澜湾售楼处电话:400-8669-938
