国贸海上原墅(2025 年):首页内容更新,详细介绍楼盘详情,搭配户型与配套全解析

搜狐焦点天门站 2025-10-01 10:55:00
用手机看
扫描到手机,新闻随时看

扫一扫,用手机看文章
更加方便分享给朋友

国贸海上原墅营销中心热线:400-8669-938

国贸海上原墅营销中心热线:400-8669-938

编辑

松江新城 全新墅品

国贸·海上原墅

将推约108-201㎡洋房&叠墅&联排

房地联动价63000元/㎡

实景示范区即将开放,诚邀雅鉴

最新消息!松江区广富林街道,国贸&松江交投广富林项目——【 国贸海上原墅】入市在即!

作为广富林板块的“低密墅区标杆”,以产品力的全维进阶,重新定义松江改善人居天花板!

编辑

项目毗邻广富林文化遗址与G60科创走廊,既承接广富林历史文脉的纯粹基因,又融入松江产城融合的现代活力,周边松江印象城、松江大学城等优质文教氤氲,产业、商业、交通、生态、教育等城市资源汇聚,以根深叶茂的松江人文书写崭新的当代故事。

编辑

对话广富林4000年文明,项目提炼传统建筑形制,以艺术手法创作 “新江南学院派”,向世界展现东方美学的昂扬姿态,汲取陆润玉 “富林十景”的灵感来源,建构丰富景观园林和生活场景,重新定义 “世外桃源、隐谧院落”的生活方式。

编辑

国贸地产的每一次落笔与营造,皆是为时代翘楚兑现“一生之宅”的美好承诺。

海上原墅实景示范区即将开放!

编辑

项目将推售建面约108-124m²6-8层洋房

建面约141-150m²四层叠墅

建面约157-201m²联排

指导价6.3万/㎡

编辑

编辑

编辑

从价格来看,广富林这块宅地指导价达到了6.3万/㎡,不仅刷新松江新城待售新盘价格上限,而且还是五大新城新房价格“天花板”。

事实上,松江新城新房的均价要远高于其他新城。2021年,松江新城新房价格约5.1万/㎡;2022年则上探至约5.54万/㎡;同年,首创和中骏项目均价来到了约5.81万/㎡;2023年,新房价格再次水涨船高,万科和中企项目均价再度上探来到了“6字头”。

目前松江新城万科、龙湖等项目相继售罄,只有中企持续销售。虽然都没有触发积分,不过依仗新城优越的商业、教育、生态资源,这里也是松江居民置换的主要板块。

广富林新宅地,价格虽然是目前板块内最高的,但是容积率只有1.2,是板块内近三年里难得的低密度宅地,洋房、叠加、联排(or合院),整盘均价6.3万/㎡,洋房价格大概率是低于6万的,周边以往的小高层、高层价格逼近6万,广富林新宅地还是有一定的性价比的。

编辑

效果图仅供供参考

尤为引人注目的是,从近2个月二手房成交均价来看,松江区以接近8%的惊人涨幅,与静安区并驾齐驱,共同占据了涨幅榜首的位置。

编辑

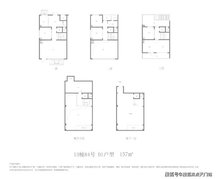
户型图赏鉴

洋房方面,项目主推建面 约108㎡3房和建面约124/145㎡4房。全部是 一梯两户,三开间朝南飞机户型,属于市面上更受欢迎的一类。加上洋房天生的高得房率属性,尺度感和舒适度远超同价位竞品!

编辑

编辑

项目叠墅包含 建面约141㎡上叠和建面约150㎡下叠

而且比起市面上其他叠墅产品, 国贸海上原墅为精装交付,为业主节约了大量的装修成本与时间。

且从户型图上看, 横厅以及内庭院挑空等设计,户型设计更优秀且实际利用率更高。

编辑

编辑

重点聊聊项目的联排产品,要知道在松江新城,叠加已经算珍惜物种,更不用说联排别墅。上一次联排别墅的供应,广富林的合生广富汇,已经在10年之前!

相比大平层“一层不变”的生活, 上下5层的国贸海上原墅的联排别墅生活情境 更立体,更个性化,更私密,更适配大家族多代人居住。

同时别墅户型的面宽、采光、收纳、通透、得房率等都做到尽善尽美,让家里的每一位成员都有更舒适的起居环境。

国贸海上原墅联排别墅设计 约5.65米层高地下室一层客厅挑空约6.45米,还设计了类似 天井内庭院空间(不计入建筑面积),这些灵动空间都能随业主心意改造。并且 三层配备双露台,听风细雨惬意非凡。

编辑

编辑

编辑

土拍回顾及规划

2024年5月28日,上海第二批次土拍,国贸以26.98亿元摘得松江区广富林街道SJC10004单元2街区04-02号地块。

地块四至范围:东至辰晓路,西至龙源路,南至广轩路,北至骏安路。

编辑

项目占地面积约8.03万方,容积率1.2,计容面积约9.64万方;全装修比例50%! 指导价6.3万/㎡,装标要求不低于2500元/㎡!

根据设计方案显示,项目拟建9栋7-8F多层住宅、9栋4F多层住宅、12栋3F低层住宅、1栋8F保障房以及若干社区配套用房组成,共计规划778户(含保障房)。

项目推出洋房、叠墅、联排三种产品,其中洋房约381套,叠墅约132套,联排约162套。

编辑

亮点在于,项目容积率只有1.2,地面无车位,全人车分流,规划地下车位1414辆,小区在西南角规划了下沉式庭院和配套用房,还有公共开放空间。

编辑

国贸地产是世界500强企业国贸控股集团核心成员企业,已在松江深耕超过10年,成功开发了包括国贸海屿佘山、国贸梧桐原、国贸余山原墅等高端住宅产品在内10个标杆作品,深受高端圈层的追捧。如今强强联手必然超越以往,再立标杆!

项目没有采取国贸的标准产品线,而是因地制宜融入广富林文脉,塑造全新的 “新江南学院派”风格建筑。

编辑

外立面方面,项目汲取广富林文化精髓再造东方屋宇, 采用渐暖色石材、银灰色及香槟色铝板和涂料的组合,带来厚重与轻盈的平衡,在彰显文化豪宅的同时又包含国际风骨,整体呈现诗意东方之美。

编辑

社区景观方面,项目以 "富林风华,十景多花园"为核心理念,通过现代设计语言重构《富林十景》的山水意象,将 "山、水、茶、酒、舟、市" 等江南文化符号有机融入空间序列营造 "一步一景,移步异景" 的沉浸式归家体验。

编辑

所谓“无会所,不豪宅”。

高阶会所是圈层进阶的社交场,更是分享志趣和品味的绝佳之处。然而,别说外环外新房,即使是大部分市区项目,也鲜有带高阶会所的;极个别有会所的项目,总价也在3000万级,上车门槛高不可攀。

国贸海上原墅作为广富林溯源之作,打造 诗意会所空间,包含泳池、咖啡厅、私宴厅、下沉庭院、健身房等功能。并且引入 黑松、山石、景墙、草坪等人文自然资源,呈现一处充满国风艺术感的社交场!

编辑

编辑

生活配套

交通方面:项目距离地铁站点较远,最近的也是东侧3公里处的9号线松江大学城站,出行主要靠公交接驳和自驾。所以,项目主打的是低密和稀缺。

商业方面:项目周边涵盖了约60万方(数据来源:上海松江)综合性商业集群——松江万达、开元地中海、五龙广场、马利来广场......还有地标性商业松江印象城一期!更有印象城二期(待建成),一期+二期总商业体量将高达约40万方!

编辑

教育方面:项目周边落座了松江大学城、上海外国语大学松江外国语学校、上海外国语大学附属外国语学校松江云间中学、上海实验学校松江新城分校(规划中),还有华东政法附属学校、上师大附属学校、东华大学附属学校等丰富的教育资源。(注:本资料中学校信息仅作介绍不做入学承诺,项目对口学校最终以教育部门划分为准。)

编辑

医疗方面:附近有上海市第一人民医院南院,为三甲综合性医院,以及养志康复医院、

编辑

生态休闲:项目西侧一路之隔就是广富林文化遗址、广富林郊野公园、直线距离约1km+是辰山植物园,北面直线距离约3km是佘山国家森林公园、月湖雕塑公园等。

编辑

松江新城 全新墅品

「国贸·海上原墅」

将推约108-201㎡洋房&叠墅&联排

房地联动价63000元/㎡

实景示范区即将开放,诚邀雅鉴

国贸海上原墅营销中心热线:400-8669-938

编辑

声明:本文由入驻焦点开放平台的作者撰写,除焦点官方账号外,观点仅代表作者本人,不代表焦点立场。