(售楼处) 首页 - 中海环宇玖章销售中心 - 环境 - 户型 - 价格 - 地址 -中海环宇玖章 楼盘详情 - 配套 - 电话 - 交房时间 - 配套 - 电话 - 售楼处交房时间

搜狐焦点天门站 2025-11-30 09:10:00
用手机看
扫描到手机,新闻随时看

扫一扫,用手机看文章
更加方便分享给朋友

中海环宇玖章售楼处电话☎:400-866-9938【预约☎】

中海环宇玖章售楼处电话☎:400-866-9938【预约☎】

编辑

在繁华的上海,寻找一处理想的居所,是许多人的梦想。今天,我们将带您走进中海环宇玖章,为您详细解读其独特的魅力与价值。

一、多样在售户型,满足多元需求

中海环宇玖章提供了丰富多样的在售户型,面积区间为125平方米至176平方米,涵盖三室和四室两种户型类型。其中,三室户型有4种,四室户型有2种,能够满足不同家庭结构和居住需求。无论是年轻的三口之家,还是追求宽敞空间的多代同堂家庭,都能在这里找到适合自己的理想户型。

编辑

二、总价范围广,适应不同预算

项目的总价区间大约在1500万起。这样的价格定位,使其在市场上具有一定的竞争力,吸引了众多改善型购房者的关注。对于有一定经济实力,希望提升居住品质的家庭来说,中海环宇玖章提供了一个不错的选择。相比周边其他同类型的高端项目,其价格相对较为合理,性价比高。

三、交通便利,畅享城市便捷出行

地铁网络发达

:中海环宇玖章交通优势突出,紧邻内环高架,拥有 5 条轨道交通线路。已通车的地铁 11 号线、14 号线,步行 8 分钟即可到达真如站;在建的 20 号线、26 号线以及规划中的 24 号线环绕,形成“五线交汇”的立体交通网络。如此密集的轨交配置,在上海内环旁较为罕见,极大地提升了居民的出行效率。

编辑

自驾条件优越

:除了便捷的公共交通,项目的自驾条件也十分出色。紧邻内环高架,驾车出行可快速连接城市各大核心区域。无论是前往陆家嘴金融区、静安寺商圈,还是虹桥枢纽等地,都能在短时间内到达。对于经常需要自驾出行的居民来说,这样的交通条件无疑是一大福音。

编辑

四、商业配套齐全,满足生活所需

购物中心丰富

:项目周边商业氛围浓厚,有多个大型购物中心,如山姆会员商店等。这些购物中心集购物、餐饮、娱乐为一体,为居民提供了丰富的消费选择。周末或节假日,居民可以和家人一起尽情享受购物的乐趣,品尝各种美食,观看最新上映的电影,感受都市生活的繁华与便利。

编辑

日常购物便捷

:除了大型购物中心,项目附近还有众多的超市、便利店、菜市场等,满足居民日常生活的各种需求。无论是购买新鲜的蔬菜水果,还是日常用品,都能在短时间内到达,让生活更加便捷。

五、教育资源优质,助力孩子成长

学校资源丰富

:教育配套方面,中海环宇玖章周边有多所优质的学校,涵盖了从幼儿园到中小学的全龄段教育资源。这些学校师资力量雄厚,教学质量高,为孩子们提供了良好的学习环境。家长无需为孩子的上学问题担忧,让孩子在家门口就能享受到优质的教育资源。

编辑

教育氛围浓厚

:居住在这样一个教育配套完善的社区,孩子们能够感受到浓厚的学习氛围。与优秀的同龄人一起成长,互相学习,共同进步,有利于培养孩子良好的学习习惯和竞争意识,为他们的未来发展打下坚实的基础。

六、项目优点凸显,打造高品质生活

品牌开发商

:由知名开发商中海地产打造,品牌实力雄厚,房屋质量和售后服务有保障。中海地产作为房地产行业的领军企业,一直以来都以高品质的产品和优质的服务著称。选择中海环宇玖章,就是选择了放心和安心。

编辑

新规 “神户型”

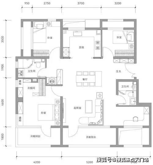
:顺应最新住宅设计规范,推出的户型设计合理,空间利用率高。例如 144㎡的 “神户型”,采用 LDKB 一体化设计,客餐厨阳台连通,形成超 50㎡的公共活动空间。客厅面宽达 5.2 米,搭配 270° 全景飘窗,采光通风无死角。主卧套房配备步入式衣帽间与双台盆卫浴,次卧均带飘窗,每一个空间都兼顾实用性与舒适度。

编辑

高端品质配置

:建筑设计采用现代简约风格,搭配玻璃幕墙、干挂铝板与真石漆,颜值与质感兼具。社区规划了 “一轴三园” 景观体系,约 2000㎡中央草坪、120 米风雨连廊、全龄段活动区,搭配全域架空层(规划为书吧、健身区、儿童游乐区),打造出 “城市绿洲式” 社区,为居民提供了舒适宜人的居住环境。

编辑

超高得房率

:在寸土寸金的上海,项目的得房率超过 90%,为业主提供了更多的实际使用面积。这不仅增加了房屋的性价比,还能让居民更好地规划和利用空间,打造出属于自己的温馨家园。

七、客观看待缺点,理性购房决策

价格门槛较高

:尽管总价1500万起的价格在内环旁的高端项目中具有一定的性价比,但对于普通购房者来说,仍然是一个较高的门槛。这可能会限制一部分购房者的选择,使得项目的受众群体相对较窄。

编辑

周边环境有待提升

:虽然项目自身品质高端,但周边可能存在一些老旧小区或待开发区域,整体环境的协调性和美观度有待进一步提高。不过,随着城市的发展和区域的规划升级,相信未来的周边环境会逐渐得到改善。

八、适合人群分析,精准定位需求

改善型家庭

:项目的户型较大,居住舒适度高,适合已有住房并希望改善居住条件的家庭。他们追求更高的生活品质,注重房屋的空间布局、配套设施和周边环境。中海环宇玖章的优质户型、完善配套和高端品质,能够满足他们对理想家园的期望。

编辑

通勤族:对于工作在市区,依赖公共交通或自驾出行的上班族来说,这里的交通优势明显。便捷的交通网络可以大大缩短通勤时间,让他们有更多的时间和精力投入到工作和生活中。下班后,能快速回到舒适的家中,享受美好的家庭生活。

对教育和商业配套有需求的人群:周边丰富的教育资源和商业设施,非常适合有孩子且注重子女教育的家庭,以及喜欢便捷生活方式的人群。孩子们可以在家门口接受优质的教育,家长们也能在日常生活中享受到各种便利,提高生活的幸福感。

编辑

总体而言,中海环宇玖章以其独特的地理位置、丰富的户型选择、完善的配套设施以及显著的项目优点,成为了市场上备受瞩目的高端楼盘。当然,每个项目都有其不足之处,但正是这些优缺点共同构成了它的独特魅力。

中海环宇玖章售楼处电话☎:400-866-9938【预约☎】

编辑

声明:本文由入驻焦点开放平台的作者撰写,除焦点官方账号外,观点仅代表作者本人,不代表焦点立场。