售楼处官方预约电话:400-1787-138☎☎☎如有问题可来电咨询,预约销售专员,一对一为您服务! 
 
 
   编辑 
 
  
  
 
 
 
   上海北中环 7号线场中路站旁 
 
 
   特别稀缺城市联排别墅! 
 
 
   「大华梧桐院」实景现房! 
 
 
   约139-142㎡叠墅&158-165㎡联排 
 
 
   均价9.18万/㎡! 总价1300万起 
 
 
   样板房线上火热预约中! 
 
 
   编辑 
 
  
  
 
 
 
   该项目位于宝山区大场板块,地处界华路和场中路交界处,靠近大华老镇嘉年华,旁边就是地铁7号线场中路站。 
 
 
   编辑 
 
  
  
 
 
 
   大华·梧桐院位于宝山大场镇核心,与中环直线距离仅约1.4公里,是中环旁少有的低密纯别墅地块。 
 
 
   编辑 
 
  
  
 
 
 
   这里南临静安大融城、大宁国际两大商圈,向西是南大智慧城+桃浦智创城,近享高能级配套资源。随着上海北中环发展带的蓝图逐一兑现,大场镇核心已然成为中环旁唯一的成片待开发稀缺区域。 
 
 
   编辑 
 
  
  
 
 
 
   位于上海市中心中环旁边, 容积率仅约0.75的纯别墅社区——大华·梧桐院无疑是再难复刻的藏品级住宅,产品价值毋庸置疑! 
 
 
   编辑 
 
  
  
 
 
 
   大华·梧桐院由27栋联排+4栋叠拼组成,是中环旁仅有的高阶纯粹臻墅,目前已实景呈现,占地面积约5.19万㎡,建筑面积约2.29万㎡,车位配比1:2.3。 
 
 
   编辑 
 
  
  
 
 
 
   社区整体设计借鉴江南园林建筑的设计理念,确保每一栋建筑都能拥抱充足的阳光与四季更迭的景致。 
 
 
   编辑 
 
  
  
 
 
 
   “碧梧、花影、秋月、玉阶、闲庭”五大院落设计,通过景观轴线串联,演绎优雅别致、移步异景的雅居格调。 
 
 
   编辑 
 
  
  
 
 
 
   第一院:花影—营造穿林荫,夹道开合有序的空间; 
 
 
   第二院:秋月—穿过林荫峡谷,忽遇开阔视野空间,叠石气势恢弘,引人深入; 
 
 
   编辑 
 
  
  
 
 
 
   第三院:玉阶—枯山水景观让人豁然开朗,点式水景探水而出,倒影天空,人仿若翱翔天镜; 
 
 
   第四院:碧梧—叠石、夹道若隐若现,忽现建筑的模样,峰回路转又见另一番天地; 
 
 
   第五院:闲庭—无边界的景观体验空间,让人独处,寻觅属于自己的梧桐树; 
 
 
   编辑 
 
  
  
 
 
 
   整个社区以经典的错落有致的巷院布置形式,形成多个独立的居住组团和围合的景观空间,辅以景观隔离,营造奢雅兼具的江南人文邸院。 
 
 
   另外,精装地下车库做的非常精致。 
 
 
   编辑 
 
  
  
 
 
 
   编辑 
 
  
  
 
 
 
   编辑 
 
  
  
 
 
 
   编辑 
 
  
  
 
 
 
   最新消息!上海北中环 7号线场中路站旁,特别稀缺城市联排别墅「大华梧桐院」约139-142㎡叠墅&158-165㎡联排,仅141套实景现房;均价9.18万/㎡!1300多万直接实现都市别墅梦!售楼处线上火热预约中! 
 
 
   编辑 
 
  
  
 
 
 
   一房一价表如下: 
 
 
   编辑 
 
  
  
 
 
 
   编辑 
 
  
  
 
 
 
   编辑 
 
  
  
 
 
 
   编辑 
 
  
  
 
 
 
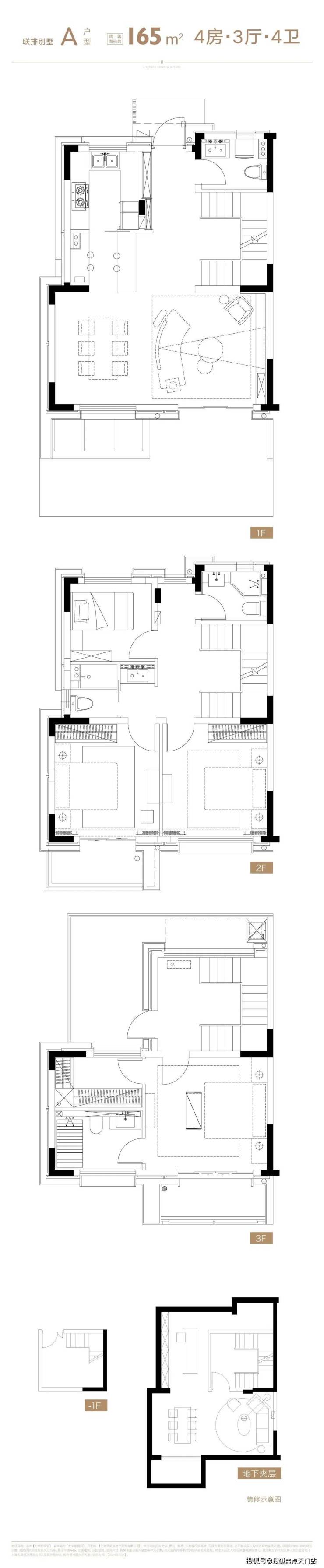
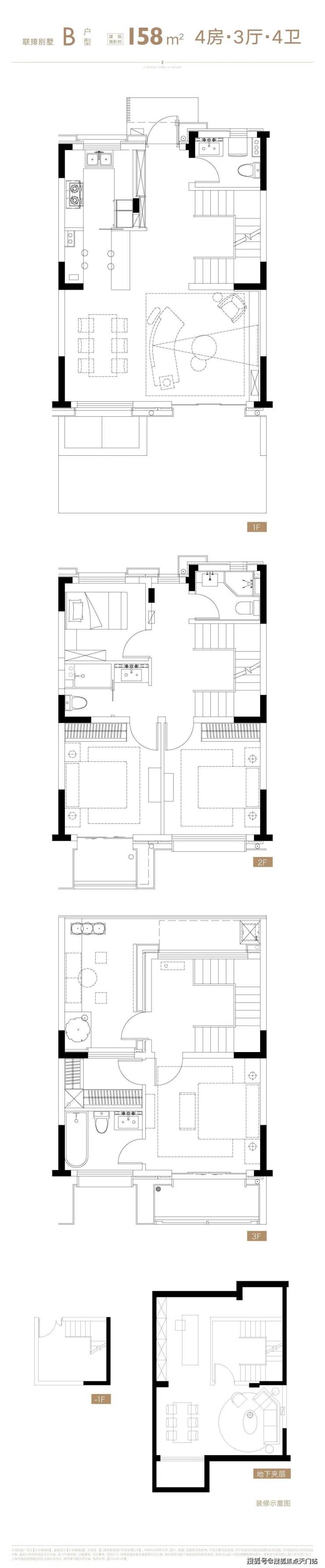
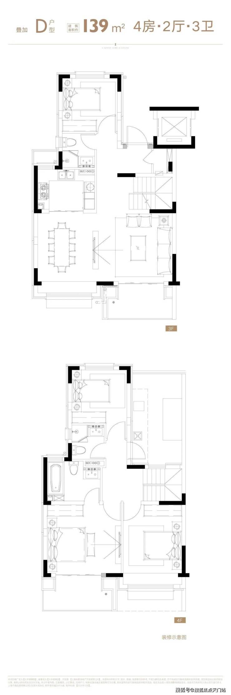
   最新户型图如下: 
 
 
   编辑 
 
  
  
 
 
 
   编辑 
 
  
  
 
 
 
   编辑 
 
  
  
 
 
 
   编辑 
 
  
  
 
 
 
   编辑 
 
  
  
 
 
 
   项目主力有建面约158㎡、165㎡联排别墅户型,地上三层+地下空间,设置 地下采光井+星空露台等,真正做到了 独门独户、有天有地、超享空间! 
 
 
   联排皆是 独门独户,入户设置在建筑主体北侧,门扇精美蚀刻工艺,尽显雅奢品质。 
 
 
   编辑 
 
  
  
 
 
 
   一层是会客区,大平墅的空间感,大横厅设计,客餐厅相对独立,将生活的奢度打开! 
 
 
   二层、三层是居住区,所有房间空间尺度全部到位,三层是一整层主卧套房,完美覆盖几乎所有家庭结构! 
 
 
   地下空间非常奢阔,设置有夹层,可以根据主人喜好,定制成如健身房、酒窖、影音室、台球房等,任凭想象。 
 
 
   联排别墅实体样板间部分实拍: 
 
 
   编辑 
 
  
  
 
 
 
   编辑 
 
  
  
 
 
 
   编辑 
 
  
  
 
 
 
   编辑 
 
  
  
 
 
 
   编辑 
 
  
  
 
 
 
   编辑 
 
  
  
 
 
 
   编辑 
 
  
  
 
 
 
   编辑 
 
  
  
 
 
 
   编辑 
 
  
  
 
 
 
 
   项目叠墅户型有建面约142㎡下叠,建面约139㎡上叠。 
 
 
 
   项目叠墅摒弃市场上5-6层叠加的困局,设计更大化私密尊享空间。 
 
 
   编辑 
 
  
  
 
 
 
   下叠户型4房2厅3卫,一层会客区,二层居住区,附带地下空间,可以根据主人喜好,定制成如健身房、酒窖、影音室、台球房等,任凭想象。 
 
 
   上叠户型4房2厅3卫,三层会客区,四层居住区,阳台+露台+飘窗设计,附加空间非常大,在别墅类产品中实属罕见! 
 
 
   附样板间实景图▼ 
 
 
   编辑 
 
  
  
 
 
 
   编辑 
 
  
  
 
 
 
   编辑 
 
  
  
 
 
 
   四连排的别墅含有地下室B1,B2直达车库。 
 
 
   编辑 
 
  
  
 
 
 
   编辑 
 
  
  
 
 
 
   编辑 
 
  
  
 
 
 
   项目距离7号线场中路站直线距离约700米,在步行快速可达的范围内。自驾方面,项目与中环直线距离仅约1.4公里,与南北高架直线距离约2.5公里,出行非常方便。 
 
 
   编辑 
 
  
  
 
 
 
   项目毗邻老镇商圈大华时光里,集商业、办公、公寓、文化艺术等多重功能于一体的城市综合体,开启一站式漫享的家庭休闲时光。 
 
 
   出门即享约2万㎡瑞华美食街(建设中),集休闲、商务、宴会、特色餐饮、精品酒店等于一体的大型高端餐饮综合体。 直线约700米还有宝山日月光中心。 
 
 
   编辑 
 
  
  
 
 
 
   商业配套方面:近邻老镇商圈大华时光里,提供一站式的休闲购物体验。同时,静安大融城、大宁国际等商圈环绕,满足您的日常生活需求。 
 
 
   编辑 
 
  
  
 
 
 
   瑞华美食街的建设,将为您带来约2万㎡的高端餐饮综合体,享受美食与休闲的完美结合。 
 
 
   教育资源方面:项目周边名校云集,如陈伯吹实验幼儿园、华师大宝山实验学校等,提供全龄化教育配套,为孩子的成长提供坚实保障。 
 
 
   编辑 
 
  
  
 
 
 
   医疗资源方面:大华梧桐院周边拥有宝山区大场医院、上海交通大学医学院附属仁济医院宝山分院等优质医疗资源,为您和家人的健康提供全方位保障。 
 
 
   编辑 
 
  
  
 
 
 
   生态资源方面:项目靠近约20公里的走马塘海派生态水岸,以及大宁公园、桃浦中央绿地等,为您的生活增添一抹绿色,享受都市中的宁静与活力。 
 
 
   编辑 
 
  
  
 
 
 
   编辑 
 
  
  
 
 
 
   1300多万实现都市别墅梦!「大华梧桐院」约139-142㎡叠墅&158-165㎡联排! 
 
 
   售楼处官方预约电话:400-1787-138☎☎☎如有问题可来电咨询,预约销售专员,一对一为您服务! 
 
 
   编辑 
 
  
  