一文读懂(建发海阅首府)优缺点!分析一下建发海阅首府值得买吗?(内附图文解析)
扫描到手机,新闻随时看
扫一扫,用手机看文章
更加方便分享给朋友

如有问题欢迎来电咨询,专业一对一热情服务,让您用专业眼光去买房。
建发,将带着TA的天赋和产品力“卷”入上海目前最火热的产品赛道,推出其海派风格的首作
普陀中环桃浦板块
11号线+15号线+26号线(规划中)旁
约95-103㎡3房
全精装五恒科技住宅
均价8.1万/㎡
小编看过的新房项目,没有一千也有八百了,几乎大部分项目都专注于用昂贵的材质来衬托所谓的品质。
但和无数城市购房菁英交流下来,我发现大家其实已经不再沉溺于炫耀式消费,深层次的传统、文化、艺术才是真正的奢侈品。
正如博闻强识的新东方老师能在直播红海中异军突起,建发首府通过传承海派文化,融合海派技艺,展现的极高浓度的海派风格,反而更让人眼前一亮!
远看首先映入眼帘的是项目约10米挑高 ,以石材+玻璃穹顶打造的门头,整体形制神似外滩汇丰银行大厦,细节装饰又有外滩上海海关大楼的影子,海派建筑沉稳的气质 扑面而来,让小编一秒回到外滩万国建筑群。
效果图
效果图
对标半岛酒店的豪华落客仪式,旨在为业主们营造出五星级酒店般的归家体验,流露出尊贵与豪华的同时,让业主在归家的瞬间便能感受到家的格调。
项目果图示意图
继续向里走,廊道内可见经典的石材立柱、拱形的吊顶、PRADA荣宅的手绘彩玻、繁花的地面拼花等用材工艺,移步异景间,是别样的摩登魅力。
项目实拍
目光所及之处,各种精雕细琢的工艺、用材,则见不惜成本、兼容并蓄的匠艺。上海海鸥丽晶酒店同款的巴西金石材、储存量较少的玻利维亚蓝石材、华山公寓的掐丝珐琅工艺,在展现海派风情的同时,彰显奢华的质感。
项目实拍
在花园中闲适散步或者游赏之时,既有时光交错的故事感,又能体验到中西合璧、优雅艺术的生活场域.
灵感择取上海著名的10处海派名园,每一处花园皆属于自己的气质与故事,对经典作品进行创新演绎,如借鉴百乐门的入户大厅,充满诗情画意的幸福里花园、源自上海爱神花园的爱神园……
项目示范区爱神园实景图
项目示范区沪里茶弄实景图
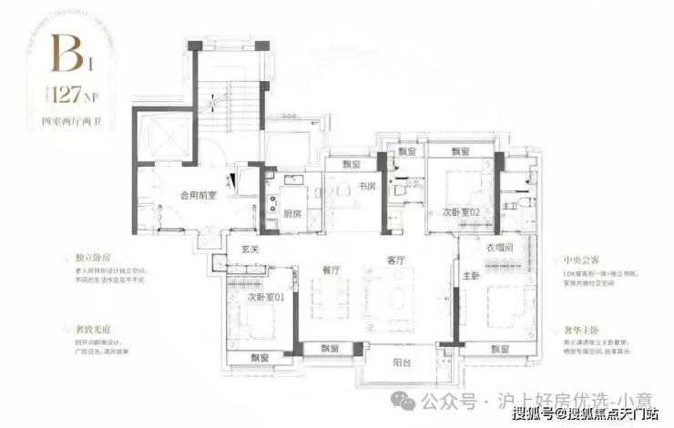
项目首开建面约100-141㎡3-4房,二期还有少量103和141㎡3-4房,三期收官之作即将认筹!
项目三批次加推建面约96㎡3房,二期在售建面约103㎡3房和建面约124㎡大3房,皆为全横厅设计+多飘窗设计+豪华主卧设计,堪称神户型,每一平米都以超越尺度的空间,将海派生活演绎得淋漓尽致。
户型分布示意图
103㎡该户型同样是三开间+大横厅的布局,但主卧尺度更进一步,能够隔出一个大衣帽间和化妆间!全屋享有5个飘窗+南向观景阳台,连餐厅区域也自带南向飘窗,大大提升居住舒适度!
交付标准上,项目不仅品牌配置极高,比如标配德国AEG品牌厨具四件套,而且将拼花和石材工艺融入其中,整体呈现的室内高定品质,对标上海10万+的豪宅也不为过。
在上海,智慧住宅这一关键词是大势所趋。为迎合高净值人群对健康住宅的需求,项目精妙地将“恒温、恒湿、恒氧、恒洁、恒静”的五恒科技系统融入其中,打造“智慧五恒科技+超低能耗住宅”!
以室温为例,当18-25℃时人体感觉颇为舒适,普通建筑存在室内热量或冷气向外快速流失的现象,无法以低功耗保持稳定,需要开启空调、暖气等设施,既耗能又耗电。项目顶部配置毛细管,完成热能传输,达到制冷或制热的效果,将室内温度维持在人体舒适温度,实现四季如春的效果。
以室内空气质量为例,该项目采用24小时全天候新风过滤与三重净化系统,能够有效地清除空气中的PM2.5、细菌等有害物质。可以预见,业主未来只要踏入家门,便能享受到清新舒适的呼吸环境,这样的“温馨港湾”才是家的理想状态。
声音环境对居家体验同等重要。像一般商业与居民混合区的环境噪声均值为50分贝。项目甄选三玻两腔LOW-E中空玻璃、专项安装中置百叶等配置,能够大幅降噪,营造安宁的居住氛围。
建发·海阅首府这些用高科技实现高品质室内居住体验的配置,旨在为业主营造更舒适的生活环境、更健康的生活方式,皆为超越区域市场标准的呈现。未来,这样的五恒科技住宅,更能经得起时间考验,也更加保值。
先来看主力户型具体分析:
①建面约100㎡3房户型:
市面上备受认可的飞机户型,主次卧+客厅三开间朝南,让业主起居之间沐浴更多阳台。客餐厅阳台一体化,公区方正无比,视野开阔,尺度阔绰,并且更大程度的较少了过道等面积浪费。
②建面约103㎡3房户型:
比起市面上普遍的三开间朝南动静分区户型,该户型至少有3大爆点:
第一、三开间朝南是基础,大尺度横厅才是采光的杀手锏。而这样的巨幕面宽在够住的情况下可以成为超大公区,也随时可以隔出书房或其他功能间适配更长家庭周期!
第二、海量灵动空间,全屋5个飘窗+南向观景阳台,提升性价比的同时也增强户型对外的延展性。
第三、超豪华主卧,自带衣帽间和卫生间,私密性和舒适度双爆表!
③建面约127㎡4房户型:(售磬)
建面约127㎡直接进阶4房,功能性拉满,适配当下越来越多的二胎或三代同堂家庭。
同样是南向横厅设计,并拉伸至4开间,巨幕视野,采光性能爆表!
主卧豪华套房设计,也有足够的收纳空间,实现主卧小家化!
建面约127㎡户型样板间实景抢先看:
④建面约141㎡4房户型图:(售磬)
目前中环千万级预算能买到的至高舒适度的产品,无论是功能性还是尺度感双封顶!
格局上延续了四开间朝南的超大面宽,并且客餐厅厨房一体化公区方正阔绰,足以盛放家族聚会!
主卧超大尺度套房设计,自带270°转角L型飘窗,实现无界视野和优异采光,躺在床上也能享受环幕赏景!
建面约141㎡户型样板间实景抢先看:
据悉,项目户型不仅精装配置极高,选用AEG等德国一线品牌,还有拼花和石材工艺融入其中,与众不同的海派气质全市少有!
更重要的是,为了迎合城市菁英们对健康住宅的需求,项目还引入了智慧五恒分户式科技系统,打造“智慧五恒科技+超低能耗住宅”。
· 恒温:项目在居所顶部配置了直径约4.3mm的毛细管,完成热能传输,达到制冷或制热的效果,实现四季如春的效果;
· 恒湿:无论季节如何变化,室内空气都能处于一个适宜的水平!
· 恒氧:24小时新风过滤,让业主随时随地呼吸清新空气;
· 恒洁:三重净化系统,有效过滤空气中的PM2.5、细菌等,为业主的健康保驾护航。
· 恒静:项目配置三玻两腔LOW-E中空玻璃,专项安装中置百叶、防水透气膜、防水隔汽膜,有效隔热、隔音,保证安静舒适的居住环境。
建发首府的科技智宅也是建发第一次诚意满满的品质呈现,升级的不仅是质感,还有家庭生活的安全与舒适,消解的是居者日后长久的后顾之忧。

建发提炼上海的标志性IP玉兰花,并结合外滩中心的“莲花冠”形象,赋予项目中央玻璃顶一种全新的花瓣形态。结合三段式经典建筑立面,主体立面以竖向线条为框架,搭配铝板等,典雅又不失大气。
作为中式项目闻名的建发,在打造海派风时,仍然能感受到浓浓的中式韵味。高约10米,宽约20米的门头,彰显出万国来朝般的大气。
项目融汇中西门庭礼序与造园理念,以“四进、七境、十园”,营造重重门庭构筑的礼序空间与游走自然的四时花树,续写上海传奇花园的时间故事。
四进:融合中西的归家礼序,进庭、进堂、进廊、进院,由外而内层层深入私属领地的恭迎礼仪
七境:集合东方与西方美好愿望的植物,曾经绽放于海派园境中的花树,穿过时间绽放全新的自然之园的诗意境界
十园:择取上海著名的10处花园,留取记忆重塑10处传承经典的复兴之园
项目位于普陀桃浦板块,周边近享双轨交,直线距离中环仅约1.5公里!
交通配套:项目周边拥有地铁11号线和15号线2条高能级地铁,以及规划中的地铁26号线“环中环地铁线”。项目直线距离15号线祁安路站约500米(数据来源:百度测绘);直线距离古浪路站约550米(数据来源:百度测绘)。
地铁15号线同时被誉为“轨交版南北高架”,沿线北起宝山南至闵行,途径静安寺、环球港等核心商圈。同时,地铁15号线也被誉为“科创黄金线”,线路南北串联全程途经9个高校(10个校区)、4座公园、3个国家级科创园区,2大高铁枢纽。
项目直线26号线(规划中)不到500米(数据来源:百度测绘)。
地铁26号线(规划中)被誉为“黄金中环线”,沿线途径大宁、金桥、张江、三林滨江、徐汇、长宁等多个中环标志性板块。

商业配套:周边目前有建面约5000㎡桃浦星品荟社区型商业以满足日常生活需求,引入了餐饮、休闲、健身、教育等多种业态品牌。
另外,桃浦智创TOP园内的桃浦湾“TOP ONE”作为新晋商业体,总商业面积约2.5万方。
项目东侧直线距离大型商业体宝山日月光约3km左右;直线距离约5km范围内还有中海环宇城、高尚领域、大融城、红星美凯龙、宜家等大型商业。

教育配套:直线距离约1km范围内文达学校、上海外国语大学附属普陀实验学校、上海古浪博士娃幼儿园等。

医疗配套:项目直线距离约2km范围内有三级专科上海德济医院、天佑医院。

如有问题欢迎来电咨询,专业一对一热情服务,让您用专业眼光去买房。
声明:本文由入驻焦点开放平台的作者撰写,除焦点官方账号外,观点仅代表作者本人,不代表焦点立场。
