越秀·外滩樾售楼处预约热线:400-118-3159☎️☎✅✅✅《售楼处已认证》
虹口北外滩 低密风貌别墅
由越秀地产+临港集团联合打造
越秀临港虹口156街坊风貌别墅
【越秀·外滩樾】纯别墅社区
编辑

点击输入图片描述(最多30字)
风貌之上 世界堂前
建面约238㎡—338㎡
总价约4000-9000万
海派院墅三里外滩
立传别墅从你开启传承展厅已开放
70年产权住宅 容积率:约1.3
MODEL ROOM RESERVATION
预 约 看 实 房
进入贵宾预约看房通道
诚邀品鉴:400-118-
编辑

点击输入图片描述(最多30字)
编辑

点击输入图片描述(最多30字)
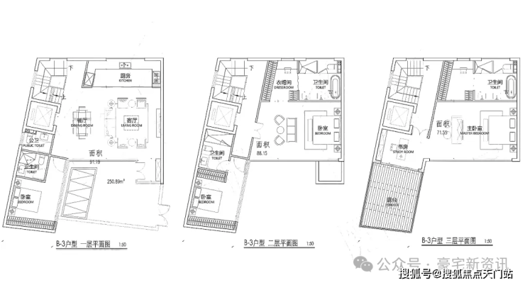
户型图如下:
(过程稿仅供参考,最终以实际为准)
236.25㎡A户型:
编辑

点击输入图片描述(最多30字)
239.13㎡B户型:
编辑

点击输入图片描述(最多30字)
239.13㎡B户型:
编辑

点击输入图片描述(最多30字)
C户型:
编辑

点击输入图片描述(最多30字)
291.42㎡D户型
编辑

点击输入图片描述(最多30字)
编辑

点击输入图片描述(最多30字)
编辑

点击输入图片描述(最多30字)
编辑

点击输入图片描述(最多30字)
编辑

点击输入图片描述(最多30字)
编辑

点击输入图片描述(最多30字)
编辑

点击输入图片描述(最多30字)
编辑

点击输入图片描述(最多30字)
编辑

点击输入图片描述(最多30字)
编辑

点击输入图片描述(最多30字)
编辑

点击输入图片描述(最多30字)
编辑

点击输入图片描述(最多30字)
【传奇的1.5公里 启航外滩百年世界史】
项目所在地北外滩,是百年前上海的发源地。作为上海开埠后第一座码头的诞生地,北外滩率先“开眼看世界”,海纳万国文化风潮,众多此后影响中国的创举在此诞生,是上海最早的“十里洋场”。
编辑

点击输入图片描述(最多30字)
【世界的1.5公里 再立世界上海新传】
傲立“一江一河”交汇处(直线距离黄浦江约1km),未来将打造成为彰显上海城市核心竞争力的黄金水岸和具有国际影响力的世界级城市会客厅,出入之间,相逢城市高阶未来。
编辑

点击输入图片描述(最多30字)
【上海新封面】黄金三角顶序规划
北外滩,与外滩、陆家嘴并称为上海的“黄金三角”。将以2座陆家嘴的商务体量规划,新天地2.0生活圈打造,成为上海跃升世界舞台的“中心发力”新引擎。
【经济中心】全球化核心腹地
北外滩总开发面积约840万方,自陆家嘴之后上海最大开发区域,未来将聚焦资产管理、金融科技、绿色航运等上游产业,打造“运作全球的总部城”。
编辑

点击输入图片描述(最多30字)
【极核中心】顶奢商业新地标
约1.5KM内拥享北外滩商圈、外滩商圈、陆家嘴商圈,华贸奢侈品品牌之家、白玉兰广场等潮奢集萃,未来上海顶奢商业新地标,举步间繁华尽拥。
编辑

点击输入图片描述(最多30字)
编辑

点击输入图片描述(最多30字)
编辑

点击输入图片描述(最多30字)
一城中轴 半壁越秀:打造广州地标IFC、城建大厦、维多利广场、越秀金融大厦、财富广场、市长大厦、广州环贸中心(ICC)等诸多重量级作品。
全球地标打造者:广州国际金融中心(IFC)高约440.75米,建成之时为全球10大超高层建筑之一,获得国际建筑界奥斯卡“英国菜伯金奖”。(此外,中国仅北京“鸟巢”和上海世博会英国馆荣获该奖项。)
豪宅基因始终传承:打造“广州第一富人区”二沙岛,屹立广州顶豪之列,整个二沙岛9个项目,有7个项目都是越秀开发,其中越秀宏城花园单价25万-40万/㎡,总价1-6亿,一房难求。
编辑

点击输入图片描述(最多30字)
风貌之上 世界堂前
建面约238㎡—338㎡
总价约4500-9000万
海派院墅 三里外滩 立传别墅
70年产权住宅 容积率:约1.3
从你开启传承
MODEL ROOM RESERVATION
预 约 看 实 房
售楼处电话400-118-3159