中海·海上和集售楼处电话:400-8669-938
编辑
编辑

【基础信息】
项目区域:杨浦区-内环内
开发商:中海地产
面积区间:约1000-1300㎡独栋
价格区间:6000万左右
布局:1-5层,附赠1楼花园/B1地下室/退台花园/屋顶露台
物业公司:中海物业
物业费:12元/m²
产权年限:50年
交付标准:毛坯交付
交付时间:现房,款清交付
属性:适用于企业办公、商业经营、行政公馆、私人会所等;
中海·海上和集
中海·海上和集项目由大型央企中海集团开发运营,总建筑面积约8.8万平方米。建筑采用现代简约风格,外立面以真石漆结合铝板线条打造质感肌理,社区内实现约35%绿化覆盖率,形成立体景观体系。社区内嵌5000㎡复合商业与900㎡邻里服务中心,呼应周边新华医院(三甲)、和平公园等配套,构建五分钟生活圈。
编辑
编辑

周边客流分析
商务流量:项目紧邻北外滩中央活动区(CAZ),该区域近五年累计引进亿元级投资项目335个、总投资超3000亿元,集聚荷兰全球人寿、法国东方汇理等跨国企业总部
枢纽流量:项目坐拥“五轨交汇”枢纽优势:步行400米至8号线鞍山新村站、600米覆盖12号线江浦公园站,4/10/18号线环伺,形成10分钟直达陆家嘴、20分钟贯通浦西核心的通勤圈
产业人口:周杨浦滨江南段集聚哔哩哔哩、美团等互联网大厂,五角场周边18万大学生构成“永续年轻流量池”
编辑
编辑

地铁交通
地铁:8号线鞍山新村站,4号、12号、18号线环绕
主干道:北横通道、内环高架桥、大连路
距虹桥枢纽约25KM,约40分钟达
距浦东机场40KM,约45分钟达
商圈配套
内嵌5000㎡自持复合商业及900㎡邻里中心;教育医疗资源密集,1公里内汇聚打虎山路第一小学、新华医院(三甲);步行10分钟可达和平公园、江浦公园,北侧500米即控江路商圈(旭辉MALL、紫荆广场等),1公里直达55万方瑞虹天地综合体,2公里覆盖北外滩来福士、白玉兰广场
编辑
编辑

项目基本信息
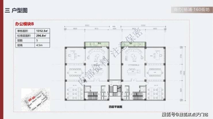
目前在售:23#号,25#号
面积:1048㎡、1284㎡
产权性质:办公产权可通燃气
附赠:一楼花园、B1地下室、露台花园、带专属车位
地上5层+地下1层,地上层高4.5米,地下层高5.25米。
编辑
编辑

户型图
编辑
编辑

编辑
编辑

编辑
编辑

编辑
编辑

编辑
编辑

编辑
编辑

编辑
编辑

编辑
编辑

实景拍摄
编辑
编辑

编辑
编辑

编辑
编辑

编辑
编辑

编辑
编辑

编辑
编辑

中海·海上和集售楼处电话:400-8669-938
编辑
编辑
