2025 年上海 华润外滩瑞府售楼处电话: 华润外滩瑞府楼盘测评、房价及户型配套解读
扫描到手机,新闻随时看
扫一扫,用手机看文章
更加方便分享给朋友

如有问题欢迎来电咨询,专业一对一热情服务,让您用专业眼光去买房。
最新消息:虹口北外滩【外滩瑞府】全新加推!项目占据北外滩+瑞虹新城双核心商圈!首开日光,深受广大客户的喜爱!二批次加推建面约124-330㎡3-5房,总价1545万起!全新样板间已开放!线上提前预约!
8.25楼市新政前脚发布,就在这个“金九”,外滩上演了一场现象级的热销。首开119套房源全部售罄,去化率100%,劲销24.8亿+。
项目价值体现
外滩瑞府为什么能够这么火?原因就藏在这三重价值密码里——
1、上海买房,地段永远是核心要素!
外滩瑞府地处世界级黄金三角(外滩+陆家嘴+北外滩),直线距离外滩仅1公里,上海资产浓度最为密集的区域,坐拥九龙路滨水空间+亿级风貌带红利,链接全上海的高净值人群!
2、二批次过会价格14.83万/㎡,堪称福利价!
当下上海核心区的房价早已高不可攀,黄浦冲破20万/㎡、北外滩即将站到20万/㎡、虹口下游板块16.6万 /㎡,身处外滩上游1公里生活圈的外滩瑞府,二批次加推均价仅14.83万/㎡!这种机会,错过再无!
总价上,2200万起在老静安、徐汇、虹口等只能买3房,这里却能买到建面约161㎡一步到位的4房产品!
3、产品力问鼎!顶豪级公区和装标+平权化舒适三四房,在市区豪宅中开辟居住新高度
作为华润置地落子上海的巅峰之作,项目邀请全球奢华设计天团:GOA大象设计(代表作杭州桃花源)、渡边智昭(翠湖天地、汤臣一品主创)、泰国TROP事务所、吴滨(无间设计)与李益中等联袂设计,顶豪级定制化基因!
户型设计上,项目主力户型约123-240㎡的王炸全户型几乎无竞品,同时满足尺度平权+总价可控,堪称内环内的绝版产品!
毫无疑问,外滩瑞府是各维度都领先了市区的作品!

项目基础信息
上海这座城市,一直处在生长的状态,几十年来,城市更新如火如荼。新天地、苏河湾,凭借石库门的新生完成城市更新,房价走出了独立行情,成为楼市神话。

【外滩瑞府】位于虹口北外滩板块,项目正处于城市更新的风口之上——约7000㎡风貌底盘,未来将引入社区咖啡馆、瑞府邻里客厅/社区方式综合店、便民综合体、社区会客厅、社区公共服务中心等,完善便民配套,届时城市界面会迎来大焕新!
外滩瑞府的顶级设计天团阵容:
建筑:GOA大象设计(代表作杭州桃花源)以“垂直历史”理念重构海派风貌美学;
公区:渡边智昭(翠湖天地、汤臣一品主创)亲制架空层与会所,植入艺术策展空间;
景观:泰国TROP事务所融合江南水系与爵士乐律动,打造“声景共生”庭院;
室内:吴滨(无间设计)与李益中联袂,以安缦酒店美学定制精装系统;
每一位都是行业内的顶尖力量,共同为项目的高端基因保驾护航!

内外设计全面升级!城市封面焕然一新
垂直历史”理念重构海派风貌美学: 外立面上,高层基座溯源石库门建筑精髓,复刻经典拱券符号;中段以通透玻璃幕墙搭配流线型金属线条,营造国际前沿的现代质感;顶部“冠冕”造型,进一步升华昭示性。

内环罕见的“阳光平权”:通过“放射状黄金倾角” 楼栋布局,破解高密度上海城区采光难题—— 首开2#楼冬至日每户日照达 4.5 小时以上,全楼栋无 “采光死角”;2 号楼低区能赏社区花园四季流转,中高区则将陆家嘴天际线、北外滩未来图景尽收眼底。

亿元级印象派园林:邀请国际景观大师Pok Kobkongsanti 操刀,突破市区项目常见的「兵列树阵式」布局,通过建筑楼体的精密偏转,形成罕见的围合式社区形态。把印象派光影化作实景 —— 草坪复刻马奈笔下日光,转角繁花呼应雷诺阿花园,水边光影倒映莫奈睡莲;六大主题花园串联全域风雨连廊,晴雨皆能漫步赏景,艺术从此不是画廊里的画,而是脚下的路、眼前的景。


过程方案示意图,以实际交付为准

过程方案示意图,以实际交付为准

过程方案示意图,以实际交付为准
渡边智昭的“塔尖会所革命”:由汤臣一品设计师渡边智昭打造泛会所,打破“集中式大会所” 的刻板:独立“室内外双幕水剧场”带来视觉震撼,四栋塔楼下设四大主题空间。

2号楼下的“温莎廊吧”: 复古砖红墙面勾勒出海派风情的典雅轮廓,叶脉纹大理石地面则如流水般铺展,让空间具有流动感。

过程方案示意图,以实际交付为准

过程方案示意图,以实际交付为准
约50m面宽的气派门头+酒店式入户大堂: 打造艺术格调归家。入户大堂由吴滨设计,呈现“天圆地方”的效果,方正的线条勾勒出空间的规整与大气,与顶部的圆形形成刚柔并济的视觉平衡,让每一次归家都成为一场尊贵的礼遇。

过程方案示意图,以实际交付为准

过程方案示意图,以实际交付为准
全系风雨连廊: 项目打造了上海市场罕见的“流线全覆盖”连廊系统。这条连廊不仅是遮风避雨的通道,其下方空间更被打造为一座与花园景观交融的“线性美术馆”。让业主归家成为穿梭时空的艺术之旅。
过程方案示意图,以实际交付为准
项目推售详情
据悉,【外滩瑞府】加推3号楼,建面约124-240㎡户型即将入市!售楼处样板间已开放!过会均价14.83万/㎡,在外滩板块豪宅门槛普遍达6000万+的当下,外滩瑞府以3000万级起(建面约195㎡户型) 的总价,为买家打开了进驻顶豪圈的“稀缺窗口”。无需承担过高门槛,即可与外滩共享城市核心资源、共赴长期价值增长,这样的机会,错过难再寻,195/240㎡只有这批次。
建面约124㎡三房两厅两卫▼
约 124㎡「灵阔舒居」:献给都市精英的外滩梦
对于建面约 124㎡户型,我的第一感觉是“十年难遇”。 当外滩板块的新房面积,基本站上 200㎡+,总价普遍顶破4000万关口,外滩瑞府以建面约124㎡(板块五年内难得的小户型),为入住外滩撕开一道珍贵缺口:

主卧套房,关上门就是一个高效而私密的世界,独立的动线让清晨时光从容不迫。独立卫浴、衣帽空间、静谧睡眠区,三角动线让晨起高效优雅。洗漱完毕,转身在衣帽空间挑选 “战袍”,从容开启新的一天。

另外,这个户型的 “平权次卧”理念真是绝了!给予家庭每位成员同等的空间尊重,这在同面积段产品中相当难得。三间卧室更是将“大”落到实处,面宽近乎均等设计,且全部超过3米,在124㎡级户型普遍存在次卧面宽不足3米的市场现状下,这样的尺度彻底打破了主次之分,没有谁的房间在采光、视野上被妥协,实现了家庭成员居住上的“平权”,孩子的房间能放下书桌与玩具柜。再加上大面宽阳台、5飘窗,实用面积很可观。

南向卧室的设计更是点睛之笔,通过可开可合的移门,与客厅上演空间魔法,实现卧室、开放式书房、客厅延伸区的三重空间形态。
这种设计直击核心改善家庭的痛点:有限面积内满足多元生活场景。当孩子需要活动空间时,移门收起形成阳光活动区;家长居家办公时,半开状态变身通透书房;客人留宿时,闭合即成独立卧室。

而 U型厨房的流畅动线,配上嘉格纳全系厨电,加上无处不在的智慧收纳,让生活回归井然有序的优雅。

样板间实拍鉴赏:
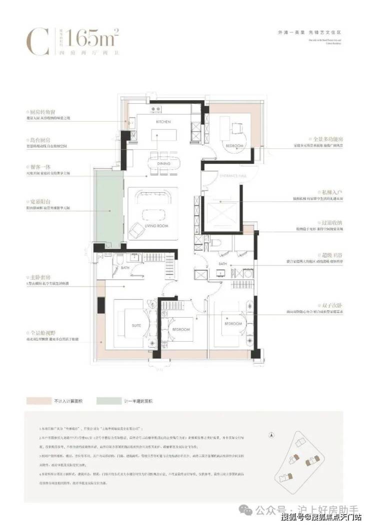
约 165㎡「光影韵界」:当属2025年内环大平层产品的四房MVP!
如果说 124户型是上车外滩的难得机会,那么建面约165㎡户型,则完全是另一种进阶的气场——它是一部真正意义上的“内环MVP”,在功能、视野、尺度、颜值力求每一个维度的全能,让豪宅不止于豪!

功能 MVP: 作为上海内环 “大平层”产品中面积段最小的四房格局,约165㎡户型选择做三卧室朝南,这样让父母和孩子都能享受阳光和尺度!其中两间南向次卧以非承重墙为界,可随心打通为约6m开间的艺术天地,后期随着家庭新成员的加入,可以再重新北向房间相对独立静谧,恰到好处的距离感里藏着尊重。面对三口之家还是三代同堂的需求,这个户型都可以做到无需置换!

视野 MVP :站到主卧和北向卧室的 L型转角飘窗前,才真正理解了什么叫“与外滩的未来共生”。270°的环幕视野,将陆家嘴的璀璨与北外滩的未来,同时变成你生活的背景画。
更值一提的是,外滩瑞府还做了厨房转角窗!这是「内环少见的视野惊喜」 —— 料理时,余光能瞥见外滩的繁华剪影,这让烹饪体验从此不再是封闭的劳作!

尺度 MVP :约 9米的宽幕贯通厅连接着超大的阳台,外滩天幕的繁华景色在这里成为日常;南向次卧为孩子的成长预留了足够的想象空间;北向房间面宽约 3.1米、进深约 4.15米(含 约60cm 宽景转角飘窗)的空间,彻底跳脱 “次卧即局促” 的刻板印象。无论是作为长辈房,还是书房,都能享受到与主卧同质的舒适 。
开放式中西岛台厨房,彻底打破了烹饪与社交的界限。这里以一字型备餐台为轴,双洄游动线串联洗切炒全流程。这里是家庭的互动中心,也是与窗外风景对酌的诗意场所。搭配嘉格纳全套厨房家电,让烹饪演绎成一场味蕾的艺术!

颜值 MVP :四分离卫浴设计,实现独立洗漱台、卫生间、淋浴间、洗衣区互不打扰,晨起高峰也能从容有序。家政空间藏于其中,解放了阳台,让其更多承载尺度观景功能。

爱马仕级的奢皮质感,让豪宅居住每一寸细节都耐得住时间的品味!客厅以意大利头层小牛皮包裹,精致车缝线如奢侈品包袋细节,与大理石台面碰撞出柔与刚的平衡;主卧背景墙编织皮革灵感源自文华东方酒店,靠上去便卸下所有疲惫;主卫台盆柜以柔韧防潮皮革四季恒温,这种高级到每一处的品质真是把外滩瑞府的审美拉到 “极 致”了!

样板间实拍鉴赏:
建面约195㎡四房三厅两卫▼
建面约240㎡四房两厅三卫▼
约 240㎡ 「 无界大宅 」 : 知名室内设计师吴滨执笔, 约270°IMAX 厅堂+超级主卧+国际大牌奢装!
专属入户礼序: 塔尖仪式感从进门开始
一梯一户 ,推门即享专属电梯厅,搭配气派双开门入户设计,归家仪式感拉满;进入室内,超阔绰玄关厅不仅能容纳海量收纳需求,更以科学左右分区设计实现动线分流,让每一次出入都尽显从容与尊贵。
约270°IMAX超级厅堂: 把城市天际线装进家里
客厅以超大尺度惊艳亮相,若打通北向X空间,可拓展为约90㎡超级厅堂,家族宴请or高端社交,皆能轻松承载;约 270°环幕视野 将采光与观景效果推向极致,中高楼层可眺望陆家嘴三件套。
厅内空间充裕,既容得下大家庭聚餐的超大圆桌,也有独立西厨岛台,满足高净值家庭多元烹饪需求。
灵活X空间: 为成长型家庭定制更多可能
户型预留的灵活 空间,可根据家庭成员需求随时变换功能——书房、琴房,专属化妆室...每一种场景都能精准适配,让空间随生活成长而进化。
主卧小家化: 私享级奢居体验
南向双套房设计, 其中主卧以“小家化”理念打造超大私人空间:就寝区面宽开阔,搭配 独立梳妆台, 满足日常精致需求; L型大衣帽间 收 纳容量充足,轻松容纳四季衣物; 主卫亮点十足,不仅做到南向采光,还配置双台盆、独立马桶、淋浴区与浴缸四件套,堪比五星级酒店的配置。
配独立家政间: 让家庭井然有序
家政间彻底释放了阳台,让阳台成为观景配套或者志趣空间;且位置在进门处,离两个卫生间很近,“洗烘一体”的动线高效。
细节配置与奢材 : 国际大牌+高定选材,同级品质天花板
✔装修品牌 : 全系采用国际一线大牌,中西厨配置嘉格纳9件套; 博洛尼橱柜搭配定制拉篮与调味架,让厨具收纳井然有序,尽显细节质感。
✔高定选材 :玄关地面选用 “白雪公主”玉石,质感温润高级;地面延展祥云灰水墨岩,与外滩华尔道夫酒店同源材质,瞬间提升空间格调;主卧背景墙更以威尼斯安缦酒店同款树瘤木,搭配巴黎宝格丽酒店同源羊皮纸,将全球顶奢酒店的居住质感搬进家中,每一处选材都彰显塔尖人居的高奢基因。
装修细节也是顶配,全部选用国际一线大牌:
三大件方面:大金中央空调+地暖两联供,新风系统也采用豪华品牌。
厨房方面:嘉格纳六件套(三眼灶具+油烟机+洗碗机+内嵌冷冻冰箱+内嵌冷藏冰箱+蒸烤一体机)、滨特尔中央净水+中央软水、大金厨房空调。
卫浴方面:杜拉维特台盆、汉斯格雅龙头花洒五金件、伊奈智能马桶。
智能化方面:华为可视对讲+智能化开关面板。
项目周边配套
项目位于虹口内环内的嘉兴社区,侧约200米就是北外滩,边上就是瑞虹新城,项目直线距10号线四川北路站约400米,及4/10/19号线(在建)海伦路站;是今年虹口区非常重要的一个新房供应。
四川北路地铁站实景图
海伦路地铁站实景图
“上海2035”总体规划明确,外滩将作为“全球城市核心功能承载区”,与陆家嘴、北外滩组成“外滩-陆家嘴-北外滩”国际经济、金融、航运“黄金三角”。这一规划不仅定义了上海的空间格局,更将外滩推向全球资本、文化、资源的核心交汇点。外滩瑞府择址于此,对标纽约ONE57、伦敦海德公园一号——非全球资本聚集地不选,非历史与未来叠加区不立,其价值内核正是对“黄金三角”核心资产的精准锁定,为业主提供了“抗周期”的资产保障。

外滩瑞府的“双顶配”,重新定义了“顶豪资源”的标准:
北外滩:依托“3000亿航运引擎”重塑全球经济版图,上港集团、中远海运等巨头云集,掌控全球1/3航运交易;更将崛起480米浦西第一高楼,与陆家嘴上海中心组成“双子星”,彻底改写城市天际线;

音乐谷:位列2025上海十大城市更新片区,与黄浦外滩、老城厢等同为重点。这里保留内环罕见的完整水系(宽15-20米“江南小河道”)及国家级文保单位,未来滨水步行区将贯通“一湾两半岛”,百年里弄变身爵士乐演出空间与独立艺术画廊,滨水市集的霓虹灯与爵士乐交织,突破传统顶豪“资源堆砌”范式,形成“生活为体,音乐为魂”的海派艺文新场景。

商业配套:坐拥叠加商圈,包括南京东路-外滩、人民广场、苏河湾、北外滩及瑞虹商圈,商业版图鼎盛。周边汇聚外滩源、苏河湾万象天地等潮流旗舰,及上海外滩W酒店、半岛酒店等一线高奢住宿。国际首店如CHANEL半岛店、百达翡丽中国旗舰,提供转身即世界的日常体验。这种稀缺性体现于外滩1.5公里核心圈新房供应仅占全市0.14%,赋予项目收藏级价值。
瑞虹新城太阳宫实景图
周边学校:项目全龄覆盖虹口区中州路第一小学、民办新华初级中学及筹建的上海外国语大学附属北外滩学校。入学条件依教育局规则,东余杭路幼儿园等提供早期教育,虹口校区强化语言优势。
四川北路幼儿园实景图
医疗资源:项目全维生活界面覆盖医疗与健康,三甲医院如上海市第一人民医院、仁济医院西院提供近距保障,确保家庭健康需求。适老设计嵌入社区疗愈区,中医医院与中西医结合医院强化预防性照护。
上海第一人民医院实景图
休闲资源:项目周边丰沛绿意环绕,如北外滩滨江绿地与鲁迅公园,加上爱思儿童公园结合和平公园等,形成城市氧吧。商业资源整合超越社区界限,业主享有定制化奢感服务,从高端餐饮到文化演出,无缝接轨国际潮流。
和平公园实拍图
爱思儿童公园实景图

如有问题欢迎来电咨询,专业一对一热情服务,让您用专业眼光去买房。
声明:本文由入驻焦点开放平台的作者撰写,除焦点官方账号外,观点仅代表作者本人,不代表焦点立场。
