信达海上院子首页网站 - 信达海上院子销售中心 (营销中心) 信达海上院子楼盘欢迎您 - 小区环境 - 户型 - 价格 - 地址 - 楼盘详情 - 周边配套 - 楼盘欢迎您

搜狐焦点天门站 2025-11-21 08:00:00
用手机看
扫描到手机,新闻随时看

扫一扫,用手机看文章
更加方便分享给朋友

售楼处电话:400-961-9938(已认证) 营销中心热线:400-961-9938(欢迎致电) 售楼处预约电话:400-961-9938☎☎☎如有问题可来电咨询,预约销售专员,一对一为您服务!

信达海上院子售楼处电话:400-961-9938(已认证)

杨浦·新江湾·国际社区

【信达泰禾·上海院子】

地上面积989.55㎡ 地下面积663.52㎡

联排别墅 仅有两套 售价8915万

70年产权 毛坯现房 线上预约

项目基本信息

区域板块

杨浦新江湾

开发商

信达

体量

2套

产品类型

联排

户型面积

989.55 ㎡地上,地下663.52㎡

总价区间

8915万

交房标准

毛坯现房

产权年限

70年产权

物业公司

金帆物业

物业费

地面12.1元/平/月,地下6.05元/平/月

绿化率

35%

容积率

1.125

新江湾是上海传统豪宅区,毗邻五角场城市副中心,拥有9.45平方公里的原生湿地以及约15万㎡的新江湾湿地公园生态稀缺资源。 【信达泰禾·上海院子】位于新江湾城核心位置,家门口就是10号线殷高东路站,步行可达。

【上海院子】独特的院落式社区打造,融合了 “院子系”特点、福州三坊七巷和上海弄堂形制,规划了 “三街九坊十八巷”。且以 “大门、坊门、院门、宅门”四进系统层层递进。项目精益求精,如吊顶天花雕刻的是龙纹和祥云的图案,寓意吉祥安康。

每个长盛不衰的家族,皆有优良的家风相传。每个中国人的家风,总离不开一座院墅。一方土地,一方围合,一方生活,世代家风传承。【泰禾信达上海院子】——经过多年沉淀和过硬的口碑,已经成为新中式豪宅的代表作。

【上海院子】为业主提供了社区活动中心,自带约3600平方会所,面宽约75米室内外双泳池、健身房、spa房,咖啡吧、vip室等...足不出户让业主享受7星级高级定制服务。

VIP影院▼

健身中心,瑜伽中心▼

室内恒温泳池▼

VIP会客厅,幼托中心等▼

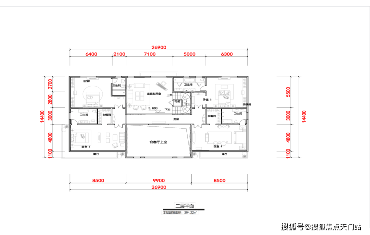
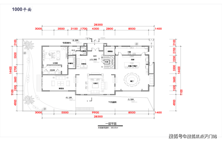
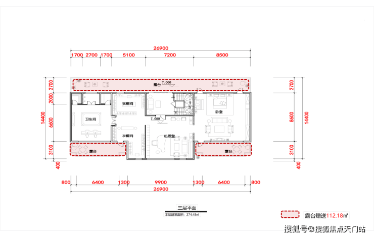
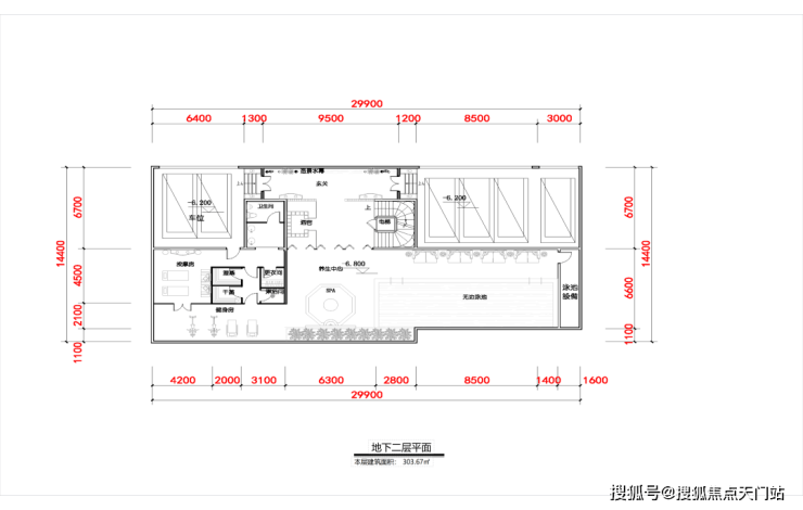
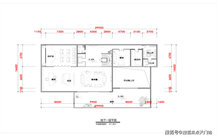
在售房源户型图

【信达泰禾·上海院子】

每个长盛不衰的家族,皆有优良的家风相传。

每个中国人的家风,总离不开一座院墅。

一方土地,一方围合,一方生活,世代家风传承。

共2套联排别墅,一手毛坯现房

地上面积989.55㎡,地下面积663.52㎡

在售房源户型图▼

装修建议示意图▼

项目区位配套

根据杨浦区2035规划,新江湾城、五角场属于杨浦西部核心区,产业导向明确,产业发展条件成熟,是杨浦重点发展的区域。

作为新江湾城重磅亮相的新盘,项目在享受区域发展红利的同时,周边也有着完善配套,生活便利!

图片来源于网络

新江湾是上海传统豪宅区,毗邻五角场城市副中心,拥有9.45平方公里的原生湿地以及约15万方的新江湾湿地公园生态稀缺资源。

图片来源于网络

交通配套方面:家门口就是10号线殷高东路站。一线(10号线)、一桥(杨浦大桥)、两环(中环&内环)、两隧(翔殷路&军工路隧道)构成立体交通网络。

位置示意图

【商业配套方面】:步行可快速到达约90万方的铁狮门的商业圈,车行可快速到达五角场商圈。

图片来源于网络

【教育资源方面】:周边有中福会幼儿园、延吉幼儿园(区重点)、同济第一附中(市重点)等。同时距上海音乐学院实验中小学(市重点)距离仅约800米。

图片来源于网络

医疗资源方面:周边有3家三甲医院,上海肺科医院、东方肝胆外科医院、上海长海医院,共同保障家人健康。

信达海上院子售楼处电话:400-961-9938(已认证)

声明:本文由入驻焦点开放平台的作者撰写,除焦点官方账号外,观点仅代表作者本人,不代表焦点立场。