宝山美兰金色宝邸(营销中心)首页网站-美兰金色宝邸销售中心(售楼处)-美兰金色宝邸售楼处电话-电话地址-价格-户型-小区环境-楼盘详情-交房时间-周边配套

搜狐焦点天门站 2025-10-23 16:13:00
用手机看
扫描到手机,新闻随时看

扫一扫,用手机看文章
更加方便分享给朋友

美兰金色宝邸位于宝山区罗泾,是北上海新兴产城中心,主打300-500㎡独栋别墅,总价1000万起,享生态与交通优势。

售楼处营销中心热线:400-1787-138(欢迎致电)

编辑

【美兰金色宝邸】

金水湖畔类独栋别墅

建面约:300~500㎡

总价约:1000万起/套

55席臻藏 现房销售

编辑

上海“2035规划”明确提出, 上海要主动服务“一带一路”建设、长江经济带发展,主动融入长三角区域协同发展。宝山作为长三角枢纽存在,被纳入主城区,开启新一轮时代红利,以北郊未来产业园为转型驱动,致力打造北上海新兴产城中心,城市资源全面升级。

编辑

(示意图)

(示意图)

随着“2035”战略规划定调,北郊迎来交通焕新, 形成“二纵一轨”立体交通。S7沪崇高速的一期在建、沪太路快速化将促进交通路网的焕新升级;规划中运量交通接驳轨道交通7号线,实现快速通达市区。

编辑

上海北郊未来产业园是浦东金桥股份与宝山工业园区合作的科技产业园项目,承载区域产业转型任务, 助力打造“上海制造”品牌,着力推动机器人、高端装备、关键智能部件等领域的研发和产业化。智能制造、新材料、移动互联网和健康产业等四大产业将成为支柱产业。

编辑

罗泾处于上海市北部,是宝山区城市建设区及上海国际航运中心的组成部分, 规划以一核:罗泾公园为生态核心,二轴:以陈功路、罗宁路为城镇发展轴,三带:荻泾河、小川沙河、陶家河绿化景观带环绕,建设成为以中高档居住为主体,融行政办公、商业服务、文化教育、休闲娱乐等多元功能为一体的水韵生态城。美兰金色宝邸,正处于一核、二轴、三带的核心交集,中心区位天然优越,尽享城市发展黄金轴线带来的便捷生活及无限价值。而 【美兰金色宝邸】位于宝山区罗泾。

编辑

【美兰金色宝邸】由上海顾村房地产开发(集团)有限公司开发的罗泾B1-4地块居住小区(金色宝邸), 小区由4幢小高层和55栋联排住宅构成。房源建面约300㎡~398㎡,总价约1000万起/套。

编辑

小区建筑采用经典优雅英伦风格, 近邻115亩罗泾公园仅500米,不仅饱览自然风光,更如同拥有一个天然大氧吧,时时刻刻空气清新。

编辑

编辑

编辑

编辑

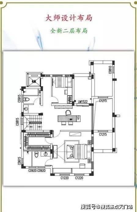
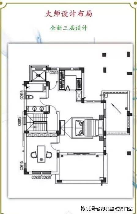
项目在售户型图

编辑

编辑

编辑

编辑

项目样板间实景照

编辑

编辑

编辑

编辑

编辑

编辑

编辑

编辑

编辑

项目周边配套

项目位于罗泾镇中心区,周边配套成熟,罗泾中学、罗泾镇卫生服务中心仅一河之隔,周边成熟小区林立,项目西侧地块系规划商业地块,坐享城市便捷生活。 10分钟内接驳轨道交通7号线美兰湖站及1号线富锦路站,尽享成熟便捷交通,出行无忧。

编辑

售楼处营销中心热线:400-1787-138(欢迎致电)

编辑

声明:本文由入驻焦点开放平台的作者撰写,除焦点官方账号外,观点仅代表作者本人,不代表焦点立场。