华润中环置地中心望云首页网站-华润中环置地中心望云售楼处电话-华润中环置地中心望云楼盘详情-交房时间-地址-最新房价户型图-小区环境-楼盘详情-交房时间
扫描到手机,新闻随时看
扫一扫,用手机看文章
更加方便分享给朋友
上海仅有的真TOD
步行范围内拥有全市领先级的资源!
对于选择中環置地中心的业主而言,选择这里,更像是一次对高效、品质与价值生活的精准投资。
意味着更稳妥的资产保障。
买房不仅是安家,也是一项重要的资产配置。中環置地中心能实现“三冠王”的销售业绩,本身就代表了一个市场最广泛的共识:
当绝大多数人都用真金白银投出信任票时,这个项目的资产价值和抗风险能力就拥有了坚实的基础。选择这样一个标杆楼盘,无疑是为家庭资产加上了一道“安全锁”。
意味着一步到位的资源配套。
对于业主来说,最大的实惠就是不用再做选择题。
项目把南大目前最优的交通和商业资源都集中在了日常生活的半径之内,实现了真正的“出则繁华,入则宁静”,这种便利性是其他项目难以比拟的。
尤其对于收官加推的望雲TOD而言,更是如此:
首先,这是一个真正与地铁站和繁华商业0距离的真TOD项目。
示意图,非交付标准
项目社区的地库可以直联地铁站通道,直接下楼就可以坐地铁,打造无风雨归家系统,出行不怕炎热和风吹日晒。
社区与万象汇的街区部分位于同一地块内,并且以连廊、天桥与“魔法传送门”构建漫步环线,繁华生活几乎就是“0”距离。
通过轨道交通站点+垂直商业体系和办公空间的组合设计,让交通和商业体验紧密结合完成真正一站式的城市体验。
示意图,非交付标准
想象一下,平日结束一天劳作后回家,上楼前可在商业顺手买到每日新鲜食材,用美食犒劳自己和家人;晚上健身塑形朋友圈按时打卡,高度自律;周末小朋友可以在艺术中心进行艺术熏陶,自己还能和闺蜜打卡新晋网红店、观看最新大片……
这样的国际化潮流生活方式,是无数人的梦寐以求。这才是真正的TOD项目。
而这样的TOD项目,其价值是无法估量。
因为相比普通楼盘,TOD综合项目本身更有溢价。而像莘庄天荟、万科天空之城等都已给出了实际的例子:
数据来源:链家
意味着经过市场验证的产品力。
“南大最火新房”的称号背后,是产品自身过硬的实力。无论是更实用的户型设计、更扎实的建筑用料,还是精心规划的园林,这些实实在在的产品力,共同构成了业主未来长期居住的舒适度保障。
迭代到二期,中環置地中心·望雲的审美又得到了再度突破和提升。
据悉将融入“华润·D-MONDE”的设计理念,呈现“秩序”和“经典”的建筑灵感,以框架感、构成感、群落感形成独特的城市天际线,为中环呈鉴极具美感的城市封面;融合“经典、华丽、松弛”的设计风格,借鉴新加坡高端住宅景观理念,引入度假式生活体验,实现建筑、生活和自然三者和谐共存。
项目本次的边套设计了大量的飘窗、转角飘窗、主卧270度落地窗等设计,所以整个立面运用了大量的玻璃,构建出了非常极致的窗墙比。
单看华润置地给出的资料和由GAD设计的外立面效果图,可以看到,是铜色铝板搭配浅白色陶瓷板,和超大比例类似玫瑰金色系的玻璃幕墙,这种海派雅奢的腔调和质感,一下就拿捏住上海人的心巴。
景观:城市中央的国际海派社区,归家即是度假!
项目由翊象设计主创设计团队操刀设计。
整个社区以主景花园联动自然教室、休闲交谊与艺术空间,形成婉转游园的酒店式迎宾水院。
效果图仅供参考,具体以实际交付为准
同时,以超奢戏水池与尊享休闲会所为核心,联动架空层,串联休憩廊架与横向端景,打造核心奢享场景。
效果图仅供参考,具体以实际交付为准
另外,整个项目拥有包括泛会所(戏水池、健身场所)、场景化网红架空层泛会所等全维社交场景。
效果图仅供参考,具体以实际交付为准
产品方面,相比一期润府,望雲的户型设计可谓一脉相承,切中购房者“痛点”;在室内装修上的品质呈现,其审美也得到了进一步提升。
108㎡的入门级三房,起步门槛相比润府提高不少。
这个户型,入户玄关收纳、双开间的阳台、宽大的U型厨房,和套房主卧带步入式衣帽间+全景式飘窗,是比较突出的亮点;
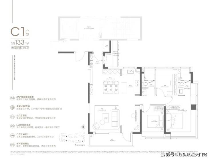
133㎡可以说是108㎡的进阶款,同样的三房两厅两卫,大面宽横厅、半开放式厨房设置岛台,加上主卧L型飘窗,再一次验证了华润置地豪宅化的产品思路。
来到165㎡个户型,已经上升到上海主流的大户型改善面积段,但看设计思路,可以看出是为满足多胎家庭成长而服务的。
近日中寰置地中心·望雲开放了165㎡样板间,楼典实地参观感受一番下来,整个户型动静分区的布局空间感很出众,人性化收纳设计细节很多,几乎每个房间都做了开窗面极大的飘窗,另外,装标也在润府的基础上升级了不少。
首先推开入户门,映入视线的是LDKB一体化客餐厅,家庭的核心活动区域,整个户型动静分区的布局一览无余,无走廊设计,空间利用率极高,走下来显得十分敞阔。
其次是收纳空间非常丰富,玄关、餐边柜、厨房、卫浴、主卧、阳台六大功能空间,随处可见。
比如,厨房配了珍珠白吊柜、三组抽屉式拉篮合理搭配,调料架收纳、大容量踢脚抽、清洁用品收纳区,米面粮油、碗碟刀叉都可完美隐身。
下图蓝色为收纳区域,绿色部分即飘窗区域:
入户门厅也非常讲究,定制级的玄关柜,包括鞋柜+收纳柜+卡座+衣帽区,整齐有序。
此外,像私享的入户梯厅可以做家庭小型储藏库;沙发后面的空间可以摆放大体量壁柜;大面宽阳台两侧也可作为定制储藏空间;
整个户型的飘窗面积总和达到了约14.3㎡。
其中主卧的270°转角飘窗就有约5.7m²,通过与外立面的结合,直接做了梳妆台和储物柜,拓展了飘窗的实用性。
同时室内精装交付标准上,也再度升级,从墙面、地板到厨卫品牌,都是国内外一线品牌。
188户型2梯2户,有独立的电梯厅。4房3卫设计,还是3明卫,这两点还是不错的。
客餐厅净面宽约5.45m、进深约6.85m左右。北侧是厨房和家政间,南侧是净面宽约5m的阳台。
南次卧也是套间设计,而且也是明卫,设计上还是用了心思的。卧室部分净面宽约2.9m、进深约3.7m。根据测算,可以放置6尺的床(宽度约1.8m)+2个床头柜(宽度约45cm/个)+衣柜(深约60cm)是可以的。
主卧转角落地窗+飘窗,也算是非常少见的了。净面宽约3.6m,不算进门的衣柜,进深大约5.7m左右。根据测算,可以放置宽约2m的床+2个床头柜(宽度约45cm/个)是可以的。
交通配套方面:北侧丰翔路、西侧祁健路、东侧汇丰路已建成通车,07-01地块南侧丰皓路(祁健路-工学路)计划2024年开工建设。项目距离15号线丰翔路站步行可达,日常出行非常方便。
商业配套方面:项目本身就是一个自带商业的TOD,华润置地规划以万象系列融汇轻奢时尚、休闲生活、运动潮流等多元业态,打造北中环“都市商业新旗舰。除了未来的万象系商业(规划中),周边还有经纬汇、聚丰购物广场、上坤城市广场、山姆会员店等,购物还是比较方便的。
医疗资源方面:项目周边有两大三甲级医院为健康保驾护航,本别是:仁济医院宝山分院和华山医院(宝山院区)。
教育资源方面:周边荟萃南大实验幼儿园、宝山区南大实验学校、上大附小、上大附中、上海大学附属学校、上海大学等全龄化教育资源。
声明:本文由入驻焦点开放平台的作者撰写,除焦点官方账号外,观点仅代表作者本人,不代表焦点立场。
