缦云上海售楼处电话:400-8669-938
编辑

当下的高净值人群,更喜欢什么类型的住宅?
首先,占据城市塔尖的资源浓度和土地价值。无论是标杆豪宅汤臣一品还是寰宇高楼世茂滨江,无一不是独占滨江核心地段。
其次是高度纯粹的圈层。俗话说“豪宅虽可贵,圈层价更高”。高度统一的的圈层,不仅是身份的象征,更是生活品位与社交价值的双重叠合。
最后是产品力。普涨时代一去不复返,投资属性减弱后,城市新贵们对于建筑本身的关注度自然提高。在2023《胡润至尚优品—中国高净值人群品牌倾向报告》中指出,家庭生活已成为高净值人群幸福指数中占比最高的指标。
与“家”相处,对于住宅的标准就更苛刻,这也是为什么当下市场,品质过硬的产品越来越受追捧的原因。
编辑

然而想要找出这样的产品却并不容易。仅圈层这一点,不少好的区位的楼盘也被拒之门外。去年1-6批次的新房中,全大户型社区只占了5.6%。
编辑

滨江地段+纯粹大户型+高奢产品力,符合三者的当下恐怕只有缦云上海了。
一线滨江,传奇再续
缦云上海
正在热销中
建面193-327㎡四房五房
总价2300万起
1风云际会
4.0版杨浦滨江恢弘登场
上海,一座因水而生、因水而兴的城市。从开埠起,上海的城市发展,就和水、滨江紧紧联系在一起。
从城市发展1.0版的外滩到2.0版的陆家嘴,再到3.0版本的前滩,世界舞台的灯光汇聚到如今的4.0版本杨浦滨江,每一处都是上海的城市名片。
随着黄浦江岸线日益开发饱和,杨浦滨江独占黄浦江滨江线1/3,已是最后一片可大量开发的空间区域。规划总建筑面积约796万方,其规模约2.6倍于前滩,约5倍于陆家嘴。(数据来源:上海杨浦)
编辑

效果图仅为概念示意展示,仅供参考
它的定位聚焦于互联网,联动起杨浦丰富的高校资源,重点发展人才聚集、年轻、创新的互联网产业,是内环内CAZ唯一的科创中心。最显著的讯号就是2020年以来互联网大厂在此相继拿地。
2020年11月,美团以 65.41亿拿下杨浦滨江一块地块,作为美团上海科技中心。两个月后,哔哩哔哩以 81.18亿拿下距美团地块一条马路的地块,作为哔哩哔哩新世代产业园。2021年9月,字节跳动以20.4亿拿下上海船厂地块,作为抖音集团上海滨江中心。
此外,中交总部大楼和中节能·上海首座项目也落址在此。预计产业规模达3000亿,导入至少20万人口。人口与产业加持之下,杨浦滨江的板块势能无疑将迎来大爆发。(数据来源:上海杨浦)
编辑

效果图仅为概念示意展示,仅供参考
交通方面,滨江南段虽然有五大隧道:隆昌路隧道(规划)、军工路隧道、周家嘴路隧道、大连路隧道以及江浦隧道,将浦西与浦东最核心区域紧密连在一起。但一直缺一条东西向的轨道交通,将其串联。如今这短板也因24号线的规划,有望被补齐。
编辑

示意图,仅供参考
缦云上海,占据杨浦滨江核心地段,以88万方合生TOD旗舰综合体的体量,包含合生汇商业广场、总裁公馆、5A甲级写字楼、高端住宅、风貌建筑等多种业态,未来势必成为城市塔尖的高净值年轻人的居住高地。
2全大户型社区
舒享纯粹圈层
当下市面上,囿于「7090」方案的实施,中小套面积比例被严格限制。即使是在市中心的住宅,也避免不开小户型的“套咒”。
「自2006年6月1日起,凡新审批、新开工的商品住房建设,套型建筑面积90平方米以下住房面积所占比例,必须达到开发建设总面积的70%以上。」
然而据贝壳研究院的数据显示:在未来的十几年,改善需求会占大头,刚需市场会持续萎缩。人们对于大户型的需求只会越来越旺盛。
编辑

来源:贝壳研究院
从去年1-9批次市区新盘的供应结构来看,大户型社区的购房选择十分有限。从投资属性来看,越是塔尖项目的大户型,越是抢手,保值增值能力也比小户型来得更强。
缦云上海是存粹的大户型社区,居住与社交圈层高度统一,稀罕程度不言而喻。
缦云上海即将加推最后2栋新房源,面积段205、207、227、229。总价2300万起。小区第一排,无敌采光,可俯视整个风貌建筑。
编辑

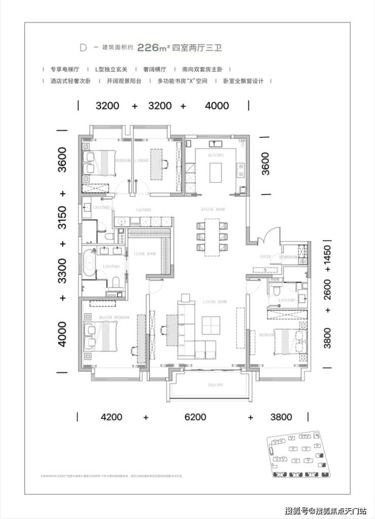
三期四批次户型图如下:
编辑

编辑

前期在售户型如下:
编辑

编辑

编辑

编辑

编辑

户型图:仅供参考
3摩登标杆钜制
美学人居范本
合生缦品牌,打造全球化的生活方式,拥有同源于世界奢华酒店服务基因的缦系无边际服务。它对于产品的塑造力,无愧于是楼市品质天花板。
缦云广州,占据天河国际生态区核心,森幕大宅更让一众富豪趋之若鹜。合生缦品牌只选取一线城市的核心地段!此次,缦云来到杨浦滨江,开启4.0滨江的人居范本。强大的产品力加上精工雕琢的设计,每一处细节考量,都给业主带来满分的惊喜体验。项目一期首开2.5小时即售罄!
高颜值外立面,顶级铝板+玻璃幕墙+局部干挂石材,大面积的铝板,造价更高,视觉效果更震撼。
编辑

效果图:仅供参考
“N+1折叠会所”,项目规划了约3000㎡的会所及楼宇下面的泛会所,包涵健身中心、室内泳池、缦宴、24H精品便利店、健康管理中心等功能。
泛会所空间将以架空层空间为楼座定制专属缦云泛会所,涵盖茶室、自助咖啡等水吧、儿童游乐区、活动空间等。业主停车的时间,孩童可以在会所尽情玩耍,不用担心走丢,同时办公也十分方便。
效果图:仅供参考
编辑

折叠园林景观,让生活更贴近自然,小区营造云语、漂浮艺术剧场、 山丘营地、轻氧花园、露营派对、城市森林客厅、元气能量站,七大景观设计亮点,覆盖全龄人群的景观体验。
编辑

效果图:仅供参考
日常生活的质感上,采用国际一线大牌奢装,带给居者与众不同的体验感。瑞士顶级卫浴品牌Laufen劳芬、德国高端洁具巨头Dornbracht当代、德国知名品牌美诺等等,还有定制衣柜(200㎡以上户型),新风、地暖、中央空调都也是世界知名品牌。
层高3.3m,市面罕见!层高每高20-30公分,享受到的视野空间都更阔绰。在此基础上,所有空间的门都做了通顶设计,其圆弧造型做到约2.6米门扇!
编辑

样板间实景图
缦云上海已经获得全球豪宅健康建筑的标尺——well金级预认证。该认证是全球首个以人为本、关注生活居住细节的建筑标准,目前已在全球40多个国家得到广泛采用。
编辑

示意图:仅供参考
此外,项目还为业主提供无边际服务。24小时管家服务响应,5分钟紧急事件响应,全方位的智能安防保护,专属私人管家保护,医疗健康服务,老人儿童托管定制服务等.......从时间、空间、私属三个维度,读懂居者的内心需求。
编辑

效果图:仅供参考
这些细节与服务,在强调居住属性的当下,注定了它将成为不可撼动的人居范本。杨浦滨江也因它的到来,更添一缕光彩。
编辑

编辑

编辑

编辑

缦云上海售楼处电话:400-8669-938
编辑

上海松江不同板块各具特点,以下是对其主要板块的分析:
- 松江新城板块[__LINK_ICON]:作为松江的核心区域,是上海“五个新城”之一,规划建设起步早、起点高。这里是长三角G60科创走廊策源地,2024年规上工业企业达1718家,连续3年全市居首。交通方面,松江枢纽已建成通车,形成“四网融合”综合交通体系。此外,该板块文化资源丰富,有云间会堂文化艺术中心等。整体配套成熟,适合长期居住。
- 九亭板块:是松江离市区较近的板块,五站可达漕河泾,八站直达徐家汇,深受在市区工作的人群青睐,成交活跃度高。其能享受大虹桥的辐射带动,但学区方面相对薄弱。
- 泗泾板块:地理位置上属于大虹桥外溢区,房龄新、价格相对便宜,且有在建的地铁TOD项目,适合首次购房者。不过,该板块的轨道交通线路较为单一,高峰时段容易拥堵。
- 佘山板块:拥有丰富的绿地资源和佘山国家旅游度假区,是天然的生态住区,适合宜居养老。但板块内轨道交通、商业、医疗等配套设施有待完善,板块认可度相对较低。
- 洞泾板块[__LINK_ICON]:是松江东北部城镇圈和G60科创走廊的重要组成部分,未来轨交12号线西延伸线将在此与9号线双轨交汇,交通便利性有望提升。不过,目前该板块开发较晚,基础设施有待完善。
- 松江南部板块:以广富林文化遗址为特色,是松江新城重点发展区域。但该板块交通依赖单一线路,出行选择受限,且内部不同区域发展程度不一,存在发展不均衡的现象。