速戳!获取 2025 保利滨江和煦售楼处电话,保利滨江和煦楼盘详情等您来探

搜狐焦点天门站 2025-10-02 13:13:46
用手机看
扫描到手机,新闻随时看

扫一扫,用手机看文章
更加方便分享给朋友

保利滨江和煦 售楼处电话:400-1789-318(已认证) 保利滨江和煦营销中心热线:400-1789-318(欢迎致电) 保利滨江和煦售楼处预约电话:400-1789-318☎☎☎如有问题可来电咨询,一对一为您服务!

保利滨江和煦

售楼处电话:400-1789-318(已认证)

保利滨江和煦营销中心热线:400-1789-318(欢迎致电)

保利滨江和煦售楼处预约电话:400-1789-318☎☎☎如有问题可来电咨询,一对一为您服务!

编辑

看房需提前来电预约登记请务必致电与销售确认时间,预约客户可优先进入销售现场,避免空跑,感谢您的支持!

闵行颛桥

15号线地铁盘

保利·滨江和煦

建面约98-140㎡滨水慢奢住区

即将面市!

城市展厅已开放!

编辑

产品方面分为小高层和洋房;

小高层面积段约95㎡、105㎡、125㎡3-4房,共计约640套;

洋房面积段约为130-140㎡左右4房,共计112套房源。

网传户型图如下

(仅供参考,以实际公示为准)

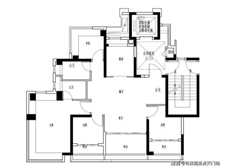
建面约105㎡3房

编辑

建面约125㎡4房

编辑

建面约140㎡4房

编辑

作为闵行首座践行保利「三好十五力」体系的“好房子”标杆作品,项目从规划到细节皆为人本考量。

稀缺双水岸:项目坐落于L型双滨水环绕的自然场域,真正实现让水岸重回生活

建筑与美学:融贯东方审美与现代简约的立面美学,立面采用精致铝线条(局部涂料)与现代质感玻璃打造,勾勒优雅轻盈的城市封面

沉浸式园林:规划“三轴一界一带”,融入玉兰花图腾、海派细节与荷花池等画景,营造可游可赏的森境家园。

全龄共享空间:煦-CLUB,是集泳池等多元空间于一体的生活服务中心,打造多重主题空间,可承载全龄段社交与生活场景。

编辑

编辑

编辑

编辑

据早前的规划显示,保利·滨江和煦所在的闵行区MHC10601单元01-22A-10地块,拟建15栋7-16F住宅,项目容积率2.0,拟建4栋7F住宅,以及11栋14-16F住宅

项目配置了下沉庭院,并且部分楼栋做了首层架空

编辑

编辑

在今年6月举行的上海五批次土拍中,保利发展以总价314026万竞得项目地块;

成交楼面价38775元/㎡,溢价率12.95%,住宅装修标准≥3000元/㎡。

编辑

地理位置方面,项目位于闵行颛桥地区中心位置,与15号线双柏路站直线距离约500米,周边生活氛围浓厚。

该地块下一站的元江路TOD项目,保利光合上城均价在6.5-6.99万/㎡;

西侧不远处的颛桥紫薇花园(左岸),最后一批入市价格在约7万/㎡,可供参考。

闵行颛桥

15号线地铁盘

保利·滨江和煦

建面约98-140㎡滨水慢奢住区

即将面市!

城市展厅已开放!

保利滨江和煦

售楼处电话:400-1789-318(已认证)

保利滨江和煦营销中心热线:400-1789-318(欢迎致电)

保利滨江和煦售楼处预约电话:400-1789-318☎☎☎如有问题可来电咨询,一对一为您服务!

编辑

看房需提前来电预约登记请务必致电与销售确认时间,预约客户可优先进入销售现场,避免空跑,感谢您的支持!

声明:本文由入驻焦点开放平台的作者撰写,除焦点官方账号外,观点仅代表作者本人,不代表焦点立场。