保利外滩启77售楼处电话:400-8669-938
编辑

最新消息:杨浦东外滩「保利外滩启Park77」在售中!建面约99-138㎡三房四房!
⛩️项目名称:「保利外滩启Park77」
👑项目简介:杨浦东外滩 品质住宅
🗣️最新动态:在售中
📍区域板块:杨浦东外滩
🏠产品介绍:建面约99-138㎡三房四房
🏫周边学校:明园村幼儿园(市一级园)、童乐幼儿园(高品质民办幼儿园);齐齐哈尔路第一小学(约420米)、长阳实验学校(原控江中学附属民办九年一贯制学校)、存志学校(约1km市知名民办中学)、控江中学(约1.8km市重点高中)(注:本资料中学校信息仅作介绍不做入学承诺,项目对口学校最终以教育部门划分为准。)
🏬商业配套:紫荆广场(约1.3km)、宝地广场(约1.1km)、百联滨江购物中心(约1.4km)、瑞虹天地太阳宫(约2.1km)、北外滩来福士广场(约2km)、宝龙旭辉广场(约2.4km)、上海白玉兰广场(约3km);
🏥医院:交通大学医学院附属新华医院(约1km)、上海中医药大学附属上海市中西医结合医院(约1.4km)、复旦大学附属妇产科医院(红房子医院);
1地段
交通配套:乘坐地铁12号线2站直达提篮桥(北外滩来福士广场)、3站直达国际国客中心(上海白玉兰广场)、7站直达南京西路、8站陕西南路(环贸iapam);
乘坐地铁18号线往北3站直达复旦大学、4站直达上海财经大学、往南3站昌邑路(可换乘14号线)、4站民生路(可换乘6号线)、7站龙阳路(可换乘2/7/16/磁悬浮)。
编辑

商业配套:紫荆广场(约1.3km)、宝地广场(约1.1km)、百联滨江购物中心(约1.4km)、瑞虹天地太阳宫(约2.1km)、北外滩来福士广场(约2km)、宝龙旭辉广场(约2.4km)、上海白玉兰广场(约3km);
医院配套:交通大学医学院附属新华医院(约1km)、上海中医药大学附属上海市中西医结合医院(约1.4km)、复旦大学附属妇产科医院(红房子医院);
休闲配套:江浦公园(一路之隔)、江浦恒温游泳健身俱乐部(约260米);
编辑

学校配套:明园村幼儿园(市一级园)、童乐幼儿园(高品质民办幼儿园);齐齐哈尔路第一小学(约420米)、长阳实验学校(原控江中学附属民办九年一贯制学校)、存志学校(约1km市知名民办中学)、控江中学(约1.8km市重点高中)。
2产品
保利外滩启PARK77作为“外滩序”升级之作,将顶级酒店的度假美学与生活艺术完美转译为当代人居解决方案。
自售楼处开放以来,络绎不绝的访客与持续高涨的样板间咨询声,印证着市场对项目的期待。
编辑

项目以“静奢”为核心,建筑上用铝板与玻璃幕墙构建美学天际线,最大化引景入室。
编辑

景观上定制六大度假花园与五重酒店级景观,与江浦公园绿意无界相连。
临水而筑的架空层,以通透布局引自然光与园景入室,度假般的松弛感扑面而来。
编辑

编辑

编辑

编辑

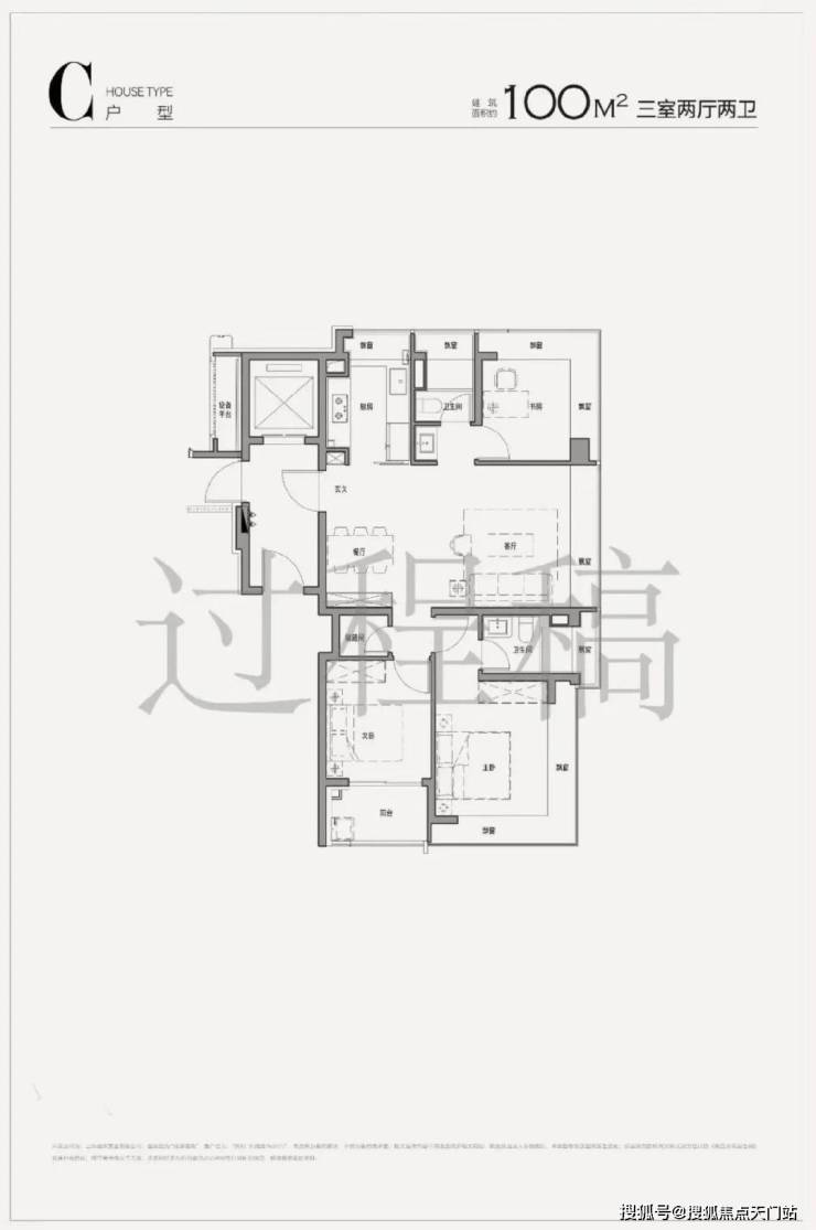
作为“外滩序”升级之作,保利外滩启PARK77在空间造诣上再攀新峰。当下市场,入门三房面积正大幅扩容,普遍达到108-110㎡,甚至直接跃升至120㎡。而保利外滩启PARK77 建面约99-102㎡3房,堪称市中心最后一批“百平米三房”,一旦错过,购房成本将直接增加100多万!
户型图如下:
(过程稿仅供参考,以开发商正式公示为准)
编辑

编辑

编辑

编辑

编辑

编辑

编辑

编辑

编辑

样板间照片曝光:
编辑

编辑

编辑

编辑

编辑

编辑

保利外滩启77售楼处电话:400-8669-938
编辑
