信达 信安里销售中心 (营销中心) 欢迎您 - 信达 信安里楼盘详情 - 小区环境 - 户型 - 价格 - 地址 - 周边配套 - 宜居府邸恭迎品鉴

搜狐焦点天门站 2025-11-22 12:53:00
用手机看
扫描到手机,新闻随时看

扫一扫,用手机看文章
更加方便分享给朋友

售楼处电话:400-961-9938(已认证) 营销中心热线:400-961-9938(欢迎致电) 售楼处预约电话:400-961-9938☎☎☎如有问题可来电咨询,预约销售专员,一对一为您服务!

信达 信安里售楼处电话:400-961-9938(已认证)

源起静安寺 起笔南京西路

老静安典藏风貌别墅

【信达 信安里·忻园】

建面约280-540㎡

均价19.98万/㎡ ,仅27席

总价约5686万-1.1亿

高附赠率别墅空间

无柱、无廊、大落地窗设计

独门独院、围合天地、连院宽厅

独享私家花园庭院

项目基础信息

项目名称:【信达信安里】

物业类型:70年住宅产权

建筑面积:地上276㎡、286㎡,365㎡,460㎡,541㎡,送地下面积250-500平

总套数 :27套

价格:均价19.98万/㎡,总价约5686万起

物业费:20元/平/月

梯户比 :“独立电梯厅”设计

产品设计:三种风格石库门、红砖、法式

别墅面宽 :约12米

层数:地上2层➕阁楼,地下2层

层高:1F3.6米;2F-3F3.3米;地下约7.2米(挑高)

花园面积:约50-100㎡(赠送)

物业公司:信达自持物业(委托绿城物业管理)

容积率:

2.5

车位配比:

1:1.17

交房时间:

2026年12月

别墅双拼:

275-287平:5686-5920万(3套)4房4厅7卫

360-384平:6900-7747万(18套)5房5厅8卫

460-541平:8923-9847万(4套)5房5厅8卫

别墅类独栋:

463平-1.06亿(1套)5房5厅10卫

项目亮点:

1、老静安曹家渡,内环内资源蕞密集的地段之一

2、信达豪宅系、强产品力+难以复制地段

3、别墅高附赠/志趣空间/大花园、露台

4、圈层纯粹,主力建面276-541㎡,总价约5000万起

【信达 信安里·忻园】别墅一房一价表

实景样板房曝光

01

项目区位及综合配套

散落浓荫的高贵门庭

动辄亿元 风貌老洋房 于此溯源

一座静安寺,三片风貌区。南京西路历史风貌区——凤阳路、陕西北路,衡复历史风貌区——华山路、湖南路,愚园路历史风貌区——愚园路、常德路,动辄亿元的浓荫区老洋房,历史从这里溯源!

【信安里·忻园】位于老静安核芯的康定路余姚路交汇口南侧,在静安的历史风貌区内,正宗的“上只角”地段,优势不用多说。

老静安作为上海人的白月光,仅有7.62平方公里, 全域处于上海CAZ中央活动区,被誉为“市中芯的中芯”。

老静安丰富综合配套

项目周边就有13号线、14号线两条轨交站点;西侧就是北横通道入口,东南方向能快速驶入延安高架,通行便利。

教育资源优越,一师附小、万航渡小都是老静安的一梯队。

商业方面,恒隆广场、静安嘉里中心、兴业太古汇等 数十个super商业体包围

02

项目设计介绍

项目由日清建筑事务所担纲设计,总建筑师宋照青先生亲自操刀,通过"保留改造+更新改建"的双重手法,让历史脉络在新时代焕发新生。

对于 太平坊、积善里、高家宅、鹤寿里等里弄,信安里采用"风貌基因提取+功能迭代"的更新策略

【信安里·忻园】用两大颠覆性创新,重新定义了风貌别墅居住逻辑!

颠覆之一:

堪比大平层的超大面宽

彻底打破风貌别墅“窄开间”桎梏

最长19.5米的超大宽厅!这是忻园给出的惊喜答案!

相比于市面上多数风貌产品仅能做到1.5-2开间,难以匹配当代高净值家庭对开阔感与通透性的要求,信安里·忻园,实现了真正意义上的 “空间跨越”

其主力户型做到约360㎡建筑面积、4开间朝南、总体面宽约16米,堪比一线大平层的尺度感。

尤其值得一提的是建面约540㎡的楼王户型,更是以5开间朝南、约19.5米超大宽厅,刷新了市场对风貌别墅的空间认知。

创意展示空间 实景图

哪怕是建筑面积约280-290㎡的小面积,也做到了3开间朝南。

这在市面上极其少见!

更值得强调的是,这些空间内部极少承重结构柱,赋予业主极高的空间自由度,可根据家庭结构、社交需求、生活偏好进行灵活分隔与场景打造。

创意展示空间 实景图

这不仅是对风貌别墅的“空间解放”,更是对高端生活场景的重新定义。

从私人艺术沙龙、家庭聚会厅到儿童活动区,真正实现“一厅多用,世代同堂”。

颠覆之二:

最高7.2米的超高层高地下使用空间

实现“实际使用空间”的降维打击

信安里·忻园将地下层高提升至7.2米,大大增加了空间使用率!别墅的地下空间下面是双层车库层,共三层的地下空间,防潮性能进一步提升。

创意展示空间 实景图

这不仅极大拓展了垂直维度的功能潜力,更在面积附赠层面实现了近乎“一比一”的震撼效果!

建面约280㎡户型,赠送面积可达约280㎡;建筑面积约460㎡的楼王,赠送面积甚至高达500多㎡。

这对开发商来说,大大增加了成本,所以这样的产品十分罕见。但是对于居住者来说,却是增加了地下空间的通透性,并且实现了更多的功能性。

它意味着生活想象力的彻底释放。业主可据此打造私人健身区、恒温酒窖、专业影音室、SPA疗愈空间、收藏画廊甚至子女兴趣工坊。

创意展示空间 实景图

更多细节:

超越符号的文脉延续与现代生活融合

项目外立面并非简单模仿传统样式,而是通过对孟莎式屋顶、清水红砖外墙、传统石库门门头、老虎窗等元素的保留与转译,实现海派建筑语汇的当代延续。

它复刻了张爱玲笔下“常春藤公寓”的文艺肌理,将城市记忆转化为可感知、可触摸、可生活的日常场景。

创意展示空间 实景图

与其他风貌共用一堵分户墙不同的是,忻园的风貌别墅采用双层分户墙做法,每户之间没有共用墙。200mm厚度的墙体,中间还设置了100mm空腔,避免邻里的相互影响,带来舒适静谧的居住感受。

双层分户墙做法示意图

并且,忻园还是上海较早采用外墙PC板夹芯保温技术的风貌住宅,隔音的同时,保温防水性能更是优异。

外墙PC板夹芯保温做法示意图

为了呈现立面的精细化,项目更是运用了60多种定制砖,尽显品质感。在建筑的拐角处,延续现状并结合历史建筑中“拐弯抹角”的做法,把转角隅石优化为弧形。“上方下圆”的抹角设计,不仅体现了通行方便安全,也是一种谦和,更是一种传统美德,表达街坊邻里间和谐友善的氛围。

延续并优化转角隅石示意图

60多种定制砖示意图

每户配置30-100㎡私家庭院,以"通透格栅+景墙漏窗"取代传统石库门的封闭木门。

南侧雅集花园以"海派园林"为蓝本,设置跌水景观、竹影茶寮与露天剧场,成为邻里交流的天然客厅;

车行主入口的水景广场,以镜面水池倒映历史建筑,归家动线化作穿越时光的仪式。

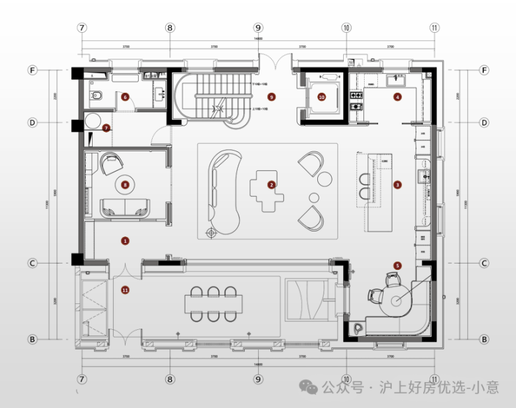
项目户型图参考

信达 信安里售楼处电话:400-961-9938(已认证)

声明:本文由入驻焦点开放平台的作者撰写,除焦点官方账号外,观点仅代表作者本人,不代表焦点立场。