信达上海院子售楼处官方预约热线:400-1189-515(欢迎致电)

点击输入图片描述(最多30字)
「上海院子」
新江湾城国际社区
合院别墅 仅此1席楼王地上三层989.55㎡+地下二层663.52㎡ 售价8915万 (内部保留无税)预约可实地看房
信达上海院子售楼处官方预约热线:400-1189-515(欢迎致电)
信达·上海院子

点击输入图片描述(最多30字)
新江湾是上海传统豪宅区,毗邻五角场城市副中心,拥有9.45平方公里的原生湿地以及约15万㎡的新江湾湿地公园生态稀缺资源。信达泰禾·上海院子位于新江湾城核心位置,家门口就是10号线殷高东路站,步行可达。

点击输入图片描述(最多30字)

点击输入图片描述(最多30字)

点击输入图片描述(最多30字)
「上海院子」独特的院落式社区打造,融合了“院子系”特点、福州三坊七巷和上海弄堂形制,规划了“三街九坊十八巷”。且以“大门、坊门、院门、宅门”四进系统层层递进。项目精益求精,如吊顶天花雕刻的是龙纹和祥云的图案,寓意吉祥安康。
一、区域板块

点击输入图片描述(最多30字)
二、小区会所

点击输入图片描述(最多30字)

点击输入图片描述(最多30字)

点击输入图片描述(最多30字)

点击输入图片描述(最多30字)

点击输入图片描述(最多30字)
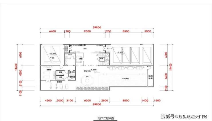
三、户型

点击输入图片描述(最多30字)

点击输入图片描述(最多30字)

点击输入图片描述(最多30字)

点击输入图片描述(最多30字)

点击输入图片描述(最多30字)

点击输入图片描述(最多30字)

点击输入图片描述(最多30字)

点击输入图片描述(最多30字)
四、装修建议

点击输入图片描述(最多30字)

点击输入图片描述(最多30字)

点击输入图片描述(最多30字)

点击输入图片描述(最多30字)

点击输入图片描述(最多30字)

点击输入图片描述(最多30字)
房屋实况

点击输入图片描述(最多30字)
项目概况
信达·上城院子以养生文化润筑,以礼序承脉,萃取东方人文精髓于当下的现代造园,目标是再现一座可传世的名门府院,传承致敬大国之风。

点击输入图片描述(最多30字)

点击输入图片描述(最多30字)

点击输入图片描述(最多30字)

点击输入图片描述(最多30字)
设计思路
以礼仪序列、门第阶层、优雅生活、静街私园作为主要的景观轴线,提炼并打造气派非凡、层层递进的东方宅院里坊景观构架以及生活、生长的人文空间;以考究的门庭、街坊、巷里、院落、高墙、假山、流水等层层递进,从而形成有格局的院落生活。“琴棋书画诗酒花茶”是人生八雅,收藏庭院生活,实现文人式精英境界与情怀。

点击输入图片描述(最多30字)
以广亮的铜制大门、汉白玉精雕的抱鼓石、千年流韵的瓦当、对开式柚木大门、千年奇松秘园,同时上城院子更有门前福临之缸的整体风格并结合现代人的生活习惯与审美,高度要求与人的视线、心境、精神相适应
每个常盛不衰的家族,皆有优良的家风相传。每个中国人的家风,总离不开一座院墅。一方土地,一方围合,一方生活,世代家风传承。【泰禾信达上海院子】——经过多年沉淀和过硬的口碑,已经成为新中式豪宅的代表作。

点击输入图片描述(最多30字)
独特的院落式社区打造,融合了“院子系”特点、福州三坊七巷和上海弄堂形制,规划了“三街九坊十八巷”。且以“大门、坊门、院门、宅门”四进系统层层递进。项目精益求精,如吊顶天花雕刻的是龙纹和祥云的图案,寓意吉祥安康。

点击输入图片描述(最多30字)

点击输入图片描述(最多30字)
上海院子为业主提供了社区活动中心,约3600平方会所,面宽约75米室内外双泳池、健身房、spa房,咖啡吧、vip室等..让业主享受7星级高级定制服务
项目位于中外环间新江湾城,毗邻五角场城市副中心,拥有9.45平方公里的原生湿地以及约15万方的新江湾湿地公园生态稀缺资源。

点击输入图片描述(最多30字)
根据杨浦区2035规划,新江湾城、五角场属于杨浦西部核心区,产业导向明确,产业发展条件成熟,是杨浦重点发展的区域。

点击输入图片描述(最多30字)
作为新江湾城重磅亮相的新盘,项目在享受区域发展红利的同时,周边也有着完善配套,生活便利!
交通方面:家门口就是10号线殷高东路站。一线(10号线)、一桥(杨浦大桥)、两环(中环&内环)、两隧(翔殷路&军工路隧道)构成立体交通网络。

点击输入图片描述(最多30字)
医疗方面:周边有3家三甲医院,上海肺科医院、东方肝胆外科医院、上海长海医院,共同保障家人健康。

点击输入图片描述(最多30字)
商业方面:小区斜对面就是星汇广场,还有悠方购物公园,10号线3站路抵达五角场,吃喝玩乐很便捷。

点击输入图片描述(最多30字)
还有新江湾湿地公园、江湾体育场,安徒生童话乐园,满足日常休闲娱乐。

点击输入图片描述(最多30字)

点击输入图片描述(最多30字)
教育方面:新江湾城学区是出了名的重点学区,上海院子所对口的是上海音乐学院实验中小学(市重点)距离仅约800米。

点击输入图片描述(最多30字)
信达上海院子售楼处官方预约热线:400-1189-515(欢迎致电)

点击输入图片描述(最多30字)